Bauland zur Verkauf

€ 270.000
1.100 m²

Notiz

Anzeige aktualisiert am: 23.01.2026
Beschreibung

This description has been translated automatically and may not be accurate

Referenz: 105-321

Bauland Risika, Vrbnik, 1.100m2

Kaiser Immobilien vermittelt den Verkauf eines äußerst attraktiven Baugrundstücks mit Vorentwurf für zwei Einfamilienhäuser in Risika auf der Insel Krk.

Das 1.100 m² große Grundstück befindet sich in einer ruhigen und abgeschiedenen Lage in einem Viertel mit überwiegend neu erbauten, authentischen Villen. Das Meer und der einzigartige Strand von Sv. Marek sind nur 1.000 m entfernt, und Vrbnik – ein beliebtes Inselziel – erreichen Sie nach 6 km.

Die Besonderheit dieses Grundstücks liegt in seiner Lage und Ausrichtung. Die erhöhte Lage im Vergleich zum umliegenden Gelände und die Südausrichtung ermöglichen den Bau von Häusern mit vielen Sonnenstunden das ganze Jahr über und Meerblick vom ersten Stock.

Das Grundstück, das aus zwei Parzellen besteht, ist eben und regelmäßig geformt. Es ist bereits gerodet und für die ersten Bauarbeiten vorbereitet, und die gesamte notwendige Infrastruktur befindet sich in unmittelbarer Nähe.

Ein weiterer Vorteil ist die bereits vorhandene Projektdokumentation, die dem Käufer einen schnellen Baubeginn ohne unnötige Wartezeiten auf die Genehmigungen garantiert. Die Eigentumsverhältnisse sind eindeutig, alle Unterlagen sind vollständig.

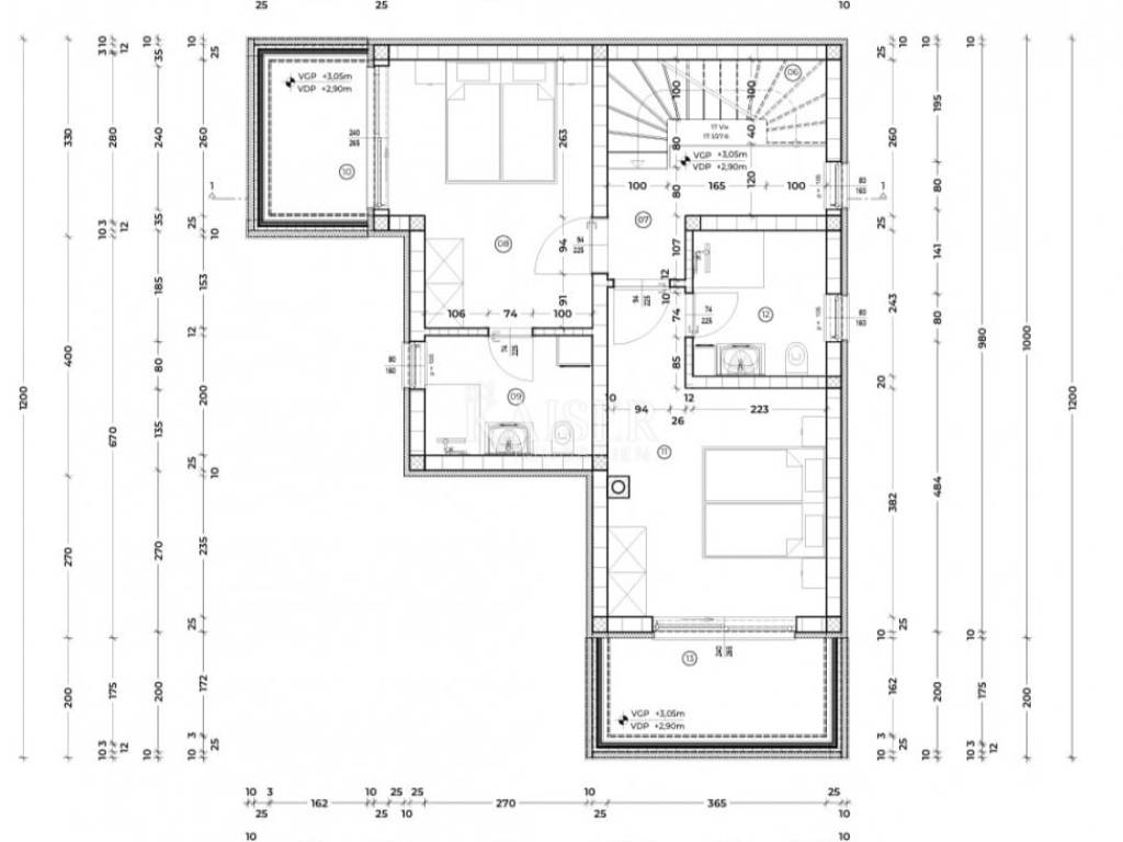
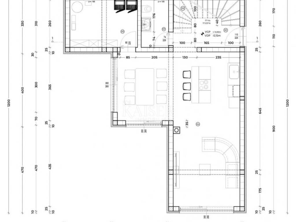
Der Vorentwurf sieht den Bau von zwei freistehenden Villen mit Swimmingpools vor:

VILLA I:
Erdgeschoss: Wohnbereich (Wohnzimmer, Küche und Esszimmer), Technikraum, WC – insgesamt 62,11 m²
Obergeschoss: Flur, zwei Schlafzimmer mit jeweils eigenem Bad und überdachter Terrasse – insgesamt 62,99 m²
Wohnfläche insgesamt: 125,10 m²
Gartenfläche: 425 m², Swimmingpool (7,25 m x 4 m), zwei Stellplätze
VILLA II:
Erdgeschoss: Wohnbereich (Wohnzimmer, Küche und Esszimmer), Technikraum, WC – insgesamt 62,11 m²
Obergeschoss: Flur, zwei Schlafzimmer mit jeweils eigenem Bad und überdachter Terrasse – insgesamt 62,99 m²
Wohnfläche insgesamt: 125,10 m²
Gartenfläche: 485 m², zwei Stellplätze

Dieses einzigartige Grundstück eignet sich ideal für Familien oder Freunde, die Häuser in der Nähe voneinander bauen möchten, oder als Kombination aus Investition in den Tourismus und Eigennutzung.

Maklerempfehlung!

ID-Code: 105-321

Die Maklerprovision für den Käufer beträgt 3 % zzgl. MwSt. und wird beim Kauf einer Immobilie mit Abschluss des ersten Rechtsakts fällig.

Risika ist ein ruhiger Ort nahe dem Meer an der Ostküste der Insel Krk, 6 km von Vrbnik und 25 km von der Brücke von Krk entfernt. Der Ort besteht aus mehreren Weilern und hat etwa 150 Einwohner.

Die Lage in der Nähe wunderschöner Strände, inmitten unberührter Natur und Ruhe ermöglicht es Ihnen, alle größeren Städte der Insel Krk und alle wichtigen Einrichtungen in wenigen Fahrminuten zu erreichen.

Ein besonderes Highlight ist der wunderschöne Sandstrand von St. Marek mit seiner üppigen, idyllischen Natur.

ID CODE: 105-321

Lado Patekar
Agent s licencom u posredovanju u prometu nekretnina
Mob: +385919390220, +385995677888
E-mail: lado@kaiser-immobilien.hr
www.kaiser-immobilien.hr
Merkmale
Vertrag
Verkauf
Art
Bauland
Fläche
1.100 m²
Preisinformationen
Preis
€ 270.000
Preis pro m²
245 €/m²
Entdecken Sie jeden Winkel des Anwesens
+12
Zusätzliche Optionen

Inserenten kontaktieren

Oder