Dreizimmerwohnung Permani, Matulji, Matulji

€ 204.000
3
75 m²
1
2
Nein
Balkon

Notiz

Anzeige aktualisiert am: 23.01.2026
Beschreibung

This description has been translated automatically and may not be accurate

Referenz: 3001-81

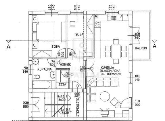
Wohnung Permani, Matulji, 75m2

Zwei-Zimmer-Wohnung in einem Neubau – Permanima, 75 m², Zweiter Stock

Zum Verkauf steht eine moderne Zwei-Zimmer-Wohnung mit Wohnzimmer in einem hochwertigen Neubau in ruhiger Lage in Permanima. Die Wohnung befindet sich im zweiten Stock und hat eine Fläche von 75 m². Sie besteht aus einem geräumigen Wohnzimmer mit Zugang zum Balkon, einer Küche mit Essbereich, zwei Schlafzimmern, einem Badezimmer und einem Abstellraum.

Zur Wohnung gehört ein Parkplatz. Sie wird nach dem "schlüsselfertig"-Prinzip verkauft und derzeit besteht die Möglichkeit, Bodenbeläge und Sanitäranlagen auszuwählen, um die Innenräume nach eigenem Geschmack zu gestalten.

Der geplante Einzugstermin ist Ende 2025.

Die Lage ist ideal für alle, die Ruhe und Privatsphäre suchen, aber dennoch eine gute Anbindung an die Stadt wünschen. Das Stadtzentrum von Rijeka ist nur etwa 15 Autominuten entfernt.

Für weitere Informationen und Besichtigungstermine kontaktieren Sie uns gerne.

ID CODE: 3001-81
Merkmale
Art
Wohnung
Vertrag
Verkauf
Etage
2 etage
Stockwerke im Gebäude
2
Aufzug
Nein
Fläche
75 m²
Zimmer
3
Schlafzimmer
2
Badezimmer
1
Balkon
Ja
Terrasse
Nein
Preisinformationen
Preis
€ 204.000
Preis pro m²
2.720 €/m²
Energieeffizienz
  • Baujahr

    2025
  • Energieausweis

    Nicht klassifizierbar
Grundriss
Entdecken Sie jeden Winkel des Anwesens
+2
Zusätzliche Optionen

Inserenten kontaktieren

Oder