Einfamilienhaus Malinska, Malinska-Dubašnica, Malinska

€ 910.000
5+
237 m²
3
Nein

Notiz

Anzeige aktualisiert am: 28.01.2026
Beschreibung

This description has been translated automatically and may not be accurate

Referenz: 473

Malinska, Umgebung, neu gebaute, mediterrane Villa mit beheiztem Pool!! ID 473

Malinska, Umgebung, moderne, imposante Villa im Bau in ruhiger Lage einer kleinen Inselstadt! Diese moderne Luxusvilla mit beheiztem Swimmingpool erstreckt sich über zwei großzügige Etagen mit einer Gesamtwohnfläche von 215,19 m2, die Ruhe und Privatsphäre wird zusätzlich durch einen angelegten Garten von 504 m2 geschmückt. Im ersten Stock der Villa befinden sich drei luftige Schlafzimmer, von denen eines über ein eigenes Badezimmer mit begehbarer Duschkabine verfügt. Alle drei Zimmer haben die Möglichkeit, auf die gemeinsame, nicht überdachte Außenterrasse zu gelangen, und die beiden Schlafzimmer teilen sich ein Badezimmer. Das geräumige Erdgeschoss wird über viel natürliches Licht verfügen und aus einer Eingangshalle, einer Gästetoilette, einem Badezimmer, einem Raum mit Zugang zu einer nicht überdachten Außenterrasse, Technikräumen, einer Küche, einem Esszimmer und einem geräumigen Wohnzimmer bestehen. Das Wohnzimmer verfügt über einen Zugang zu einer überdachten Außenterrasse mit Außenküche, einem Grillbereich, einem beheizten Swimmingpool mit Liegewiese und einem Loungebereich mit Kamin in der Mitte. Die externe Nebenanlage ist für die SPA-Einrichtungen im Erdgeschoss reserviert, zu denen eine Sauna, ein Whirlpool und ein Wellnessbereich zum Entspannen gehören. Die moderne Steinvilla wird mit hochwertigen Tischlerarbeiten, Bodenbelägen aus hochwertiger Keramik und Stein, hochwertigen Sanitäranlagen, Deckenklimageräten und Fußbodenheizung mit Wärmepumpe ausgestattet. Die Umgebung selbst wird wunderschön mit mediterranen Pflanzen und Grünflächen mit vielen Steindetails dekoriert.
Dokumentation ordentlich!!

ID CODE: 473

Jelena Andrić
Mob: +385 99 3993 088
Tel: +385 51 678 696
E-mail: info@alfaelmas.com
www.alfaelmas.com
Merkmale
Art
Einfamilienhaus
Vertrag
Verkauf
Stockwerke im Gebäude
1
Aufzug
Nein
Fläche
237 m²
Zimmer
5+
Schlafzimmer
4
Badezimmer
3
Balkon
Nein
Terrasse
Nein
Garage, parkplätze (auto)
2 parkplatz(e)
Heizung
Unabhängige heizung, heißluft heizung
Klimaanlage
Eigenständig, kalt / warm
Preisinformationen
Preis
€ 910.000
Preis pro m²
3.840 €/m²
Energieeffizienz
  • Baujahr

    2023
  • Heizung

    Unabhängige heizung, heißluft heizung
  • Klimatisierung

    Eigenständig, kalt / warm
  • Energieausweis

    Nicht klassifizierbar
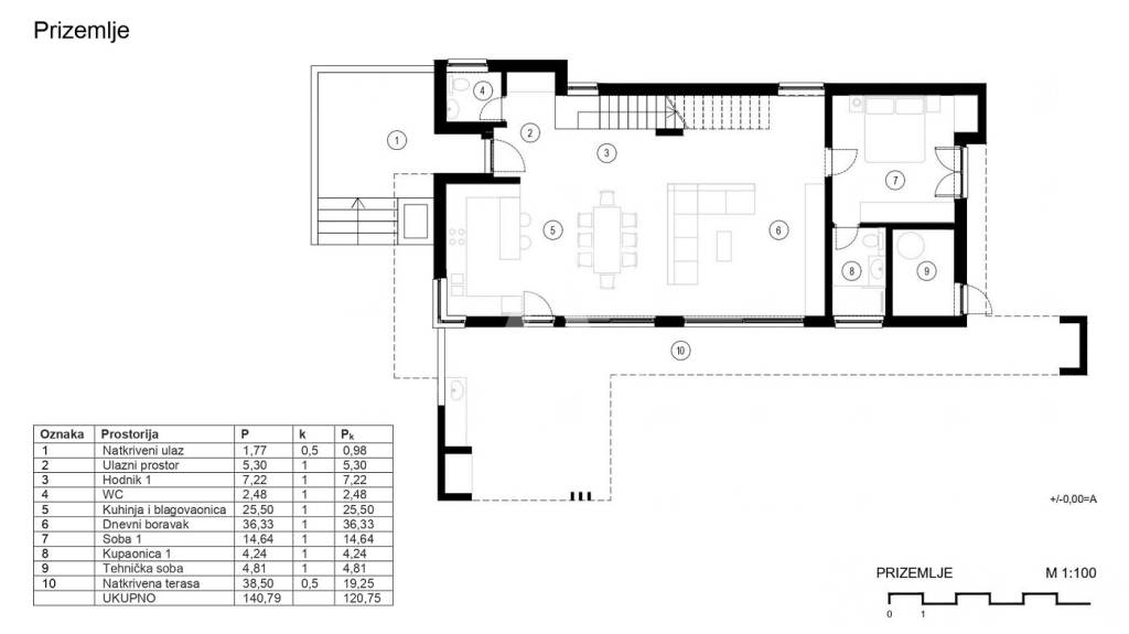
Grundriss
Entdecken Sie jeden Winkel des Anwesens
+5
Zusätzliche Optionen

Inserenten kontaktieren

Oder