1/29


Einfamilienhaus Donji Dragonožec, Brezovica, Brezovica jug, Zagreb
€ 150.000
Anzeige aktualisiert am: 04.03.2026
Beschreibung
Referenz: 68
Haus Donji Dragonožec, Brezovica, Cerje, 0m2
ID CODE: 68
Josip Kukić
Agent s licencom
Mob: +385 92 504 6563
E-mail: josip@agentarealty.hr
www.agentarealty.hr
Merkmale
- Art
- Einfamilienhaus
- Vertrag
- Verkauf
- Stockwerke im Gebäude
- 3
- Aufzug
- Nein
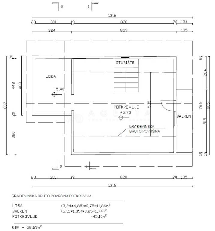
- Fläche
- 211 m²
- Zimmer
- 5+
- Schlafzimmer
- 3
- Badezimmer
- 1
- Balkon
- Nein
- Terrasse
- Ja
- Garage, parkplätze (auto)
- 1 in lager/garage
- Heizung
- Unabhängige heizung, ofenheizung
Preisinformationen
- Preis
- € 150.000
- Preis pro m²
- 711 €/m²
Energieeffizienz
Baujahr
1970Heizung
Unabhängige heizung, ofenheizungEnergieausweis
Nicht klassifizierbar
Entdecken Sie jeden Winkel des Anwesens
Zusätzliche Optionen