Vierzimmerwohnung Vodice, Vodice

€ 507.738
4
120 m²
2
1
Ja
Terrasse

Notiz

Anzeige aktualisiert am: 03.02.2026
Beschreibung

This description has been translated automatically and may not be accurate

Referenz: 4044-S5

Vodice, Neubau – 3-Zimmer-Wohnung mit Panoramablick aufs Meer

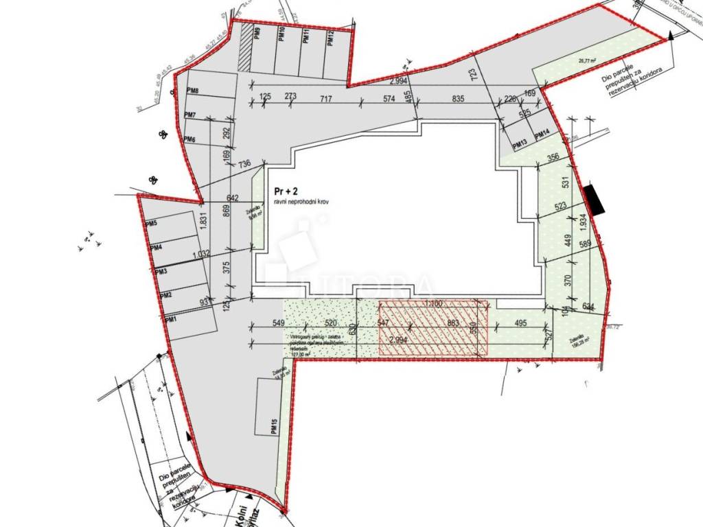
Vodice, Neubau – 3-Zimmer-Wohnung mit Panoramablick aufs Meer. Wohneinheit S5 befindet sich im 1. Obergeschoss des Gebäudes, ist nach Süd ausgerichtet und hat eine Nutzfläche von 120,89m². Sie besteht aus einem Eingangsbereich, Waschküche, zwei Badezimmer, drei Schlafzimmern sowie einer offenen Küche mit Ess- und Wohnzimmer, mit Zugang zur großzügigen überdachten Terrasse von 16,90m² und 5,34m2 mit Meerblick. Der Wohnung gehören außerdem ein Abstellraum im Untergeschoss und ein Parkplatz. Das Gebäude ist ein Mehrfamilienhaus mit 10 Wohneinheiten, mit Panoramablick auf die Stadt und das Meer. Es verfügt über vier Etagen: Untergeschoss + Erdgeschoss + 1. Stock + 2. Stock. Das moderne Gebäude wird mit hochwertigen Bodenbelägen, Innen- und Außenschreinerei, Klimaanlagen zum Heizen und Kühlen in allen Räumen, elektrischen Rollläden sowie einem Aufzug ausgestattet sein. Die Terrassen aller Wohneinheiten bieten Meerblick. Jede Wohnung verfügt über einen komfortablen Parkplatz im Hof der Anlage sowie ein zugeordnetes Abteil im Untergeschoss.
Die Entfernung zum „Plava plaža“ (Blauer Strand) beträgt 840 m, zum Stadtzentrum und allen wichtigen Einrichtungen 750 m. Der geplante Bezugstermin ist Sommer 2026.

ID CODE: 4044-S5

Dijana Banović
Agent s licencom
Mob: +385 98 192 6220
E-mail: dijana@litora-nekretnine.hr
www.litora-nekretnine.hr

Milica Štrkalj
Agent s licencom
Mob: +385 95 342 5722
E-mail: milica@litora-nekretnine.hr
www.litora-nekretnine.hr

Divna Bulat
Agent s licencom
Mob: +385 91 6367 574
E-mail: divna@litora-nekretnine.hr
www.litora-nekretnine.hr
Merkmale
Art
Wohnung
Vertrag
Verkauf
Etage
1 etage
Stockwerke im Gebäude
2
Aufzug
Ja
Fläche
120 m²
Zimmer
4
Schlafzimmer
3
Badezimmer
2
Balkon
Nein
Terrasse
Ja
Garage, parkplätze (auto)
1 parkplatz(e)
Heizung
Unabhängige heizung, heißluft heizung
Klimaanlage
Eigenständig, kalt / warm
Preisinformationen
Preis
€ 507.738
Preis pro m²
4.231 €/m²
Energieeffizienz

Energieverbrauch

A+

Entdecken Sie jeden Winkel des Anwesens
+16
Zusätzliche Optionen

Inserenten kontaktieren

Oder