map icon

Wohnung neu, Erdgeschoss, Zagreb

Zagreb
€ 146.832
5
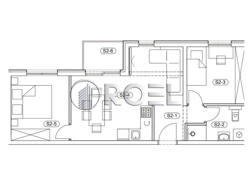
52 m²
1
0

Notiz

Anzeige aktualisiert am: 04.02.2026
Beschreibung

This description has been translated automatically and may not be accurate

Referenz: 1305-1

TOP INVESTMENT OPPORTUNITY, NEW ODRA PHASE III PROJECT.
After the sold-out building with 30 apartments on the adjacent plot, Odra III is now for sale.
If you are looking for a secure investment opportunity or an exceptionally high-quality apartment for living, this is the ideal chance. In Novi Zagreb, in Odra on Odranska Zavrnica Street, there will be an excellent project with 21 apartments, ranging from 49 m to 81.50 m. The building will consist of a ground floor, first and second floors, and a recessed attic, all connected by an elevator.
There will be 5 apartments on the ground floor, a total of 6 apartments on the first and second floors, while the recessed attic will have 4 larger apartments. The building is being constructed by a trusted investor with numerous projects behind them, ensuring future owners transparency throughout the entire process and outstanding quality of workmanship. The planned energy rating is A, which includes heat pumps in every apartment, top-quality thermal insulation, premium ceramics, sanitaryware and parquet flooring, as well as burglar and fire-resistant doors.
The project is currently in the stage of obtaining a building permit, with construction scheduled to begin in the fall of 2026. The planned completion is one year from the start of construction. Considering the market prices of apartments in this area and the fact that the city is expanding in this region and property prices are rising, do not miss this opportunity to acquire your new property. Payment model: - 10% deposit - 30% upon obtaining the building permit - 30% after structural completion - 20% after the facade is finished - 10% at the end Purchase with a mortgage is not possible, and this pre-sales price cannot be adjusted. The seller is in the VAT system, the purchase is directly from the developer, and a partial VAT refund is possible if this is the first property.
The security element for buyers is a promissory note to the company in the amount of the money paid. The company currently has other ongoing construction projects. The micro-location is excellent, situated near all necessary amenities for daily living. Soon, according to the Zagreb city spatial plan, a tram line will be built nearby, which will further increase the value.
According to the spatial plan of the city of Zagreb, a tram line will soon be built nearby, which will further connect this area with the city center. It is located 200 meters from a large Konzum, 400 meters from a school, and the bus stop (lines 166, 268/241) is 600 meters from the property. We are available for any questions and arrangements.
Phone: 091 888 46 43 Maja
Email: maja.niksic@roel.com.hr
Dear customers, the agency commission is charged in accordance with the General Terms and Conditions of Business and amounts to 2% + VAT of the total purchase price.
Wenn Sie mehr wissen möchten, können Sie mit Maja Nikšić. sprechen
Merkmale
Art
Wohnung
Vertrag
Verkauf
Etage
Erdgeschoss
Fläche
52 m²
Zimmer
5
Schlafzimmer
2
Badezimmer
1
Preisinformationen
Preis
€ 146.832
Preis pro m²
2.824 €/m²
Energieeffizienz
  • Baujahr

    2027
  • Zustand

    Neu / Im Bau
  • Energieausweis

    Nicht klassifizierbar
Entdecken Sie jeden Winkel des Anwesens
+10
Zusätzliche Optionen

Inserenten kontaktieren

Oder