Einfamilienhaus 170 m², neu, Kršan

€ 470.000
5
170 m²
3
Terrasse

Notiz

Anzeige aktualisiert am: 04.02.2026
Beschreibung

This description has been translated automatically and may not be accurate

Referenz: TR-5355

Haus Kršan, 170m2

Kršan, moderne Villa am Ende des Dorfes

Eine wunderschöne Villa im Bau befindet sich am Ende eines kleinen Dorfes, umgeben vom Grün der Natur.

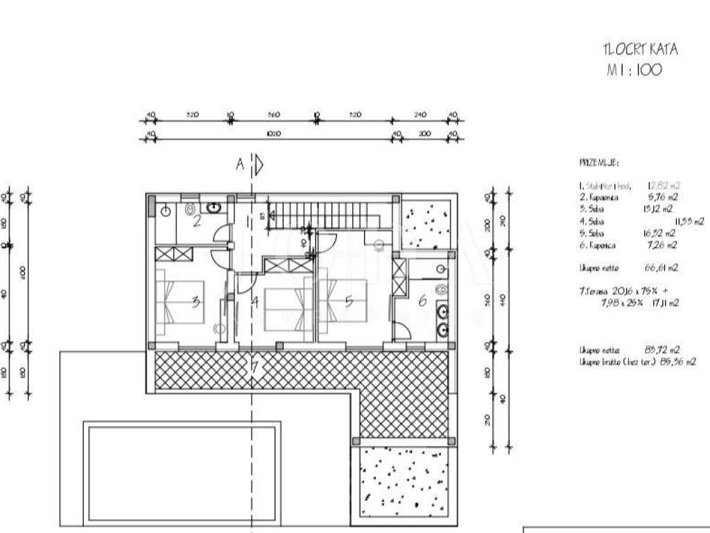
Die Gesamtfläche von 170 Quadratmetern wird aus einem Erdgeschoss und einem Obergeschoss bestehen.

Im Erdgeschoss wird es eine Küche mit Esszimmer, ein großes Wohnzimmer, eine Toilette, ein Schlafzimmer und einen Raum geben, den Sie nach Ihren Wünschen umgestalten können.

Große Glaswände sorgen für viel Sonnenlicht.

Im ersten Stock wird es drei Schlafzimmer, zwei Badezimmer und eine Terrasse geben.

Die Heizung und Kühlung erfolgt über eine Inverter-Klimaanlage.

Das Wohnzimmer führt zu einer großen überdachten Terrasse und einem Swimmingpool mit einer Liegewiese darunter.

Die Villa wird schlüsselfertig verkauft, so dass der zukünftige Eigentümer sie nach seinen eigenen Wünschen gestalten kann.

Die geplante Fertigstellung der Arbeiten wird im zweiten Halbjahr 2024 erwartet.

Alle notwendigen Annehmlichkeiten sind in der Nähe, das Meer ist etwa 10 Autominuten entfernt.

ID CODE: TR-5355

Josip Šikić, mag.oec
Agent s licencom
Mob: +385 91 890 4694
Tel: +385 51 403 771
E-mail: info@joda-nekretnine.hr
www.joda-nekretnine.hr
Merkmale
Art
Einfamilienhaus
Vertrag
Verkauf
Etage
1
Fläche
170 m² | gewerblich 811 m²
Zimmer
5
Schlafzimmer
3
Badezimmer
3
Balkon
Nein
Terrasse
Ja
Klimaanlage
Eigenständig, kalt / warm
Andere Merkmale
  • Pool
Oberflächendetail

Wohnung

Etage
1
Fläche
170,0 m²
Koeffizient
100%
Flächenart
Hauptsächlich
Verkaufsfläche
170,0 m²

Grundstück

Etage
Erdgeschoss
Fläche
641,0 m²
Koeffizient
100%
Flächenart
zusätzlich
Verkaufsfläche
641,0 m²
Preisinformationen
Preis
€ 470.000
Preis pro m²
580 €/m²
Energieeffizienz
  • Baujahr

    2023
  • Zustand

    Neu / Im Bau
  • Klimatisierung

    Eigenständig, kalt / warm
  • Energieausweis

    Befreit
Entdecken Sie jeden Winkel des Anwesens
+8
Zusätzliche Optionen

Inserenten kontaktieren

Oder