Dreizimmerwohnung neu, Erdgeschoss, Luka, Parenzo

€ 435.000
3
106 m²
2
0
Nein

Notiz

Anzeige aktualisiert am: 09.02.2026
Beschreibung

This description has been translated automatically and may not be accurate

Referenz: 40115

Neues Projekt!

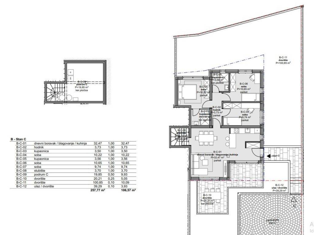
Wohnung zum Verkauf im Erdgeschoss in attraktiver Lage in Poreč. Es besteht aus 3 Schlafzimmern, 2 Bädern, einem Wohnzimmer und einer Küche mit Zugang zur Terrasse. Die Wohnung verfügt über Fußbodenheizung und verfügt über 2 Parkplätze und einen 16m2 großen Abstellraum.

Für weitere Fragen stehen wir Ihnen gerne zur Verfügung!
Merkmale
Art
Wohnung
Vertrag
Verkauf
Etage
Erdgeschoss
Stockwerke im Gebäude
2
Aufzug
Nein
Fläche
106 m²
Zimmer
3
Schlafzimmer
3
Badezimmer
2
Möbliert
Nein
Garage, parkplätze (auto)
1 parkplatz(e)
Klimaanlage
Kalt / warm
Preisinformationen
Preis
€ 435.000
Preis pro m²
4.104 €/m²
Energieeffizienz
  • Baujahr

    2024
  • Zustand

    Neu / Im Bau
  • Klimatisierung

    Kalt / warm
  • Energieausweis

    Befreit
Entdecken Sie jeden Winkel des Anwesens
+4
Zusätzliche Optionen

Inserenten kontaktieren

Oder