Bauland zur Verkauf

€ 150.000
507 m²

Notiz

Anzeige aktualisiert am: 15.04.2026
Beschreibung

This description has been translated automatically and may not be accurate

Referenz: I34151

Bilice Baugrundstück mit Baugenehmigung

In der ruhigen und gepflegten Siedlung Bilice, in unmittelbarer Nähe von Šibenik, steht ein 507 m großes Baugrundstück zum Verkauf. Das Grundstück hat eine regelmäßige Form (ca. 20 x 25 m) und ist über eine gesicherte Zufahrtsstraße erreichbar.

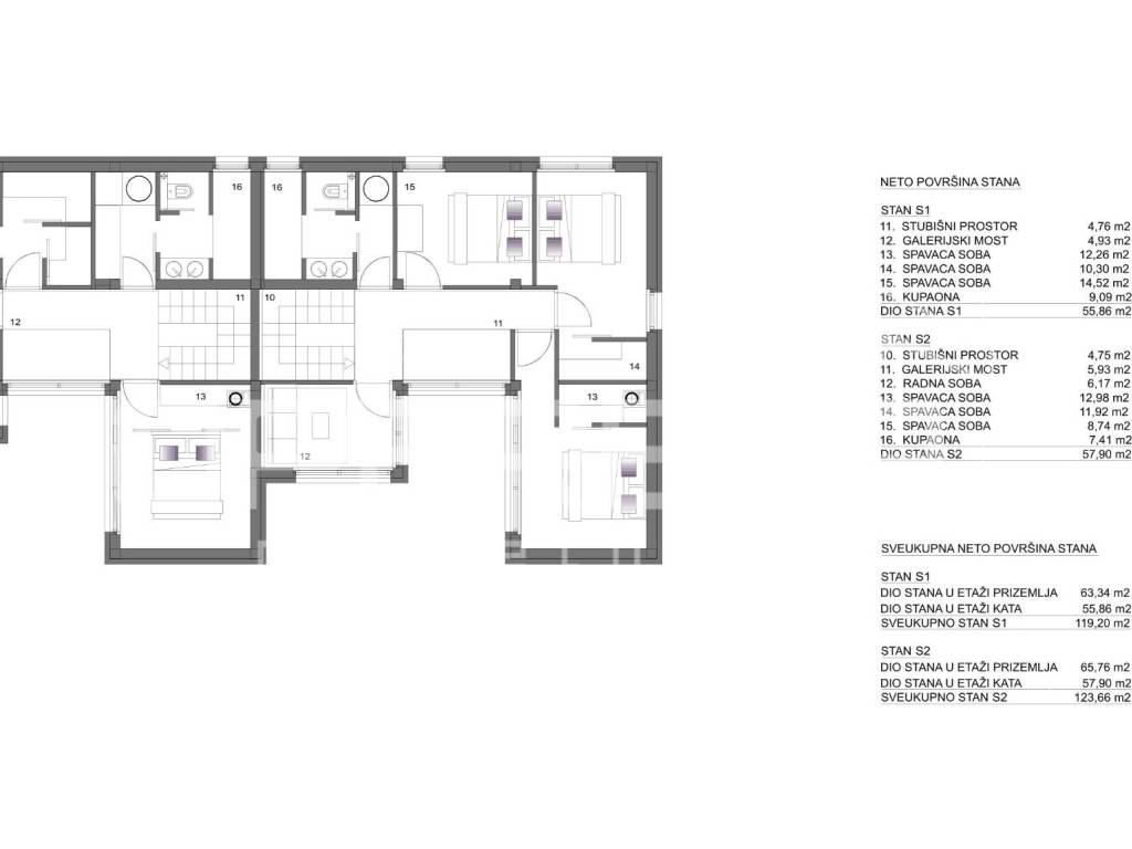
Für ein zweigeschossiges Doppelhaus mit jeweils ca. 120 m Wohnfläche liegt bereits eine Baugenehmigung vor, wodurch sich die Bauzeit deutlich verkürzt.

Die gesamte notwendige Infrastruktur befindet sich in unmittelbarer Nähe.

Die Lage bietet die perfekte Kombination aus Ruhe und der Nähe zu allen Annehmlichkeiten von Šibenik, darunter Schulen, Einkaufsmöglichkeiten, medizinische Einrichtungen und Verkehrsanbindungen.

Eine attraktive Investitionsmöglichkeit!
Merkmale
Vertrag
Verkauf
Art
Bauland
Fläche
507 m²
Preisinformationen
Preis
€ 150.000
Preis pro m²
296 €/m²
Entdecken Sie jeden Winkel des Anwesens
+5
Zusätzliche Optionen

Inserenten kontaktieren

Oder