Dreizimmerwohnung neu, dritte Etage, Čakovec

€ 240.170
3
72 m²
1
3
Ja

Notiz

Anzeige aktualisiert am: 14.03.2026
Beschreibung

Referenz: I32182

PRODAJA, STAN, ČAKOVEC
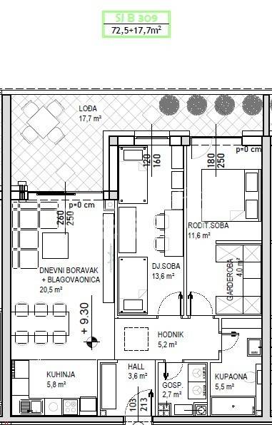
Prodaje se stan površine 72,5 m2 s lođom površine 17,7 m2 na 3. katu niskoenergetske stambeno poslovne zgrade na odličnoj lokaciji. Zgrada se sastoji od podruma, visokog prizemlja, prvog, drugog i trećeg kata te sadrži ukupno 74 stambene jedinice i 7 poslovnih prostora. Završetak gradnje predviđen je krajem 2025./početak 2026. Energetski razred je A+. Moguć je odabir podnih obloga (keramika, parket ili laminat) te odabir unutarnje stolarije. Uz stan moguća je kupovina vanjskog parkirnog mjesta, garažnog mjesta bez spremišta ili garažnog mjesta sa spremištem.
Za dodatne informacije stojimo na raspolaganju, a ovisno o načinu i količini plaćanja moguća je određena korekcija cijene.
Merkmale
Art
Wohnung
Vertrag
Verkauf
Etage
3 etage
Aufzug
Ja
Fläche
72 m²
Zimmer
3
Schlafzimmer
2
Badezimmer
1
Möbliert
Nein
Heizung
Zentralheizung, gasbetrieben
Klimaanlage
Kalt / warm
Preisinformationen
Preis
€ 240.170
Preis pro m²
3.336 €/m²
Energieeffizienz

Energieverbrauch

A+

Entdecken Sie jeden Winkel des Anwesens
+5
Zusätzliche Optionen

Inserenten kontaktieren

Oder