Vierzimmerwohnung neu, erste Etage, Luka, Parenzo

€ 222.000
4
69 m²
1
1
Balkon
Keller

Notiz

Anzeige aktualisiert am: 16.02.2026
Beschreibung

This description has been translated automatically and may not be accurate

Referenz: 475

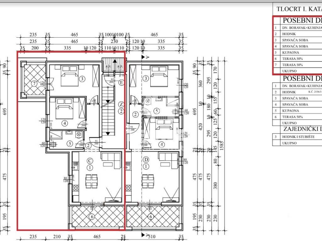
Wohnung im ersten Stock mit Abstellraum in der Nähe von Poreč

Wohnung zum Verkauf im ersten Stock mit Abstellraum in der Nähe von Poreč.

Die Wohnung ist sehr komfortabel und besteht aus einer Eingangshalle, zwei geräumigen Schlafzimmern, von denen eines Zugang zu einer privaten Terrasse hat. Vom Wohnzimmer und der Küche mit Essbereich gibt es Zugang zu einer weiteren großen Terrasse.

Zur Wohnung gehört außerdem ein Abstellraum von 3,78 m2.

Alle Böden in den Wohnungen sind mit Keramikfliesen ausgelegt, der Kaufpreis beträgt bis zu 25,00 /m. In den Zimmern wird Laminat zu einem Kaufpreis von bis zu 25,00 /m verlegt. Die Wände von Bädern und Küchen werden mit Keramikfliesen verkleidet, der Kaufpreis beträgt bis zu 25,00 /m.

Die Eingangstüren zu den Wohnungen sind einbruchhemmend und feuerbeständig. Die Zimmertüren sind massiv, furniert. Die Sanitäranlagen sind mittelklassig, Duschen mit Kanälen, ggf. Kabinen, je nach Wahl des Kunden.

Jede Wohneinheit verfügt über interne Installationen für Telefonanschluss, terrestrische und Satellitenantenne im Wohnzimmer und in den Zimmern.

Die Heizung und Kühlung der Wohnungen erfolgt über Klimaanlagen im Wohn- und Schlafzimmer

In den Badezimmern ist eine Fußbodenheizung mit Thermostat installiert.

Voraussichtliche Fertigstellung und Bezug ist Ende 2024.

Lassen Sie sich diese Gelegenheit nicht entgehen, denn diese Wohnung mit großem Garten kann Ihnen gehören, wenn Sie uns rechtzeitig kontaktieren.
Die Wohnung kann sowohl zu Wohnzwecken als auch zu touristischen Zwecken genutzt werden.

www.leones-realestate.hr
Merkmale
Art
Wohnung
Vertrag
Verkauf
Etage
1 etage
Stockwerke im Gebäude
2
Fläche
69 m²
Zimmer
4
Schlafzimmer
2
Badezimmer
1
Möbliert
Nein
Balkon
Ja
Garage, parkplätze (auto)
1 parkplatz(e)
Heizung
Unabhängige heizung, fußbodenheizung, stromversorgung
Klimaanlage
Kalt / warm
Andere Merkmale
  • Gepanzerte Tür
Preisinformationen
Preis
€ 222.000
Preis pro m²
3.217 €/m²
Energieeffizienz

Energieverbrauch

A

Entdecken Sie jeden Winkel des Anwesens
+3
Zusätzliche Optionen

Inserenten kontaktieren

Oder