Einfamilienhaus 397 m², neu, Sukošan

€ 1
4
397 m²
3+
Nein
Balkon

Notiz

Anzeige aktualisiert am: 30.04.2026
Beschreibung

This description has been translated automatically and may not be accurate

Referenz: H556

NEUE LUXUSVILLA MIT POOL UND MEERBLICK, Sukošan 90 m vom Meer

Zum Verkauf steht eine sehr moderne Luxusvilla mit Pool und Meerblick in Sukošan. Diese ist nur 90 m vom Meer entfernt.
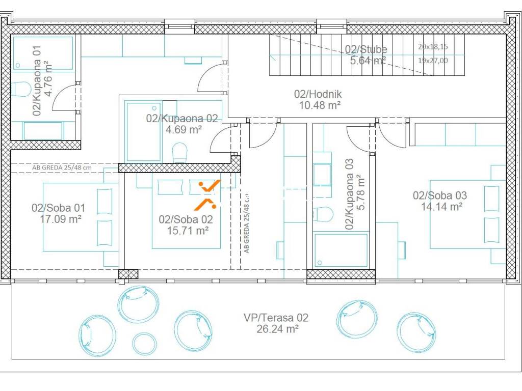
Das Haus besteht aus Erdgeschoss und Obergeschoss. Im Erdgeschoss sind eine Garage, Flur, Garderobe, Toilette, Küche mit Esszimmer und Wohnzimmer und eine teilweise überdachte Terrasse mit Swimmingpool. Fläche des Erdgeschosses beträgt 210,63 m2. Darüber hinaus sind im ersten Stock Flur, 2 Schlafzimmer mit eigenen Bädern, ein weiteres Schlafzimmer, Badezimmer und eine überdachte Terrasse. 1. Etage hat eine Fläche von 104,53 m2. Eine Innentreppe führt weiter zur Dachterrasse von 82,06 m2.
Gesamtfläche des Hauses beträgt 397,22 m2. Grundstücksfläche beträgt 422 m2.
Beim Kauf dieser Immobilie zahlt der Käufer keine Immobilienerwerbssteuer.
Zentrum von Sukošana ist nur 800 m von dieser Immobilie entfernt.

Ausstattung

Konstruktion mit Betonwand. Fassadenwärmedämmung 16 cm Styropor. Bodenbeläge sind Fliesen. Fenster sind aus Aluminium mit Moskitonetzen und Dreischichtglas. Fußbodenheizung im ganzen Haus. Auch Klimaanlagen im Wohnzimmer und jedem Schlafzimmer. Darüber hinaus ist die Eingangstür einbruchhemmend.
Fläche des Pools beträgt 38,70 m2. Pool verfügt über eine Heizung und Gegenstromschwimmen. Beschichtung des Pools ist keramisch.
Energieausweis A wird erwartet.
Standort
Sukošan ist ein charmantes dalmatinisches Küstenstädtchen in der weitläufigen Bucht Zlatna Luka, nur 7 km von Zadar entfernt. Mit rund 3.000 Einwohnern sowie den umliegenden Orten Debeljak, Glavica und Gorica bietet es eine ruhige mediterrane Atmosphäre in Kombination mit hervorragender Verkehrsanbindung. Die wichtigste Attraktion ist die D-Marin Dalmacija, die größte Marina an der Adria, die Sukošan zu einem wahren Paradies für Segler und Meeresliebhaber macht.
Besonders attraktiv sind die vielfältigen Strände wie der beliebte Kinderparadies-Strand, der ruhigere Podvare-Strand oder der Kiesstrand Makarska, ebenso wie kleine, versteckte Buchten, die es zu entdecken gilt. Baden, Segeln und Spaziergänge entlang der Küste werden durch ein abwechslungsreiches Kultur- und Gesellschaftsleben ergänzt. Im Sommer erwarten Sie Fischerfeste, Konzerte, Folkloreabende und das Fest des hl. Kasijan mit Feuerwerk. Sportbegeisterte genießen den Schwimmmarathon, lokale Turniere oder die bekannte Regatta „Tanz mit den Segeln“.
Dank unberührter Natur, erstklassiger nautischer Infrastruktur und zahlreicher Veranstaltungen zählt Sukošan zu den begehrtesten Orten für den Kauf von Immobilien an der Adria – sei es als ruhiges Zuhause am Meer oder als attraktive Investition mit hohem Vermietungspotenzial.

Sonstiges

Falls Sie diese Immobilie woanders zu einem günstigeren Preis gesehen haben, gilt der gleiche Preis auch bei uns!

https://www.emporia-immobilien.com/property/haus-h556-sukosan/
Merkmale
Art
Einfamilienhaus
Vertrag
Verkauf
Etage
1
Stockwerke im Gebäude
2
Aufzug
Nein
Fläche
397 m² | gewerblich 819 m²
Zimmer
4
Schlafzimmer
3
Badezimmer
3+
Möbliert
Nein
Balkon
Ja
Garage, parkplätze (auto)
1 parkplatz(e)
Klimaanlage
Kalt / warm
Andere Merkmale
  • Pool
  • Gepanzerte Tür
Oberflächendetail

Wohnung

Etage
1
Fläche
397,0 m²
Koeffizient
100%
Flächenart
Hauptsächlich
Verkaufsfläche
397,0 m²

Grundstück

Etage
Erdgeschoss
Fläche
422,0 m²
Koeffizient
100%
Flächenart
zusätzlich
Verkaufsfläche
422,0 m²
Preisinformationen
Preis
€ 1
Preis pro m²
0 €/m²
Energieeffizienz

Energieverbrauch

A

Entdecken Sie jeden Winkel des Anwesens
+5
Zusätzliche Optionen

Inserenten kontaktieren

Oder