map icon

Wohnung erste Etage, Nin

Nin
€ 1.733.594
232 m²
1
Möbliert

Notiz

Anzeige aktualisiert am: 01.05.2026
Beschreibung

Referenz: s246

Luksuzni penthouse 50 m od mora – Panoramski pogled, privatnost i dizajn na najvišoj razini
Smješten na ekskluzivnoj lokaciji, svega 50 metara od kristalno čiste plaže, ovaj vrhunski penthouse predstavlja spoj luksuza, vrhunskih materijala i besprijekorne funkcionalnosti. Sa svojom tlocrtno obračunatom površinom od 430,90 m², ova nekretnina nudi prostranost, privatnost i očaravajući pogled na more i zalazak sunca iz gotovo svake prostorije.
Glavne značajke:
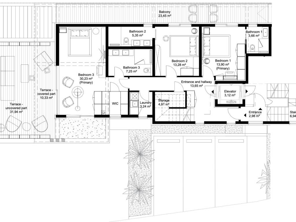
– Stambena površina: 231,84 m²
– Ukupna površina s terasama, spremištem, garažom i bazenom: 430,90 m²
– 3 luksuzno uređene spavaće sobe
– 3 prostrane kupaonice + gostinjski wc
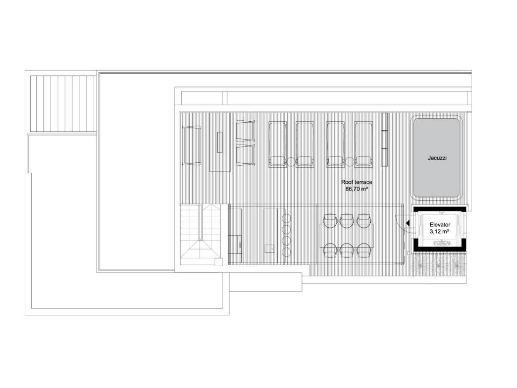
– Privatan veliki jacuzzi na krovnoj terasi i više terasa s pogledom na more
– Privatni lift izravno u stan
– 3 parkirna mjesta (1 zatvoreno) s EV punjačem
– Potpuno opremljena kuhinja i praonica
– Smart Home sustav (KNX – Siemens/ABB)
– Dizajnerski namještaj uključen u cijenu
Unutarnji raspored:
Dnevni boravak i blagovaonica: Prostran i svijetao open-space prostor s velikim staklenim stijenama, direktan izlaz na terasu, parni kamin s promjenjivim bojama plamena, Sonos ozvučenje, ambijentalna rasvjeta i ručno rađeni namještaj. Idealno za opuštanje i uživanje u zalascima sunca.
Kuhinja: Vrhunski uređena s Miele uređajima, kuhinjski otok s “waterfall” dizajnom i LED rasvjetom, granitne radne plohe i integrirani uređaji najviše klase.
Spavaće sobe: Tri prostrane spavaće sobe, od kojih glavna ima vlastitu kupaonicu, ugradbeni ormari, dizajnerska rasvjeta i Smart TV, pogled na more i maksimalna udobnost.
Kupaonice: Tri moderno opremljene kupaonice s walk-in tuševima, Hansgrohe slavinama i podnim grijanjem. Glavna kupaonica s duplim umivaonicima i vrhunskim završnim obradama. Dodatni gostinjski toalet.
Praonica i spremište: Potpuno opremljena praonica rublja s perilicom i sušilicom, praktično unutarnje spremište.
Ulaz i hodnik: Privatni lift izravno u stan, uređen hodnik s diskretnom rasvjetom i elegantnim završnim detaljima.
Tehničke specifikacije:
– Podno grijanje u cijelom stanu (dizalica topline)
– Multisplit klima sustav (LG/Armco)
– Automatizirani sustav roleta, svjetla i grijanja (KNX)
– Sonos bežično ozvučenje, WiFi, mogućnost Starlink veze
– Samsung Smart TV u dnevnom i svim spavaćim prostorima
– Dekorativna LED rasvjeta i drveni paneli
Eksterijer i okoliš:
Privatni jacuzzi(9m2) i lounge zona, više terasa za jutarnje, dnevno i večernje uživanje, pogled na more i zalazak sunca bez prepreka, prostor za objedovanje i opuštanje na otvorenom.
Idealno za:
One koji traže najviši standard stanovanja na Jadranu, investitore za ekskluzivni najam, obiteljsku oazu ili luksuznu rezidenciju uz more.
Jedinstvena prilika – spoj dizajna, tehnologije i prestižne lokacije. Useljivo odmah – bez dodatnih ulaganja.
Za više informacija ili razgledavanje ove jedinstvene nekretnine, slobodno nas kontaktirajte.
 
Merkmale
Art
Wohnung
Vertrag
Verkauf
Etage
1 etage
Fläche
232 m²
Möbliert
Ja
Garage, parkplätze (auto)
1 in lager/garage
Andere Merkmale
  • Gepanzerte Tür
Preisinformationen
Preis
€ 1.733.594
Preis pro m²
7.472 €/m²
Energieeffizienz
  • Baujahr

    2025
  • Energieausweis

    Befreit
Entdecken Sie jeden Winkel des Anwesens
+48
Zusätzliche Optionen

Inserenten kontaktieren

Oder