map icon

Wohnung 81 m², Sukošan

Sukošan
€ 281.855
81 m²

Notiz

Anzeige aktualisiert am: 01.05.2026
Beschreibung

Referenz: s287

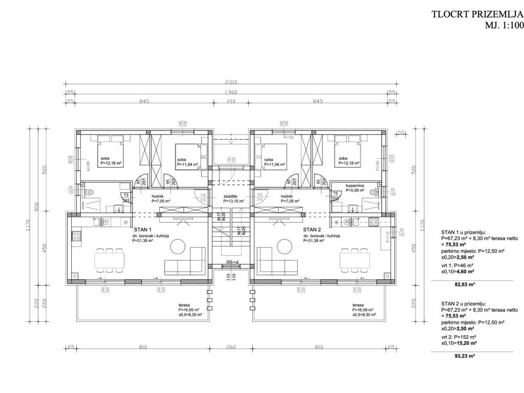
Sukošan – Dvosoban stan u prizemlju s vrtom, 250 m od mora
Prodaje se moderan dvosoban stan (S1) smješten u prizemlju manje stambene zgrade s ukupno šest stambenih jedinica (po dva stana na svakoj etaži). Ukupna površina stana iznosi 80,53 m², od čega 67,23 m² čini stambeni dio, a dodatno mu pripadaju  dva vanjska parkirna mjesta.
Stan se sastoji od:

kuhinje s blagovaonicom i dnevnim boravkom u otvorenom konceptu,
dvije spavaće sobe,
kupaonice,
natkrivene terase s izlazom u vlastiti vrt.

Zgrada se ističe vrhunskom kvalitetom gradnje i korištenjem isključivo materijala renomiranih proizvođača – Marazzi keramika, termo aluminijska stolarija, Daikin inverter klima uređaji te podno grijanje u svim prostorijama(izuzev spavaćih soba).
Lokacija je izvrsna, mirna i ugodna za stanovanje ili odmor, a udaljenost od mora i plaže iznosi svega 250 metara.
Zgrada je u  fazi izgradnje te se završetak svih radova i useljenje se očekuje najkasnije do 15.05.2026 godine.
Prodavatelj je pravna osoba, stoga kupac ne plaća porez na promet nekretnina. Kontaktirajte nas za više informacija ili dogovor oko razgledavanja.U ponudi su i sljedeći stanovi u istoj zgradi:
S1- 80,53 m2 - 281.855,00 EUR (prizemlje)
S2- 86,20 m2 – 301.700,00 EUR (prizemlje)
S3- 78,03 m2 – 273.105,00 EUR ( prvi kat)
S4- 78,03 m2 – 273.105,00 EUR ( prvi kat)
S5- 93 m2 – 348.253,00 EUR (drugi kat-penthouse)
S6- PRODANO.
 
 
Merkmale
Art
Wohnung
Vertrag
Verkauf
Fläche
81 m²
Möbliert
Nein
Garage, parkplätze (auto)
2 in lager/garage
Andere Merkmale
  • Gepanzerte Tür
Preisinformationen
Preis
€ 281.855
Preis pro m²
3.480 €/m²
Energieeffizienz
  • Baujahr

    2026
  • Energieausweis

    Befreit
Entdecken Sie jeden Winkel des Anwesens
+4
Zusätzliche Optionen

Inserenten kontaktieren

Oder