map icon

Einfamilienhaus 878 m², Sukošan

Sukošan
€ 2.500.000
878 m²
Balkon
Teilmöbliert

Notiz

Anzeige aktualisiert am: 01.05.2026
Beschreibung

Referenz: k259

Olive Tree – više od stanovanja
Na prodaju je cijela ekskluzivna stambena zgrada smještena u mirnom, zelenom dijelu Sukošana, okružena stoljetnim maslinicima i pogledom na more. Suvremena zgrada skladno se uklapa u mediteranski krajolik, spajajući prirodnu tišinu s modernim komforom.
Zgrada je osmišljena za one koji traže više od pukog stanovanja - za one koji žele investirati u u turizam putem nekretnine koja ostvaruje prihode i sama sebe oplaćuje.
Svaki stan nudi privatnost, estetiku i osjećaj pripadnosti, dok krovne terase otkrivaju panoramu zadarskog arhipelaga. Olive Tree nije samo mjesto – to je životni stil u kojem svaki detalj ima značenje.
Uz svaki stan dolazi kompletno opremljena kuhinja s Bosch uređajima, kupaonica s perilicom rublja, kazetna tenda na terasi i pomno odabrani detalji koji prostoru odmah daju funkcionalnost, stil i vrijednost. Stanovi B5 i B6 dolaze s kompletno opremljenim i namještenim krovnim terasama što uključuje sljedeće: natkriveni dio krovne terase površine 25 m2 unutar kojeg se nalazi vanjska kuhinja s  otokom, plinskim roštiljem, duplom indukcijom, sudoperom, hladnjakom, vinotekom, radnom površinom, barskim stolicama i ugrađenim TV-om. U nenatkrivenom dijelu se nalazi jacuzzi, ležaljke za sunčanje i vanjski stol i stolice za 6 osoba. Ugradnja namještaja i opreme je u tijeku te će oglas biti ažuriran fotografijama po završetku.
Sve je tu – da ne počinjete od nule, već od osjećaja doma.
U ponudi je cijela zgrada sa 6 stambenih jedinica ( svi stanovi su etažirani):
PRIZEMLJE
B1-70,69 m2, kuhinja, blagovaonica, dnevni boravak, spavaća soba, kupaonica, natkrivena terasa, vanjski vrt, spremište u podrumu zgrade i garaža unutar podzemne garaže. 
B2-75.38 m2, kuhinja, blagovaonica, dnevni boravak, spavaća soba, kupaonica, natkrivena terasa, vanjski vrt, spremište u podrumu zgrade i dva vanjska parkirna mjesta.
1.KAT
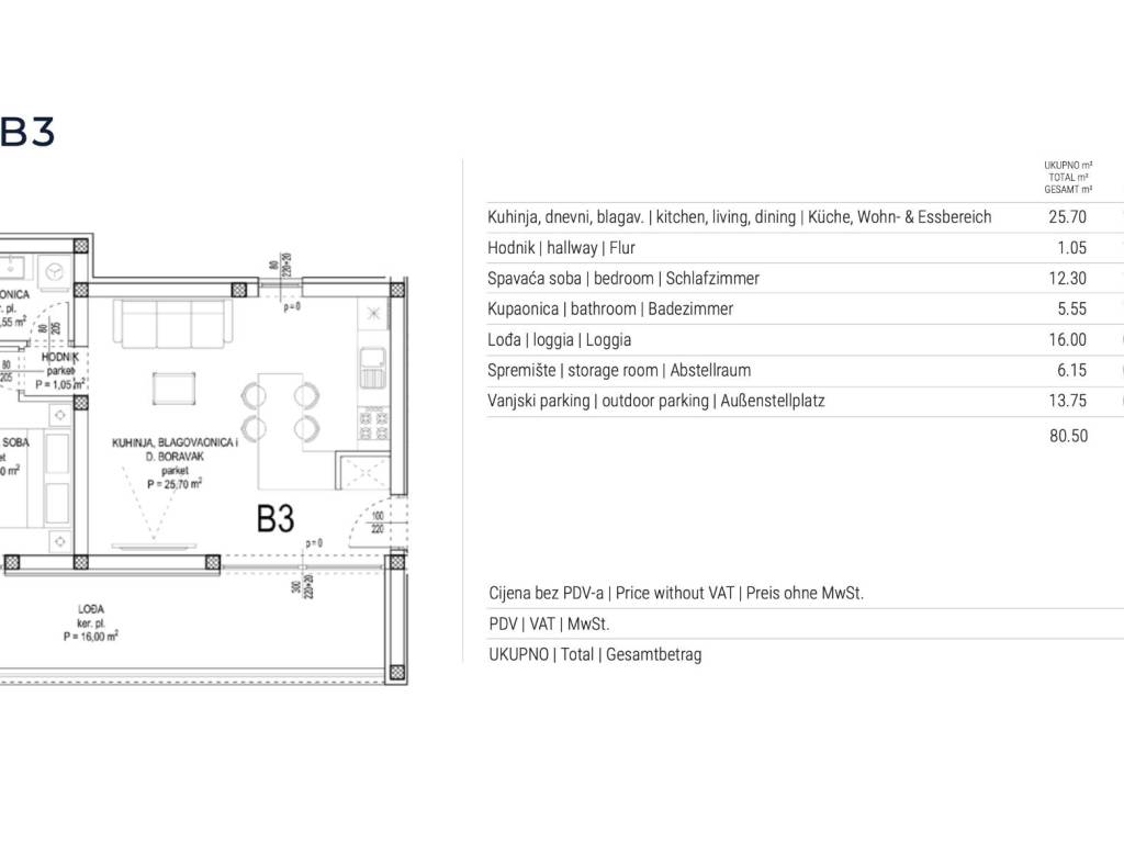
B3-62,43 m2, kuhinja, blagovaonica, dnevni boravak, spavaća soba, kupaonica, natkrivena terasa, spremište u podrumu zgrade i vanjsko parkirno mjesto.
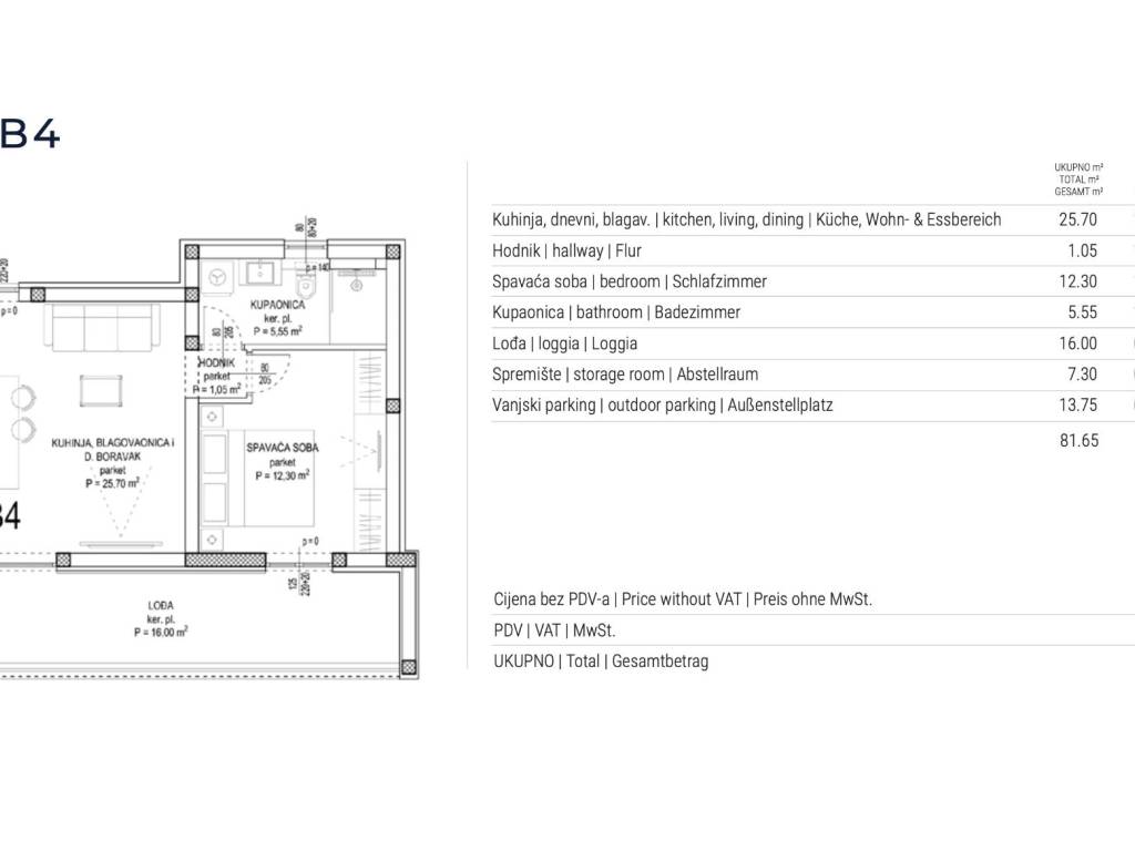
B4-63 m2, kuhinja, blagovaonica, dnevni boravak, spavaća soba, kupaonica, natkrivena terasa, spremište u podrumu zgrade i vanjsko parkirno mjesto.
2.KAT
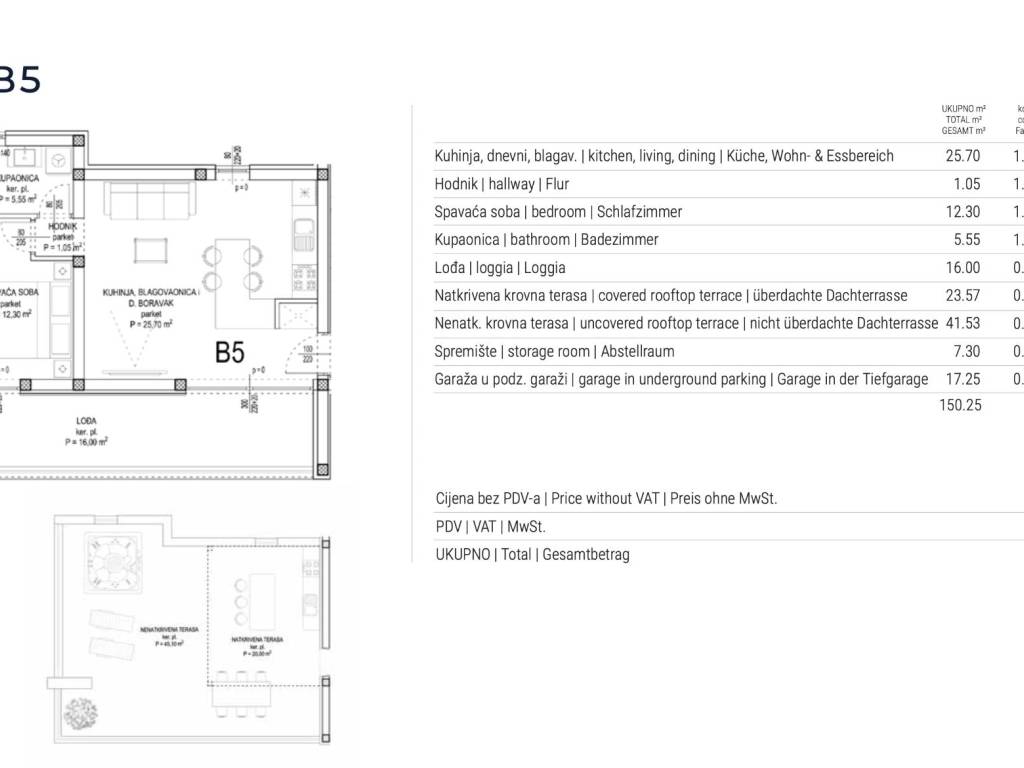
B5-91,04 m2, kuhinja, blagovaonica, dnevni boravak, spavaća soba, kupaonica, natkrivena terasa, natkrivena krovna terasa, nenatkrivena  krovna terasa, spremište u podrumu zgrade i garaža unutar podzemne garaže. 
B6-91,92 m2, kuhinja, blagovaonica, dnevni boravak, spavaća soba, kupaonica, natkrivena terasa, natkrivena krovna terasa, nenatkrivena  krovna terasa, spremište u podrumu zgrade i garaža unutar podzemne garaže.
Prodavatelj je pravna osoba u sustavu PDV-a što znači da je kupac oslobođen plaćanja poreza na promet nekretninama.
Konstrukcija i sigurnost
·       Građeno s POROTHERM blokovima za čvrstoću, izolaciju i zdravu mikroklimu.
·       Pojačana armatura osigurava dugotrajnost i sigurnost.
·       Sve izvedeno po najvišim standardima gradnje.
Prozori i staklene stijene
·       Korišteni REHAU PVC profili za vrhunsku izolaciju, trajnost i moderan izgled.
·       Velike klizne staklene stijene otvaraju prostor svjetlu i pogledu.
Fasada
·       STO fasadni sustav pruža zaštitu, estetiku i dugovječnost – bez kompromisa.
Prirodni materijali i dizajn
·       Rimski Travertino, prirodni kamen toplih nijansi i bogate teksture, ugrađen je na stubištima i balkonima.
·       Njegova patina s vremenom postaje ljepša, stvarajući osjećaj autentičnosti, tišine i trajnosti.
·       Ručna obrada svakog komada dodatno naglašava povezanost s prostorom i mediteranskom tradicijom.
Komfor i tehnologija
·       U stanove su ugrađeni tihi i učinkoviti klima uređaji Mitsubishi Electric.
·       Etaže povezuje moderan i pouzdan KONE lift.
·       Podzemna garaže.
Kuhinje, kupaonice i oprema
·       Kuhinje i kupaonice opremljene su Bosch uređajima visoke kvalitete.
·       Na terasama su predviđene kazetne tende koje čuvaju arhitektonski sklad.
·       Sve je pažljivo odabrano kako bi udobnost bila dio svakodnevice.
Podovi i završne obloge
·       Podovi su obloženi višeslojnim hrastovim parketom, koji prostoru daje toplinu, eleganciju i dugotrajnost.
·       Kupaonice su opremljene porculanskom keramikom velikog formata, s minimalnim fugama za čisti, luksuzan izgled.
·       Ugrađeno je DEVI podno grijanje, za tihu i postojanu toplinu u svakom kutu.
Sigurnost i detalji interijera
·       Protuprovalna i protupožarna KOLNOA ulazna vrata pružaju sigurnost i stil.
·       Unutarnja vrata po mjeri, do stropa, naglašavaju eleganciju prostora.
·       Staklene ograde na stubištima i balkonima otvaraju pogled i daju prozračnost.
Instalacije i rasvjeta
·       Električne instalacije opremljene su Vimar komponentama, poznatim po vrhunskom dizajnu i pouzdanosti.
·       Rasvjeta je diskretna, ambijentalna i funkcionalna, pažljivo usklađena.
Sukošan – destinacija za život i investiciju
Smješten na atraktivnoj lokaciji svega 7 minuta vožnje od Zadra i 10 minuta od Zračne luke Zadar, Sukošan predstavlja jednu od najpoželjnijih destinacija za život i investiciju na hrvatskoj obali.
Izvrsna prometna povezanost, blizina autoceste A1 te moderna infrastruktura čine ga lako dostupnim, kako za svakodnevni život, tako i za povremeni boravak.
Sukošan je više od slikovitog dalmatinskog mjesta – to je prostor koji nudi visoku kvalitetu života uz mediteranski ambijent. Prepoznatljiv po jednoj od najvećih marina na Jadranu, brojnim uvalama i plažama, kao i bogatoj gastronomskoj ponudi, ovo mjesto uspješno spaja tradicionalni ugođaj s modernim standardima stanovanja.
Okružen maslinicima, vinogradima i prirodnim zelenilom, Sukošan pruža mirno i sigurno okruženje, uz sve potrebne sadržaje nadohvat ruke – od trgovina, škola i ljekarni do restorana, kafića i sportskih sadržaja.Kupnja nekretnine u Sukošanu predstavlja promišljenu investiciju u kvalitetan životni prostor, bilo da tražite privatnu oazu uz more ili dugoročnu vrijednost na atraktivnoj lokaciji u neposrednoj blizini Zadra.
Merkmale
Art
Einfamilienhaus
Vertrag
Verkauf
Etage
1
Fläche
878 m² | gewerblich 1.483 m²
Möbliert
Teilmöbliert
Balkon
Ja
Andere Merkmale
  • Gepanzerte Tür
Oberflächendetail

Wohnung

Etage
1
Fläche
878,0 m²
Koeffizient
100%
Flächenart
Hauptsächlich
Verkaufsfläche
878,0 m²

Grundstück

Etage
Erdgeschoss
Fläche
605,0 m²
Koeffizient
100%
Flächenart
zusätzlich
Verkaufsfläche
605,0 m²
Preisinformationen
Preis
€ 2.500.000
Preis pro m²
1.686 €/m²
Energieeffizienz
  • Energieausweis

    Befreit
Entdecken Sie jeden Winkel des Anwesens
+24
Zusätzliche Optionen

Inserenten kontaktieren

Oder