map icon

Bauland zur Verkauf

Trogir
€ 184.900

Notiz

Anzeige aktualisiert am: 19.02.2026
Beschreibung

This description has been translated automatically and may not be accurate

Referenz: 2022/475

Baugrundstück mit Projekt und Panoramablick aufs Meer

Zum Verkauf steht ein Baugrundstück in der Nähe von Trogir. Das Grundstück hat eine Gesamtfläche von 530 m, ist regelmäßig geformt und befindet sich in erhöhter Lage.



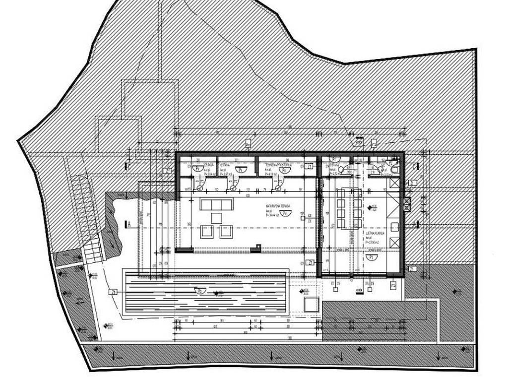
Für das Grundstück liegt eine gültige Baugenehmigung für den Bau einer dreistöckigen Villa vor. Die Villa wird eine Gesamtfläche von 247 m haben und über einen Außenpool, eine Terrasse und ein Sonnendeck verfügen. Das geplante Projekt umfasst vier geräumige Schlafzimmer, jedes mit eigenem Bad en suite und Zugang zu einer Terrasse mit Panoramablick aufs Meer.



Im Untergeschoss befinden sich ein Wohnzimmer mit einer 28 m großen Sommerküche, eine Speisekammer und ein Gäste-WC. Darüber hinaus sind eine überdachte Terrasse von 34,5 m, zwei weitere Speisekammern und ein Technikraum vorgesehen.



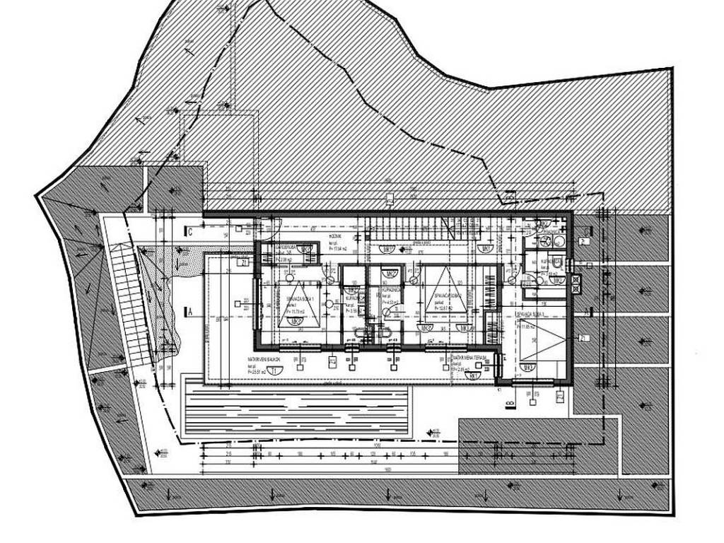
Im Erdgeschoss befinden sich drei komfortable Schlafzimmer, jedes mit eigenem Bad und Zugang zu einem Balkon. Das Hauptschlafzimmer verfügt über einen begehbaren Kleiderschrank. Auf dieser Etage befinden sich außerdem ein Flur und eine Waschküche.



Die oberste Etage ist für ein großes Wohnzimmer, eine Küche und ein Esszimmer mit offenem Raumkonzept sowie ein weiteres Schlafzimmer mit eigenem Bad reserviert. Von dieser Etage aus haben Sie Zugang zu einem großen Balkon und einer Terrasse mit freiem Meerblick.



Das Projekt wurde sorgfältig geplant, sodass alle Räume nach Süden ausgerichtet sind und die Villa viel Tageslicht erhält. Große Glaswände ermöglichen einen ungehinderten Blick auf die umliegende Landschaft und das Meer und machen die Landschaft hell und luftig.



Das Grundstück ist nur 400 m vom Meer entfernt und alle notwendigen Annehmlichkeiten befinden sich in unmittelbarer Nähe. Es liegt 2 km vom Zentrum von Trogir und nur 9 km vom Flughafen Split entfernt.

Merkmale
Vertrag
Verkauf
Art
Bauland
Preisinformationen
Preis
€ 184.900
Entdecken Sie jeden Winkel des Anwesens
+6
Zusätzliche Optionen

Inserenten kontaktieren

Oder