map icon

Bauland zur Verkauf

Makarska
€ 370.000

Notiz

Anzeige aktualisiert am: 07.03.2026
Beschreibung

This description has been translated automatically and may not be accurate

Referenz: 2049/60

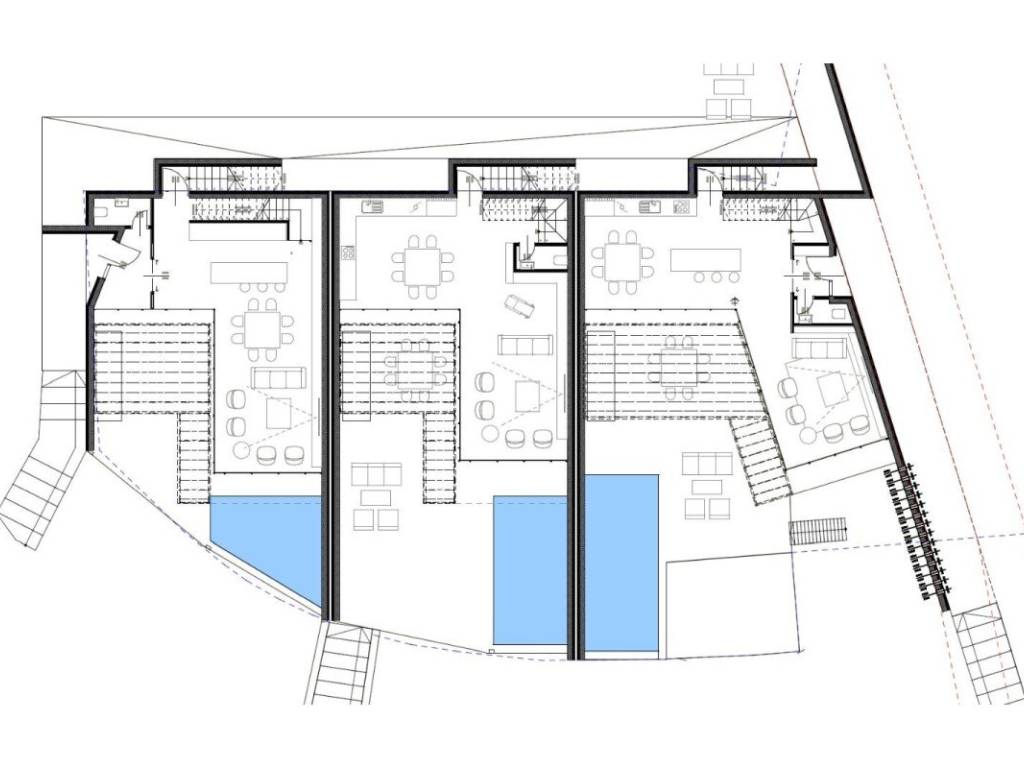
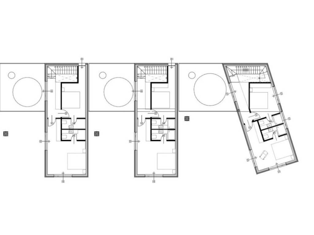
Attraktives Baugrundstück in Meeresnähe

Baugrundstück in Podgora, nur 50 Meter vom Meer entfernt, in äußerst attraktiver und gepflegter Lage. Das Grundstück befindet sich in einer Zone, die für den Bau von Luxusvillen vorgesehen ist, was ihm zusätzlichen Wert und Potenzial verleiht.



In einer ruhigen und gepflegten Umgebung gelegen, bietet das Grundstück ideale Voraussetzungen für den Bau eines Einfamilienhauses oder einer exklusiven Villa zur touristischen Vermietung. Die Nähe zum Meer, zur Promenade und zu allen notwendigen Annehmlichkeiten macht diese Immobilie zu einer einzigartigen Investitionsmöglichkeit. Das Grundstück verfügt außerdem über ein Konzeptdesign, das die Planung zukünftiger Bauvorhaben erleichtert und eine schnelle Realisierung der Investition ermöglicht.



Diese Lage, mit der nur wenige Schritte vom Grundstück entfernten Zone T, garantiert langfristigen Wert und hervorragendes Entwicklungspotenzial.

Merkmale
Vertrag
Verkauf
Art
Bauland
Preisinformationen
Preis
€ 370.000
Entdecken Sie jeden Winkel des Anwesens
+15
Zusätzliche Optionen

Inserenten kontaktieren

Oder