map icon

Zweizimmerwohnung neu, Zadar

Zadar
€ 685.000
2
90 m²
2

Notiz

Anzeige aktualisiert am: 30.04.2026
Beschreibung

This description has been translated automatically and may not be accurate

Referenz: 2043/164

Moderne Zwei-Zimmer-Wohnung in der ersten Reihe zum Meer

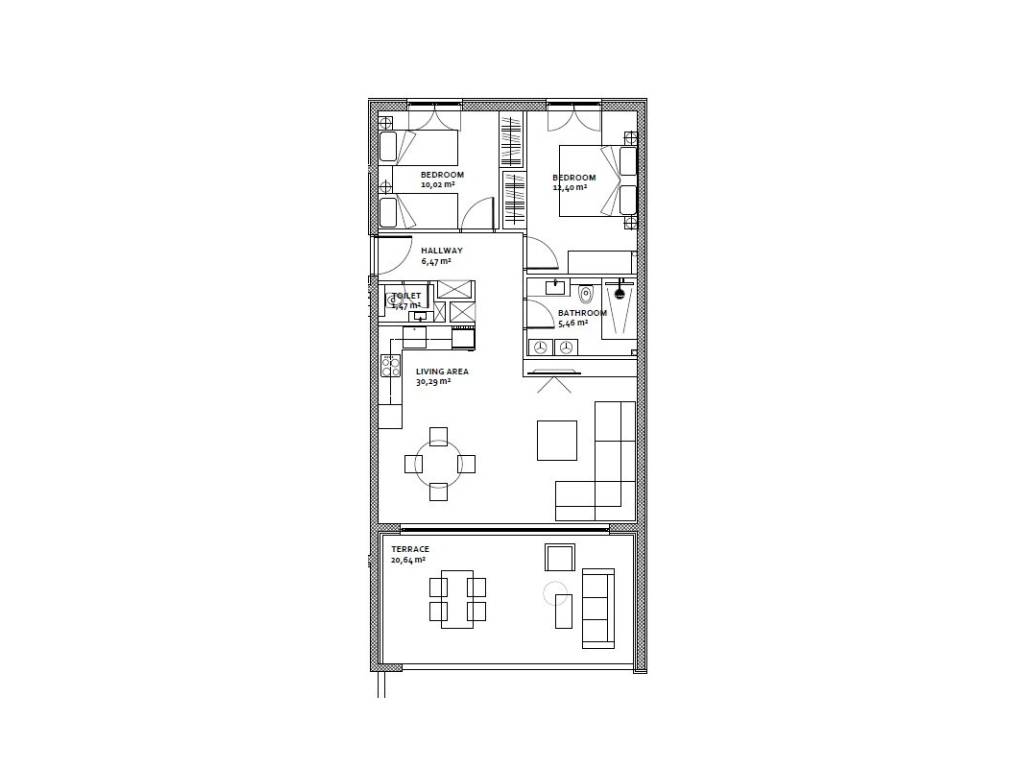
Zum Verkauf steht eine Zwei-Zimmer-Wohnung im ersten Stock eines kleinen Wohngebäudes in der ersten Reihe zum Meer. Der Zugang zur Wohnung erfolgt über das Treppenhaus des Gebäudes mit einem Aufzug.



Mit seinen 90 m2 einschließlich der Außenterrasse ist die Wohnung Nord-Süd ausgerichtet. Beim Betreten der Wohnung gelangt man in einen Flur, der sehr durchdacht die Schlafzimmer vom Rest der Wohnung trennt. Von der Südseite der Wohnung aus hat man Zugang zur Küche, zum Esszimmer und zum Wohnzimmer mit freiem Blick auf das Meer und die Inseln. Beide Zimmer teilen sich ein Badezimmer. Zur Wohnung gehört außerdem ein Gäste-WC und neben Abstellräumen auch zwei Außenstellplätze.



Die Bauqualität ist auf einem extrem hohen Niveau, mit Fußbodenheizung und Wärmepumpe im gesamten Gebäude, Sanitärkeramik von Hansgrohe und Villeroy und Boch, 268 cm hohen Schuco Stop-Salt-Tischlereiarbeiten, einbruch- und feuerfesten Eingangstüren mit Code-Eingabe, WLAN-Heizung und -Kühlung, Wasseraufbereitungsfilter.



Kontaktieren Sie uns für weitere verfügbare Wohnungen im Gebäude.

Merkmale
Art
Wohnung | Luxusimmobilienklasse
Vertrag
Verkauf
Fläche
90 m²
Zimmer
2
Badezimmer
2
Preisinformationen
Preis
€ 685.000
Preis pro m²
7.611 €/m²
Energieeffizienz
  • Zustand

    Neu / Im Bau
  • Energieausweis

    Befreit
Entdecken Sie jeden Winkel des Anwesens
+18
Zusätzliche Optionen

Inserenten kontaktieren

Oder