Zweizimmerwohnung neu, Brodarica - Višnjik, Zadar

€ 342.000
2
85 m²
1

Notiz

Anzeige aktualisiert am: 13.05.2026
Beschreibung

This description has been translated automatically and may not be accurate

Referenz: 2043/156

Moderne Zwei-Zimmer-Wohnung mit Dachterrasse

Eine moderne Zwei-Zimmer-Wohnung in einem Neubau in der Nähe von Zadar steht zum Verkauf. Das Gebäude mit insgesamt neun Wohnungen befindet sich auf einem leicht zum Meer geneigten Grundstück. Dadurch bietet fast jede Wohnung Meerblick, ohne dass andere Grundstücke stören.



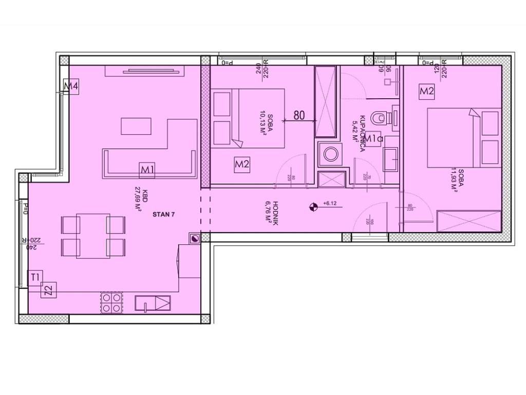
Die Wohnung S7 befindet sich im zweiten Stock des Wohngebäudes und verfügt über eine großzügige Dachterrasse und einen im Preis inbegriffenen Außenstellplatz. Die Terrasse bietet Meerblick. Die Wohnung selbst besteht aus zwei Schlafzimmern, einem Badezimmer und einem Flur, der diese Räume mit Küche, Esszimmer und Wohnzimmer verbindet.



Eine gemeinsame Treppe führt zu einer privaten, 66 m großen Dachterrasse, die mit Whirlpool und Pergola zum geselligen Beisammensein einlädt.



Kontaktieren Sie uns für weitere verfügbare Wohnungen im Gebäude.

Merkmale
Art
Wohnung
Vertrag
Verkauf
Fläche
85 m²
Zimmer
2
Badezimmer
1
Preisinformationen
Preis
€ 342.000
Preis pro m²
4.024 €/m²
Energieeffizienz
  • Zustand

    Neu / Im Bau
  • Energieausweis

    Befreit
Entdecken Sie jeden Winkel des Anwesens
+5
Zusätzliche Optionen

Inserenten kontaktieren

Oder