Wohnung 107 m², Warasdin

€ 372.890
107 m²

Notiz

Anzeige aktualisiert am: 28.04.2026
Beschreibung

This description has been translated automatically and may not be accurate

Referenz: 9299

Varaždin: Luxuriöser Neubau - 4-Zimmer-Wohnung von 106,54 m2

Zum Verkauf steht eine exklusive Wohnung in einem Neubau - höchste Qualität in ruhiger Umgebung.





Grundlegende Informationen:


• Bruttogrundfläche: 114,69 m² (NKP: 106,54 m²)


• Etage: 1. Stock in einem Wohn- und Geschäftshaus (4 Wohnungen + 1 Geschäftsraum)


• Preis: 372.890,00 € (3.500,00 €/m² NKP)


• Fertigstellung: Ende 2026


• Ausrichtung: Südosten





Die wichtigsten Vorteile des Gebäudes und der Wohnung sind die Stahlbetonkonstruktion mit 20 cm Isolierfassade für ausgezeichnete Wärme- und Schalldämmung, Energieeffizienzklasse A+ mit Fußbodenheizung mittels elektrischer Wärmepumpe, Aufzug, PVC-Fenster mit 3-Schicht-ISO-Verglasung, einbruchhemmende und feuerfeste Eingangstüren, laser-geschnittene Metall-Terrassengeländer sowie ein Außenparkplatz mit der Option, eine Garagenbox mit Außenabstellraum zu erwerben.





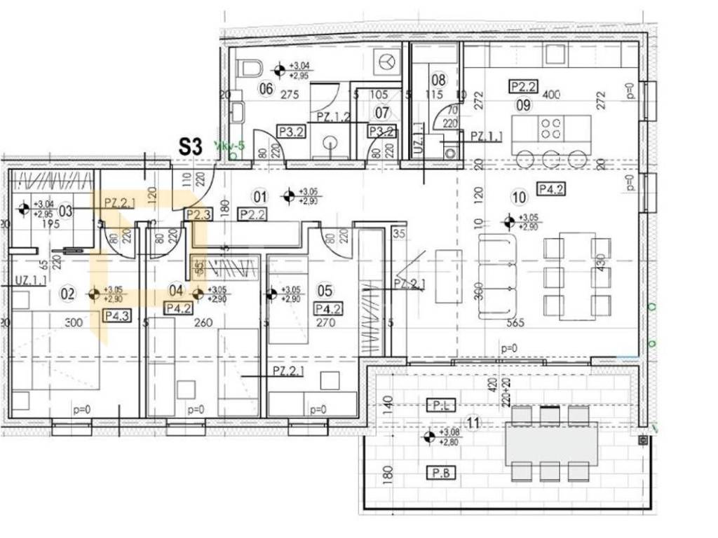
Raumaufteilung der Wohnung: Flur, Haupt-Schlafzimmer mit eigenem Bad, Kinderzimmer 1 und 2, Badezimmer, WC, Abstellraum, Speisekammer, Küche mit Esszimmer und Wohnzimmer, sowie ein Balkon und überdachte Terrasse.





Kaufbedingungen:


• Zahlungsbedingungen: 40% Anzahlung bei Vorvertrag (Restbetrag bei Erhalt der Nutzungsgenehmigung)


• Investor im VAT-System - keine 3% Immobilienumsatzsteuer


• Möglichkeit zur Vereinbarung von Änderungen an der Ausstattung des Projekts

Wenn Sie mehr wissen möchten, können Sie mit Lucia Nježić. sprechen
Merkmale
Art
Wohnung
Vertrag
Verkauf
Fläche
107 m²
Preisinformationen
Preis
€ 372.890
Preis pro m²
3.485 €/m²
Entdecken Sie jeden Winkel des Anwesens
+4
Zusätzliche Optionen

Inserenten kontaktieren

Oder