Dreizimmerwohnung neu, erste Etage, Vodice

€ 220.000
3
84 m²
1
1
Nein

Notiz

Anzeige aktualisiert am: 14.04.2026
Beschreibung

Referenz: iro-4452

Molimo zvati na mob: 00385 91 542 4774

ZA OVU NEKRETNINU KUPAC NE PLAĆA AGENCIJSKU PROVIZIJU !



- stan površine 84,49m2 - cijena 220.000€

- vanjsko parkirno mjesto VPM površine12,5m2 - cijena 8.000-10.000€ (nadoplata u dogovoru sa investitorom)


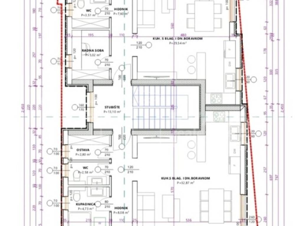
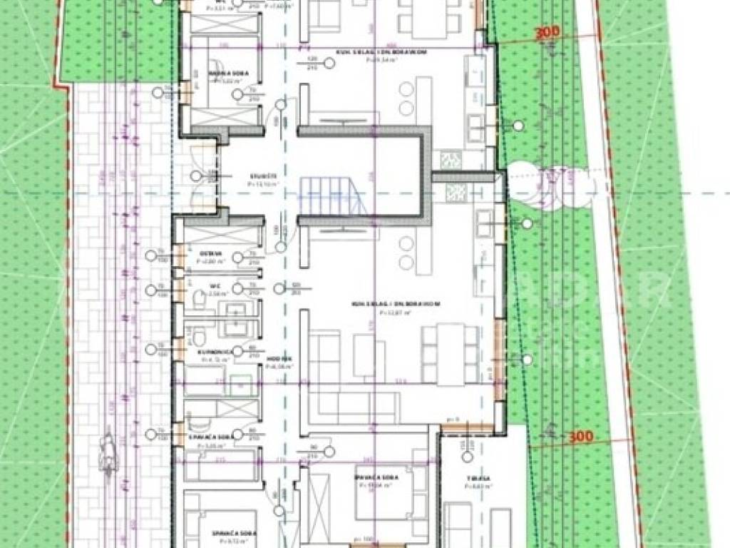
Prodaje se moderan stan S3 u Vodicama. Stan se nalazi na 1. katu zgrade na dvije etaže.
Vodice je top turistička destinacija, nalazi se 10 km od Šibenika.

Stan se nalazi 1400 m od mora i 1200 od centra.
U blizini su dućani, trgovački centri i javni prijevoz.

Prednost je mirna lokacija i dobra prometna povezanost.

Stan je novogradnja i planirani rok useljenja : početkom 2027.
Objekt se sastoji od 4 stambene jedinice.
Prodajemo svaki stan zasebno.

Površina stana S3 je 84,89 m2 + 1 vanjsko parkirno mjesto 12,5m2

Stan se sastoji od :

Hodnika
Spremišta
3 Spavaće sobe
Kupaonice
WC - a
Open-space dnevnog boravka
Blagavaonice
Kuhinje
Natkrivene terase površine 16,03 m2
1 parkirnog mjesta
Stan je južno orijentiran.

Tehničke karakteristike:

Električni podizači roleta
Troslojna stakla
Klizne stijene
Komarnici
Podno grijanje u dnevnom boravku i kupaonicama
Klima uređaj u svakoj prostorijama
Keramičke visokokvalitetne pločice u svim prostorijama


Priključci :
el.mreža / struja
gradski vodovod

Uredan vlasnički list



OSTALO RASPOLOŽIVO :

Stan S1 površine 81,29 m2 + vrt površine 51,23 m2 + vanjsko parkirno mjesto 12,50m2
Stan se nalazi u prizemlju i istočno je orijentiran.
Sastoji se od hodnika, radne spremišta, 3 spavaće sobe, kupaonice, WC-a, kuhinje, blagavaonice i open-space dnevnog boravka ,
natkrivene terase površine 10,50 m2, te vrta površine 51,23 m2.
Stanu S1 pripada 1 parkirno mjesto.

Stan S2 površine 74,63 m2 + vrt površine 121,22 m2 + vanjsko parkirno mjesto
Stan se nalazi u prizemlju i istočno je orijentiran.
Sastoji se od hodnika, radne sobe, 2 spavaće sobe, kupaonice, WC-a, kuhinje, blagavaonice i open-space dnevnog boravka,
natkrivene terase površine 8,50 m2.
Stanu S2 pripada 1 parkirno mjesto.

Stan S4 površine 74,05 m2 + vanjsko parkirno mjesto
Stan se nalazi na 1 katu i istočno je orijentiran.
Sastoji se od hodnika, 2 spavaće sobe, kupaonice, WC-a, kuhinje, blagavaonice i open-space dnevnog boravka,
natkrivene terase površine 7,44 m2.
stanu S4 pripada 1 parkirno mjesto.

Za više informacija :
mob : 00385 91 542-4774
mail : sibenik@kvadar-nekretnine.hr
Wenn Sie mehr wissen möchten, können Sie mit Sibenik Kvadar. sprechen
Merkmale
Art
Wohnung | Durchschnittliche immobilienklasse
Vertrag
Verkauf
Etage
1 etage
Stockwerke im Gebäude
2
Aufzug
Nein
Fläche
84 m²
Zimmer
3
Schlafzimmer
3
Badezimmer
1
Balkon
Nein
Terrasse
Nein
Heizung
Unabhängige heizung, heizkörper, stromversorgung
Klimaanlage
Eigenständig
Preisinformationen
Preis
€ 220.000
Preis pro m²
2.619 €/m²
Energieeffizienz

Energieverbrauch

A+

Entdecken Sie jeden Winkel des Anwesens
+12
Zusätzliche Optionen

Inserenten kontaktieren

Oder