map icon

Bauland zur Verkauf

Trogir
€ 250.000
616 m²

Notiz

Anzeige aktualisiert am: 28.02.2026
Beschreibung

This description has been translated automatically and may not be accurate

Referenz: 1512-1

Wir bieten ein Baugrundstück in Seget Donji zum Verkauf an. Die Investoren haben einen Architektenplan für eine Luxusvilla erstellt und einen Bauantrag eingereicht.
Grundstücksfläche: 616 m
Gesamtfläche des Gebäudes: 248,87 m
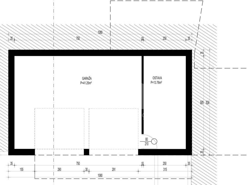
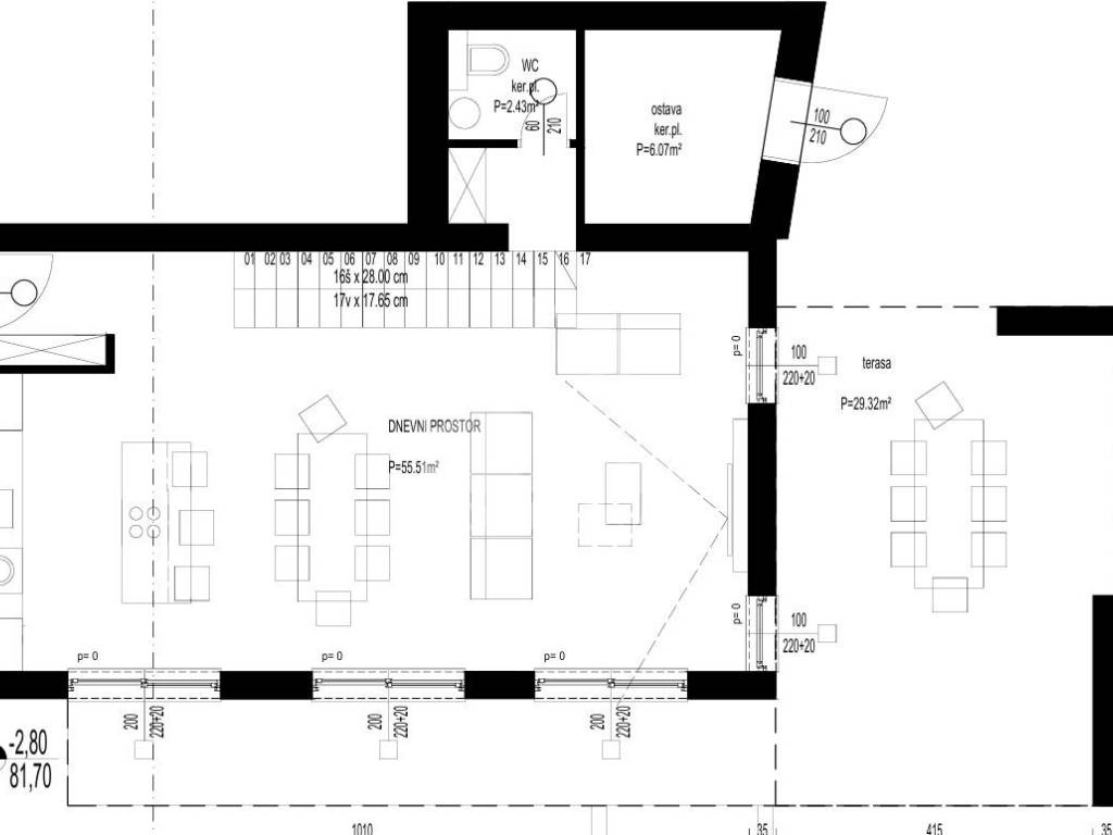
Das Wohngebäude ist für Wohnzwecke vorgesehen und besteht aus einer Wohneinheit mit Erdgeschoss und zwei Obergeschossen (Erdgeschoss + 2. Obergeschoss) und einem begehbaren Flachdach. Die Gebäudehöhe, gemessen vom niedrigsten Punkt des angrenzenden, begrünten Geländes bis zur Oberkante der Flachdachplatte, beträgt 8,80 m. Nordöstlich des Gebäudes ist ein Nebengebäude mit 6 m Nutzfläche eine Sommerküche geplant, südöstlich davon ein weiteres Nebengebäude mit 24 m Nutzfläche ein Wellnessbereich sowie ein vollständig eingelassener Swimmingpool mit 29 m Nutzfläche. Auf dem Baugrundstück befindet sich ein Nebengebäude mit einer Nutzfläche von 22 m, das zu einem Technikraum umgebaut wird.
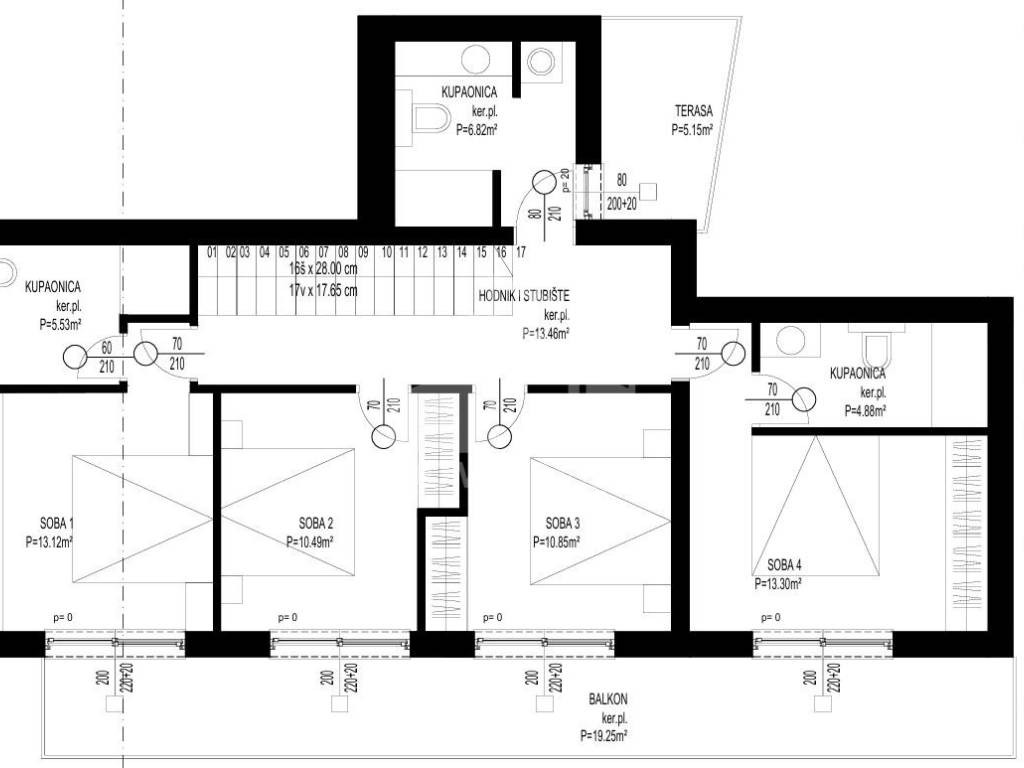
Das Gebäude besteht aus einer Wohneinheit einer Vierzimmerwohnung. Im Erdgeschoss befinden sich eine Garage und ein Abstellraum, im ersten Obergeschoss ein Wohnzimmer, ein WC und ein weiterer Abstellraum, während sich im zweiten Obergeschoss vier Schlafzimmer und drei Badezimmer befinden.
Für weitere Informationen wenden Sie sich bitte an den Makler.
Merkmale
Vertrag
Verkauf
Art
Bauland
Fläche
616 m²
Preisinformationen
Preis
€ 250.000
Preis pro m²
406 €/m²
Entdecken Sie jeden Winkel des Anwesens
+2
Zusätzliche Optionen

Inserenten kontaktieren

Oder