Einzimmerwohnung Trnava, Trnava, Zagreb

€ 183.230
1
50 m²
2

Notiz

Anzeige aktualisiert am: 03.04.2026
Beschreibung

Referenz: EUROVILLA-268387

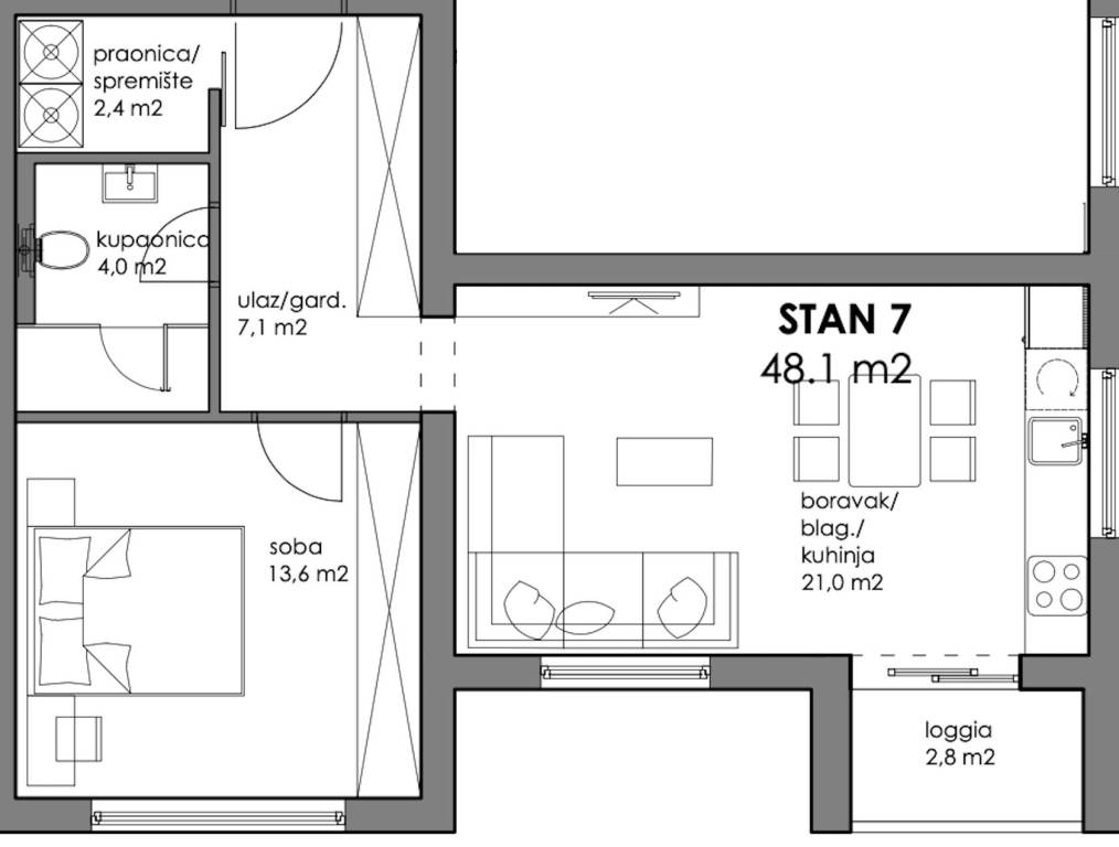
Dvosoban stan zatvorene površine 48,10 m2 smješten na 2. katu.Sastoji se od ulaza/garderobe, spremišta, spavaće sobe, kupaonice, lođe, dnevnog boravka te kuhinje s blagovaonicom.Uz stan je obavezna kupnja spremišta te parkirnog mjesta.-----Projekt suvremene stambene novogradnje s liftom izvedene u armirano-betonskoj konstrukciji s monolitnim međukatnim pločama. Pregradni zidovi izrađeni su po Knauf sustavu s ispunom od mineralne vune, a zidovi između stanova dodatno su toplinski i zvučno izolirani. Objekt je projektiran s ravnim, neprohodnim krovom u višeslojnoj izvedbi te ETICS fasadom s mineralnom vunom i stiroporom debljine 15 cm i završnim slojem silikatne žbuke.Vanjska PVC stolarija opremljena je toplinski izoliranim roletama na elektromotorni pogon, kliznim stijenama i komarnicima na svim otvorima. Unutarnja stolarija izrađena je od drva, sa zvučno izoliranim vratima, dok su ulazna vrata protuprovalna, protupožarna i zvučno izolirana.Zajednički dijelovi zgrade uključuju ulaz i stubišta obložena granitom, videonadzor, te posebno brojilo plina, vode i struje za svaki stan s mogućnošću daljinskog očitanja. U okolišu su predviđeni asfaltirani i betonski kolni prilazi, hortikulturno uređene zelene površine, dekorativna rasvjeta i odvojeni prostor za spremanje otpada.Stanovi imaju visinu prostorija od od 260 do 270 cm u dnevnim dijelovima i od 250 cm - 260 cm u kupaonicama i hodnicima. Sanitarne prostorije opremljene su kvalitetnim uređajima svjetskih proizvođača poput GROHE i TECE, s fleksibilnom hidroizolacijom, keramikom I. klase te podnim grijanjem. Predviđena je mogućnost odabira između kade ili tuš izvedbe s paravanima od kaljenog stakla. Podovi stanova obloženi su višeslojnim hrastovim parketom, dok su kuhinje, kupaonice i lođe izvedene u keramičkim pločicama.Grijanje i priprema tople vode predviđeni su putem kondenzacijskih plinskih bojlera i podnog grijanja u svim prostorijama, uz termostate u svakoj sobi. Stanovi će biti klimatizirani inverter klima uređajima (multi-split sustav). Ventilacija sanitarnih prostora riješena je niskošumnim ventilatorima, a kuhinje imaju predviđene odsisne sustave.Elektroinstalacije uključuju videoportafon u boji, LED rasvjetu, informatičku mrežu cat 6, utičnice za TV i internet u svakoj sobi te rolete na elektromotorni pogon. Sve kupaonice imaju dodatne priključke i rasvjetu prilagođenu modernom standardu.Investitor daje jamstvo na konstrukciju i hidroizolaciju od 10 godina, na ostale radove 2 godine, a na opremu i uređaje prema jamstvu proizvođača. Posebna pažnja posvećena je odabiru materijala i izvedbi, pri čemu su korišteni isključivo kvalitetni i provjereni sustavi, čime je osigurana trajnost i visoki standard stanovanja.... Više na eurovilla.hr, ID: 268387
Wenn Sie mehr wissen möchten, können Sie mit Nenad Tatarinov. sprechen
Merkmale
Art
Wohnung
Vertrag
Verkauf
Etage
2
Fläche
50 m²
Zimmer
1
Schlafzimmer
1
Oberflächendetail

Wohnung

Etage
2
Fläche
50,2 m²
Koeffizient
100%
Flächenart
Hauptsächlich
Verkaufsfläche
50,2 m²
Preisinformationen
Preis
€ 183.230
Preis pro m²
3.665 €/m²
Energieeffizienz
  • Zustand

    Neu / Im Bau
  • Energieausweis

    Befreit
Grundriss
Entdecken Sie jeden Winkel des Anwesens
+10
Zusätzliche Optionen

Inserenten kontaktieren

Oder