Dreizimmerwohnung Gornji Bukovac, Bukovac - Remete, Zagreb

€ 482.076
3
114 m²
0

Notiz

Anzeige aktualisiert am: 03.03.2026
Beschreibung

Referenz: EUROVILLA-286239

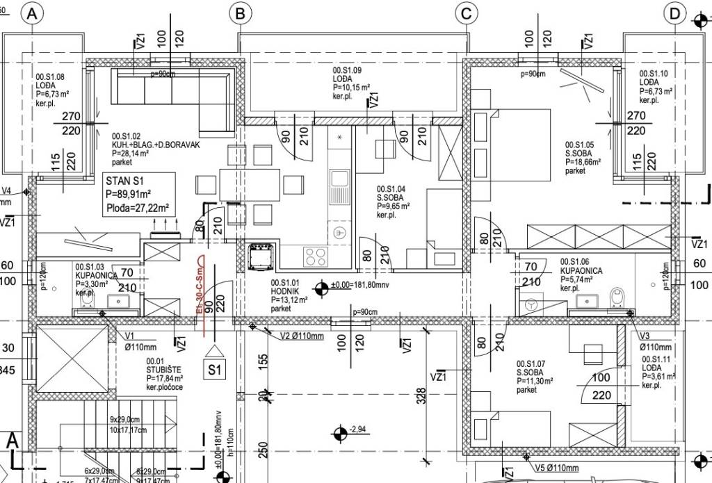
Zagreb, Maksimir, četverosoban stan u prizemlju novogradnje s ukupno 4 stana i privatnim parkirnim mjestom, smješten u mirnom okruženju prirode.Stan S1 nalazi se u prizemlju zgrade C, te se sastoji od ulaznog hodnika, prostranog dnevnog boravka s kuhinjom i blagovaonicom, tri spavaće sobe svaka s izlazom na lođu, jedne kupaonice te gostinjskog toaleta. Ukupna zatvorena površina stana iznosi 89,91 m², dok površine lođa iznose 27,22 m² (obračunski 20,42 m²).Stanu pripada vanjsko parkirno mjesto površine 12,50 m² (obračunski 3,12 m²) te spremište 2,66 m² (obračunski 1,33 m²), oba uključena u cijenu stana. Obavezna je kupnja garažnog parkirnog mjesta po cijeni od 45.000 EUR.Ukupna površina stana iznosi 114,78 m².Novogradnja je vrhunski građena:armiranobetonska konstrukcijatermoizolacijska fasada (ETICS sustav)aluminijska stolarija s troslojnim izo-staklom i aluminijskim roletamadizalice topline zrak-voda (grijanje i priprema tople vode)podno grijanjeravni krov, moderni materijali i kvalitetna završna obradalifthortikulturno uređen okolišprojekt obuhvaća četiri zgrade s ukupno 16 stanova.Odlična mikrolokacija u zelenom dijelu Maksimira osigurava mir i privatnost, a ujedno nudi dobru povezanost s gradom. U blizini se nalaze svi osnovni sadržaji za ugodan život.Useljivo ljeto 2027. godine.Za sve dodatne informacije stojimo Vam na raspolaganju.... Više na eurovilla.hr, ID: 286239
Wenn Sie mehr wissen möchten, können Sie mit Dominik Jeftić. sprechen
Merkmale
Art
Wohnung
Vertrag
Verkauf
Etage
Erdgeschoss
Fläche
114 m²
Zimmer
3
Schlafzimmer
3
Oberflächendetail

Wohnung

Etage
Erdgeschoss
Fläche
114,8 m²
Koeffizient
100%
Flächenart
Hauptsächlich
Verkaufsfläche
114,8 m²
Preisinformationen
Preis
€ 482.076
Preis pro m²
4.229 €/m²
Grundriss
Entdecken Sie jeden Winkel des Anwesens
+6
Zusätzliche Optionen

Inserenten kontaktieren

Oder