map icon

Einfamilienhaus Privlaka, Privlaka

PrivlakaPrivlaka
€ 400.000
3
110 m²
Terrasse

Notiz

Anzeige aktualisiert am: 03.03.2026
Beschreibung

Referenz: EUROVILLA-303080

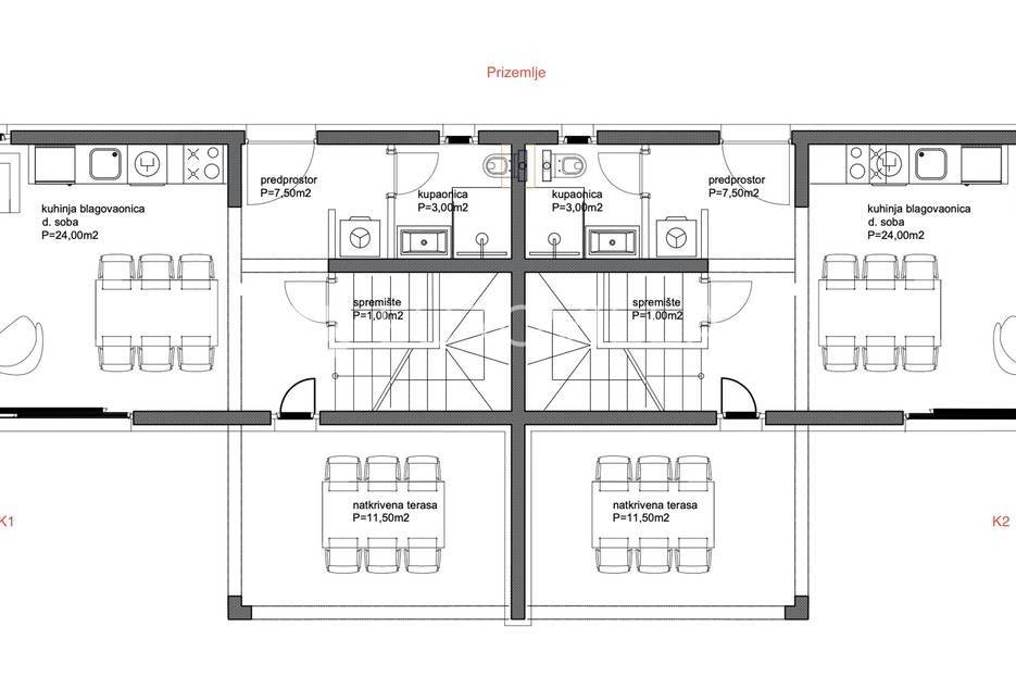
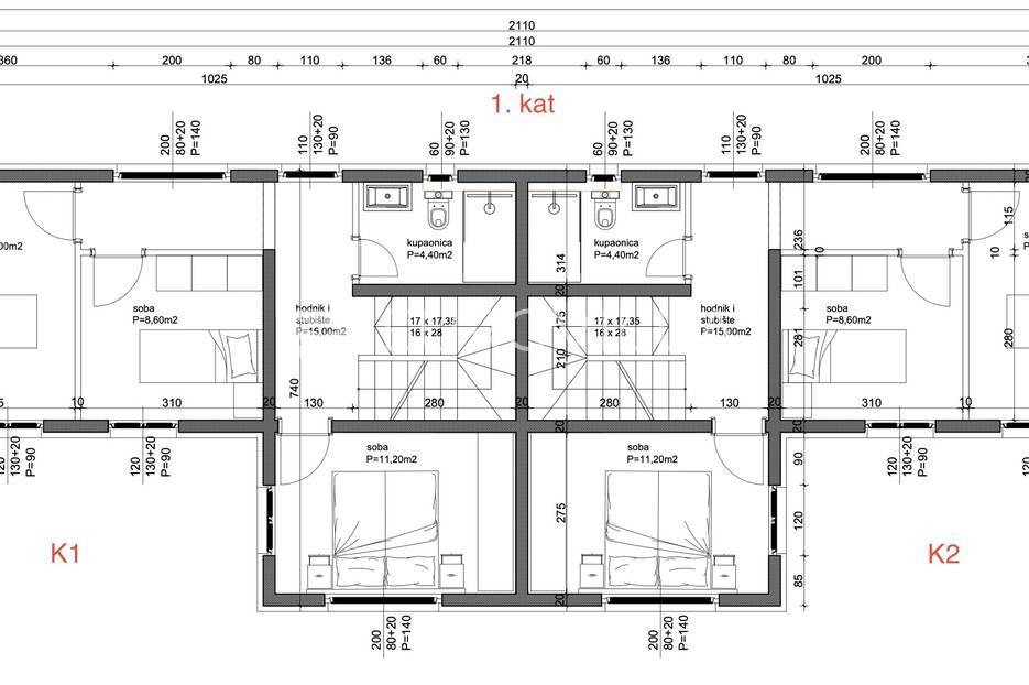
Moderne kuće u nizu s bazenom i jacuzzijem na krovnoj terasi i hortikulturalno uređenim vrtom u 2.redu do mora, na svega 15min vožnje do Zadra. 3 četverosobne kuće cca 110m2 i 2 trosobne kuće cca 95m2.Kuća 1 - četverosobna kuća cca 110m2 sastoji se od prizemlja(kuhinja s blagovaonicom i dnevnim boravkom, kupaonica, toalet, ostava, hodnik i natkrivena terasa), 1.kata(tri spavaće sobe, kupaonica), krovne terase s jacuzzijem, bazena cca 32m2, vrtom i pripadajućim ograđenim poljoprivrednim dijelom cca 150m2. Kupac ima mogućnost postavljanja mobilne kućice, dječjeg igrališta, komina, vrta ili nečeg drugog.Visoko kvalitetna oprema - PVC stolarija, termo-izo fasada, rashladne klima jedinice u svim sobama, troslojno staklo, priprema za videonadzor, hortikulturalno uređen vrt i predio oko bazena, energetski razred "A"Izuzetna lokacija, 2.red do mora, 70m od mora. Svaka kuća s pogledom na more i prekrasne zalaske sunca, u neposrednoj blizini svih za život bitnih sadržaja. Čisto i bistro more te plitke pješčane uvale i blaga mediteranska klima koja ljeta čini toplima čine ju idealnom za obiteljski život i turizam.Početak gradnje se očekuje 11/2022, a planirani završetak radova početkom 2024. godine.Prikazana cijena je cijena s PDV-om.Ostale informacije na upit.... Više na eurovilla.hr, ID: 303080
Wenn Sie mehr wissen möchten, können Sie mit Doris Hromin. sprechen
Merkmale
Art
Einfamilienhaus
Vertrag
Verkauf
Etage
Erdgeschoss
Fläche
110 m²
Zimmer
3
Schlafzimmer
3
Terrasse
Ja
Oberflächendetail

Wohnung

Etage
Erdgeschoss
Fläche
110,0 m²
Koeffizient
100%
Flächenart
Hauptsächlich
Verkaufsfläche
110,0 m²
Preisinformationen
Preis
€ 400.000
Preis pro m²
3.636 €/m²
Energieeffizienz
  • Zustand

    Neu / Im Bau
  • Energieausweis

    Befreit
Entdecken Sie jeden Winkel des Anwesens
+4
Zusätzliche Optionen

Inserenten kontaktieren

Oder