Zweizimmerwohnung Andrije Kačića Miošića, Velika Gorica

€ 277.849
2
82 m²
2
Balkon

Notiz

Anzeige aktualisiert am: 03.03.2026
Beschreibung

Referenz: EUROVILLA-328721

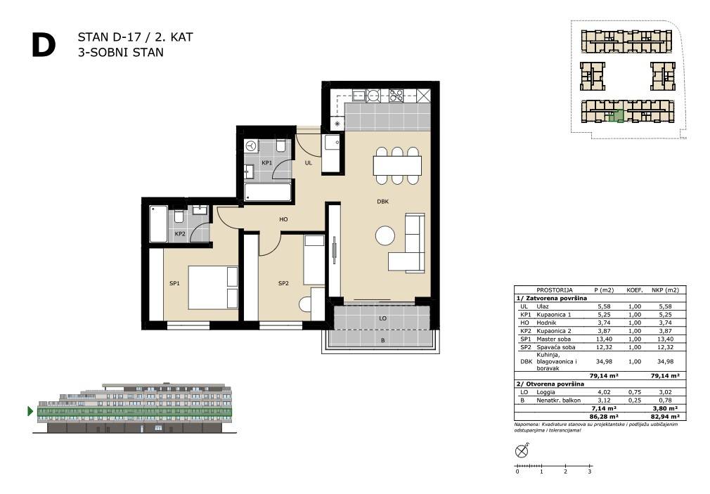
Trosoban stan na 2. katu stambene zgrade zatvorene površine 79,14 m2 s loggiom 4,02 m2 (3,02) nenatkrivenim balkonom 3,12 m2 (0,78), ukupne neto površine 82,94 m2.Stan D-17 sastoji se od ulaznog hodnika, kuhinje s blagovaonicom i dnevnim boravkom, predsoblja, tri spavaće sobe, dvije kupaonice, loggie i nenatkrivenog balkona i gospodarstva.Obvezna kupnja spremišta, vanjskog ili garažnog parkirnog mjesta.Stan se nalazi u višestambenoj zgradi unutar kompleksa koji će se sastojati od 165 stambenih jedinica.Green Side Residence nalazi se u Velikoj Gorici, samo 10 kilometara od Zagreba i tek 3 kilometra od Međunarodne zračne luke Zagreb, lokacija nudi izvrsnu prometnu povezanost s glavnim gradom i cijelom Hrvatskom, zahvaljujući neposrednom pristupu dvjema autocestama.Okružen zelenilom, a opet u blizini svih gradskih sadržaja, ovaj projekt predstavlja idealan izbor za miran, ali povezan život.Useljenje 11/2027. godine.Za sve ostale informacije stojimo na raspolaganju.... Više na eurovilla.hr, ID: 328721
Wenn Sie mehr wissen möchten, können Sie mit Ines Bando. sprechen
Merkmale
Art
Wohnung
Vertrag
Verkauf
Etage
2
Fläche
82 m²
Zimmer
2
Schlafzimmer
2
Balkon
Ja
Oberflächendetail

Wohnung

Etage
2
Fläche
82,9 m²
Koeffizient
100%
Flächenart
Hauptsächlich
Verkaufsfläche
82,9 m²
Preisinformationen
Preis
€ 277.849
Preis pro m²
3.388 €/m²
Energieeffizienz
  • Zustand

    Neu / Im Bau
  • Energieausweis

    Befreit
Grundriss
Entdecken Sie jeden Winkel des Anwesens
+2
Zusätzliche Optionen

Inserenten kontaktieren

Oder