Zweizimmerwohnung Centar, Velika Gorica

€ 196.894
2
57 m²
0

Notiz

Anzeige aktualisiert am: 03.03.2026
Beschreibung

Referenz: EUROVILLA-341189

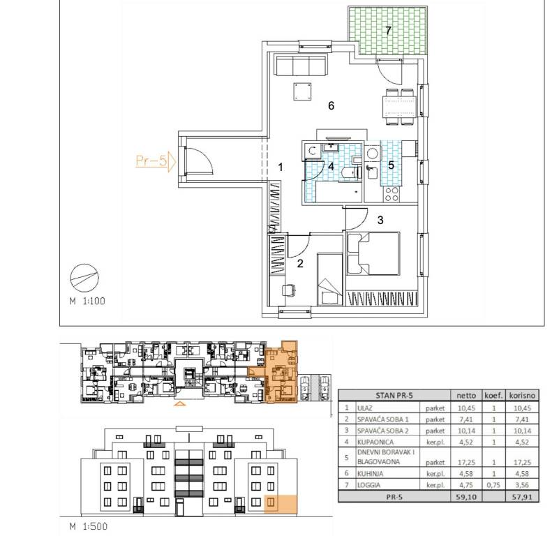
Trosoban stan površine 57,91 m2 smješten u prizemlju.Stan PR-5 sastoji se od ulaza, 2 spavaće sobe, kupaonice, dnevnog boravka, kuhinje s blagovaonicom te loggije.Projekt moderne stambene gradnje koji obuhvaća 22 stambene jedinice raspoređene u funkcionalno organiziranoj građevini, uz 36 garažnih mjesta u podzemnoj etaži i dodatnih 8 vanjskih parkirnih mjesta na razini terena. Kolni i pješački pristup omogućen je izravno s javne prometne površine na južnoj strani parcele, a promet u mirovanju riješen je u skladu s važećim urbanističkim planom, čime je osigurana jednostavna dostupnost i kvalitetna organizacija prostora.Uz kupnju stana obavezna je kupnja garažnog mjesta, kao i garažnog parkirnog mjesta ili vanjskog parkirnog mjesta uz navedeno garažno mjesto.Građevina je projektirana kao armiranobetonska konstrukcija, s nosivim zidovima i gredama međusobno povezanim u cjelovit sustav te punim armiranobetonskim stropnim i ravnim krovnim pločama. Vertikalne elemente čine armiranobetonski zidovi debljine 20 cm kroz sve etaže, dok horizontalni sustav čine armiranobetonske ploče iste debljine. Takav konstruktivni koncept osigurava stabilnost, trajnost i sigurnost objekta.Pročelje će biti izvedeno u ETICS sustavu s toplinskom izolacijom od EPS-a i mineralne vune debljine 15 cm, ovisno o poziciji i zahtjevima zaštite od požara, uz završnu obradu u boji i teksturi prema projektu. Vanjska stolarija predviđena je kao PVC, uz električno upravljane rolete, čime se dodatno doprinosi energetskoj učinkovitosti i komforu stanovanja. Ravni krov projektiran je kao neprohodan, s tehničkim slojevima definiranim elaboratom fizike zgrade.Unutarnji prostori osmišljeni su s naglaskom na funkcionalnost i dugotrajnost materijala. Sustav grijanja izveden je kao plinsko etažno podno grijanje, koje omogućuje ravnomjernu raspodjelu topline i optimalnu iskoristivost prostora bez radijatora. Za hlađenje su predviđeni klima uređaji proizvođača Bosch.Podovi se izvode kao plivajući sustav s toplinskom i zvučnom izolacijom te cementnim estrihom. U dnevnim boravcima, blagovaonicama, hodnicima i spavaćim sobama predviđen je troslojni hrastov parket, dok su u sanitarnim prostorima, kuhinjama i na vanjskim površinama planirane keramičke pločice. Kupcima će biti ponuđene tri varijante keramike u vrijednosti do 35 EUR/m², a sav dodatni odabir i eventualne izmjene moguće su putem tvrtke F.I.C. d.o.o., koja osigurava salonski odabir materijala i ugradnju.Unutarnja sobna vrata predviđena su od proizvođača RV Križevci, dok su ulazna vrata u stanove protuprovalna vrata proizvođača Kolnoa, opremljena sustavom zaključavanja Mul-T-Lock, čime je osigurana viša razina sigurnosti.Ovaj projekt u Velikoj Gorici predstavlja priliku za kupnju stana u novogradnji koja objedinjuje provjerenu konstrukcijsku kvalitetu, suvremene sustave grijanja i hlađenja te mogućnost prilagodbe završnih materijala prema željama kupca, u urbanoj zoni s dobrom prometnom povezanošću i razvijenom infrastrukturom.Useljenje: 05/2027... Više na eurovilla.hr, ID: 341189
Wenn Sie mehr wissen möchten, können Sie mit Filip Vuković. sprechen
Merkmale
Art
Wohnung
Vertrag
Verkauf
Etage
Erdgeschoss
Fläche
57 m²
Zimmer
2
Schlafzimmer
2
Oberflächendetail

Wohnung

Etage
Erdgeschoss
Fläche
57,9 m²
Koeffizient
100%
Flächenart
Hauptsächlich
Verkaufsfläche
57,9 m²
Preisinformationen
Preis
€ 196.894
Preis pro m²
3.454 €/m²
Energieeffizienz
  • Zustand

    Neu / Im Bau
  • Energieausweis

    Befreit
Grundriss
Entdecken Sie jeden Winkel des Anwesens
+7
Zusätzliche Optionen

Inserenten kontaktieren

Oder