Bauland zur Verkauf

€ 135.000
825 m²

Notiz

Anzeige aktualisiert am: 05.03.2026
Beschreibung

This description has been translated automatically and may not be accurate

Referenz: ID6156

Pula Umgebung, Baugrundstück 825 m² mit Projekt und Pool

In einem ruhigen und gepflegten Teil von Šišan, nur etwa 2 km vom Meer und naturbelassenen Stränden entfernt, steht dieses 825 m² große Baugrundstück in regelmäßiger, rechteckiger Form zum Verkauf – ideal für ein Familienhaus, ein Ferienhaus oder eine Villa mit Pool. Ein großer Vorteil: Das Hauptprojekt befindet sich bereits in Ausarbeitung und umfasst ein modernes, zweigeschossiges Haus mit Swimmingpool. Damit erhält der zukünftige Eigentümer eine hervorragende Ausgangslage für eine schnelle und unkomplizierte Umsetzung des Baus.

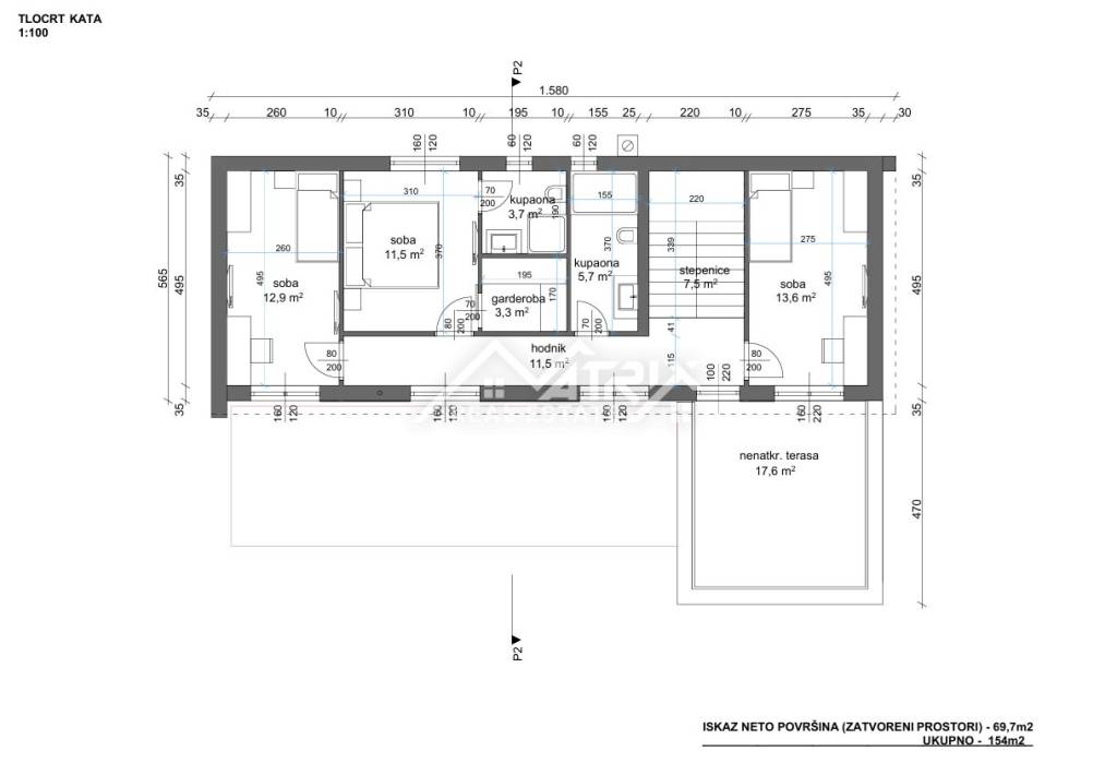
Geplant ist ein Haus auf zwei Ebenen mit Pool. Im Erdgeschoss ist ein offener Wohnbereich mit Küche, Ess- und Wohnzimmer vorgesehen, dazu Abstellraum, Badezimmer sowie ein Schlafzimmer mit separater Ankleide. Die Nettofläche des Erdgeschosses beträgt 84 m². Besonderen Mehrwert bietet die überdachte Terrasse von 34 m², die den Innenbereich harmonisch mit Garten- und Poolzone verbindet. Im Obergeschoss sind drei Schlafzimmer, zwei Badezimmer und eine separate Ankleide geplant, mit einer Nettofläche von 70 m², zusätzlich eine nicht überdachte Terrasse von 17,6 m². Auf dem Grundstück sind außerdem zwei Stellplätze vorgesehen.

Die Infrastruktur ist in unmittelbarer Nähe vorhanden (Strom und Wasser), die Zufahrt ist gesichert. Die Lage bietet angenehme Ruhe und Privatsphäre sowie eine sehr gute Anbindung an Pula und Medulin – ideal sowohl zur Eigennutzung als auch als Investition für touristische Vermietung. Wer ein Baugrundstück im Raum Pula mit Projekt für ein Haus mit Pool sucht, findet hier eine seltene und äußerst praktische Gelegenheit.

ID CODE: ID6156

Ivana Mohorović
Suradnik u procesu obuke
Mob: +385 95 370 44 46
Tel: +385 52 417 779
E-mail: ivana@matrixrealestate.hr
https://matrixrealestate.hr/

Matrix Real Estate
Voditelj ureda
Mob: +385 52 417 779
Tel: +385 52 417 779
E-mail: info@matrixrealestate.hr
https://matrixrealestate.hr/
Merkmale
Vertrag
Verkauf
Art
Bauland
Fläche
825 m²
Preisinformationen
Preis
€ 135.000
Preis pro m²
164 €/m²
Grundriss
Entdecken Sie jeden Winkel des Anwesens
+4
Zusätzliche Optionen

Inserenten kontaktieren

Oder