Zweizimmerwohnung Cres, Cres

€ 430.000
2
83 m²
1

Notiz

Anzeige aktualisiert am: 03.03.2026
Beschreibung

Referenz: EUROVILLA-797443

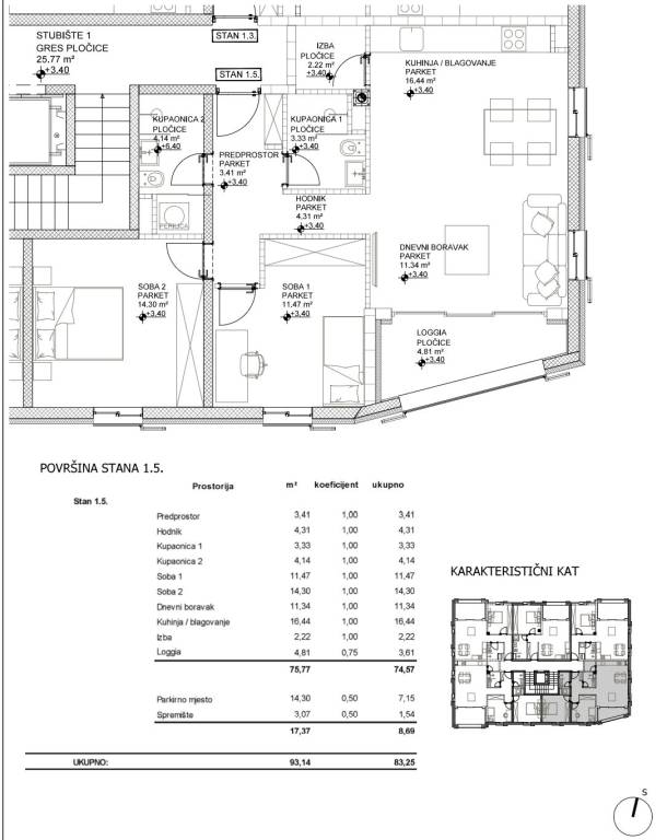
Grad Cres, Centar, trosoban stan na odličnoj lokaciji, NOVOGRADNJA.U samom centru grada Cresa, na svega 100 metara od mora i u neposrednoj blizini povijesne gradske jezgre, smješten je ovaj prostran i moderno organiziran trosoban stan, unutar suvremene poslovno-stambene zgrade visoke kvalitete gradnje.Stan se nalazi na prvom katu zgrade te ima ukupnu obračunsku površinu 83,25 m², dok stvarna površina stana s pripadajućim dijelovima iznosi 93,14 m². Sastoji se od ulaznog prostora i hodnika, dvije kupaonice, dvije spavaće sobe, prostranog dnevnog boravka povezanog s kuhinjom i blagovaonicom, dodatne ostave te loggie, koja osigurava ugodan vanjski prostor i dodatni komfor stanovanja.Stanu pripada i spremište u suterenu te parkirno mjesto u podzemnoj garaži, što predstavlja značajnu prednost u centru grada.Stan je projektiran s naglaskom na funkcionalnost i udobnost, a opremljen je kvalitetnim materijalima i modernim sanitarijama, podnim grijanjem, PVC stolarijom te griljama za zaštitu od sunca.Zgrada se prostire kroz pet etaža i obuhvaća podzemnu garažu u suterenu, tri poslovna prostora u prizemlju te ukupno 14 stanova raspoređenih na tri gornje etaže. Nalazi se na iznimnoj lokaciji u samom srcu Cresa, okružena trgovinama, restoranima, kafićima, kulturnim i zabavnim sadržajima, uz odličnu dostupnost javnog prijevoza.Ova nekretnina predstavlja izvrsnu priliku za stanovanje, ali i kao investicija za turistički ili dugoročni najam, zahvaljujući svojoj lokaciji, kvaliteti gradnje i funkcionalnom rasporedu.Za dodatne informacije slobodno nas kontaktirajte!... Više na eurovilla.hr, ID: 797443
Wenn Sie mehr wissen möchten, können Sie mit Borna Radović. sprechen
Merkmale
Art
Wohnung
Vertrag
Verkauf
Etage
1
Fläche
83 m²
Zimmer
2
Schlafzimmer
2
Oberflächendetail

Wohnung

Etage
1
Fläche
83,0 m²
Koeffizient
100%
Flächenart
Hauptsächlich
Verkaufsfläche
83,0 m²
Preisinformationen
Preis
€ 430.000
Preis pro m²
5.181 €/m²
Energieeffizienz
  • Zustand

    Neu / Im Bau
  • Energieausweis

    Befreit
Grundriss
Entdecken Sie jeden Winkel des Anwesens
+6
Zusätzliche Optionen

Inserenten kontaktieren

Oder