Dreizimmerwohnung Srebrnjak, Mašićeva - Dobri dol, Zagreb

€ 790.000
3
126 m²
0
Balkon
Terrasse

Notiz

Anzeige aktualisiert am: 03.03.2026
Beschreibung

Referenz: EUROVILLA-851524

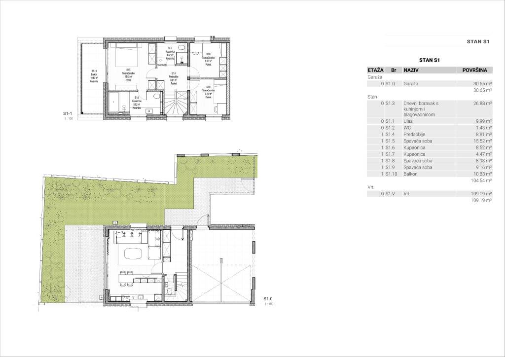
Srebrnjak, naselje zatvorenog privatnog karaktera koje se sastoji od 4 zgrade. Vrhunski je locirano na gornjem, ravnom dijelu ulice Srebrnjak, preko puta bolnice Srebrnjak i trgovine Prehrana. U blizini je autobusna stanica s linijom koja vozi na Kvaternikov trg i Kaptol.Stan S1 - dvoetažni četverosobni stan podne površine 104,54 m2, zatvorene površine 93,71 m2, balkon 10,83 m2, vrt 109,19 m2, garaža 30,65 m2, balkonom Ukupno obračunski netto korisna površina 126,72 m2. Sastoji se od dnevnog dijela u prizemlju, predsoblje, gostinjski wc, dnevni boravak, kuhinja, blagovaonica, terasa i vrt, spavaćeg dijela na prvom katu, tri spavaće sobe, dvije kupaone, od kojih je jedna povezana direktno s master sobom i balkon.Stan S1 karakterizira zaseban ulaz iz ograđenog vrta, dvostruka spojena garaža s direktnim pristupom vlastitom vrtu i ulazu, te je stan koncipiran kao manja kuća unutar većeg objekta.Oprema i izdvojene karakteristike stana:- Koncept stana kao manja kuća u većem objektu- Dnevni dio u prizemlju, spavaći dio na katu- Obje etaže imaju terasu, prizemna etaža ima i vrt spojen s prilazom te dvostrukim garažnim mjestom- Objekt projektiran da zadovolji energetski razred A- Konstrukcija armiranobetonska- Vanjska stolarija Schüco najvišeg razreda, uz lamelirana stakla na stijenama radi dodatne termičke i zvučne izolacije- Elektro pokretane žaluzine upravljanje i putem mobilnih uređaja- Stropno i podno grijanje prostora, radi maksimalne ugode boravka u prostoru, upravljanje i putem mobilnih uređaja- Daikin dizalice topline- Podovi kombinacija vrhunskog hrastovog parketa i pločica 1. klaseVrlo dobro prometno povezano autobusnim i tramvajskim linijama koja je u blizini sa svim dijelovima grada. U blizini lokacije je gradski vrtić i osnovna škola, tržnica Kvatrić, dom zdravlja, policijska postaja, pošta, ljekarne, trgovine i sl.Za sve ostale informacije stojimo na raspolaganju.... Više na eurovilla.hr, ID: 851524
Wenn Sie mehr wissen möchten, können Sie mit Renato Tripalo. sprechen
Merkmale
Art
Wohnung
Vertrag
Verkauf
Etage
Erdgeschoss
Fläche
126 m²
Zimmer
3
Schlafzimmer
3
Balkon
Ja
Terrasse
Ja
Oberflächendetail

Wohnung

Etage
Erdgeschoss
Fläche
126,7 m²
Koeffizient
100%
Flächenart
Hauptsächlich
Verkaufsfläche
126,7 m²
Preisinformationen
Preis
€ 790.000
Preis pro m²
6.270 €/m²
Grundriss
Entdecken Sie jeden Winkel des Anwesens
+7
Zusätzliche Optionen

Inserenten kontaktieren

Oder