Dreizimmerwohnung Betina, Tisno, Tisno

€ 362.922
3
86 m²
2
1
Nein
Terrasse

Notiz

Anzeige aktualisiert am: 18.03.2026
Beschreibung

This description has been translated automatically and may not be accurate

Referenz: AB-1296

Immobilien Betina, NEUBAU, Wohnung S3 im ersten Stock in Meeresnähe

NEUBAU
HERVORRAGENDE LAGE

Wohnung im ersten Stock in Betina in Meeresnähe zu verkaufen.
Die Wohnung befindet sich in einem Wohngebäude mit insgesamt 7 Wohneinheiten.

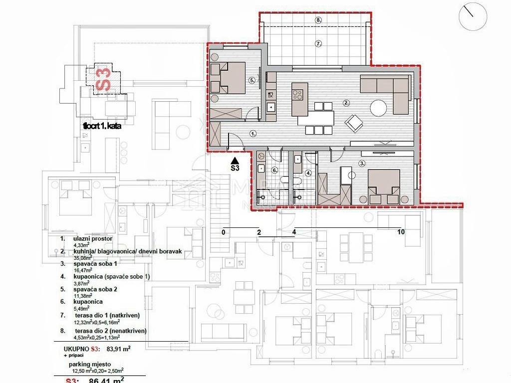
WOHNUNG S3
Sie besteht aus Eingangsbereich, Esszimmer, Küche, Wohnzimmer, zwei Schlafzimmern, zwei Badezimmern sowie überdachten und offenen Terrassen.

Parkplatz: 1 Stellplatz
Entfernung zum Meer: 115 m

Die Anzeige verwendet Visualisierungen. Der tatsächliche Zustand kann von der Darstellung im 3D-Bild abweichen.

ID CODE: AB-1296

Mirakul Adria
Mob: +385 91 150 5210 Philipp Drescher (DE, EN, HR)
Tel: +385 22 438 023 (DE, EN, HU, HR)
E-mail: mirakul@mirakul-adria.hr
http://mirakul-adria.hr
Merkmale
Art
Wohnung
Vertrag
Verkauf
Etage
1 etage
Aufzug
Nein
Fläche
86 m²
Zimmer
3
Schlafzimmer
2
Badezimmer
2
Balkon
Nein
Terrasse
Ja
Garage, parkplätze (auto)
1 parkplatz(e)
Klimaanlage
Eigenständig, kalt / warm
Preisinformationen
Preis
€ 362.922
Preis pro m²
4.220 €/m²
Energieeffizienz
  • Klimatisierung

    Eigenständig, kalt / warm
  • Energieausweis

    Nicht klassifizierbar
Entdecken Sie jeden Winkel des Anwesens
+3
Zusätzliche Optionen

Inserenten kontaktieren

Oder