Bauland zur Verkauf

€ 130.000
794 m²

Notiz

Anzeige aktualisiert am: 06.03.2026
Beschreibung

This description has been translated automatically and may not be accurate

Referenz: R-337-A

Bauland Vrbnik, Biskupija, 794m2

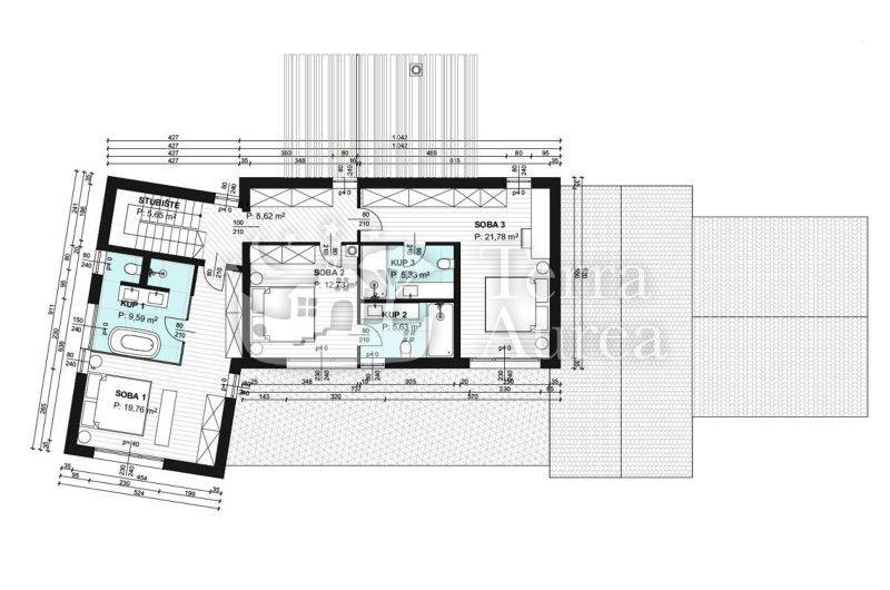
Zum Verkauf steht ein Baugrundstück von 794 m2 mit Projektdokumentation für den Bau einer städtischen mediterranen Villa von 322,13 m2 mit Swimmingpool, Wellnesscenter, Garage und Garten mit mediterranen Pflanzen. Ruhige Lage, 4000 m vom Meer und dem Zentrum von Vrbnik entfernt.

ID CODE: R-337-A

Ljiljana Jelušić
Mob: +38551222353
Tel: +38551222353
E-mail: info@terraaurea.hr
www.terraaurea.hr
Merkmale
Vertrag
Verkauf
Art
Bauland
Fläche
794 m²
Preisinformationen
Preis
€ 130.000
Preis pro m²
164 €/m²
Entdecken Sie jeden Winkel des Anwesens
+9
Zusätzliche Optionen

Inserenten kontaktieren

Oder