Bauland zur Verkauf

€ 130.000
760 m²

Notiz

Anzeige aktualisiert am: 01.05.2026
Beschreibung

Referenz: z396

Asfaltiran prilaz, Projektna dokumentacija, U mirnom djelu otoka, Vlasnički list.

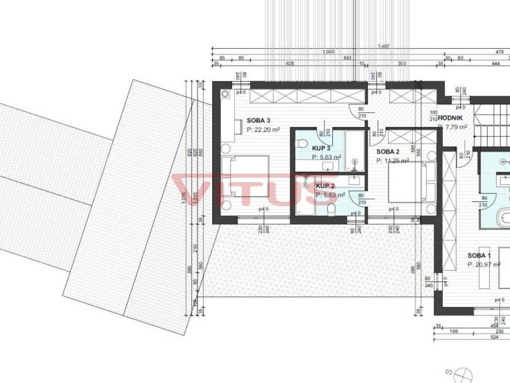
Atraktivno građevinsko zemljište površine 760 m2, s projektnom dokumentacijom za izgradnju urbane mediteranske vile površine 328,83 m2, s bazenom, garažom i okućnicom, nalazi se u okolici Vrbnika. U mirnoj, zelenoj oazi, udaljena od mora i centra Vrbnika 4000 m!
Merkmale
Vertrag
Verkauf
Art
Bauland
Fläche
760 m²
Preisinformationen
Preis
€ 130.000
Preis pro m²
171 €/m²
Entdecken Sie jeden Winkel des Anwesens
+17
Zusätzliche Optionen

Inserenten kontaktieren

Oder