Zweizimmerwohnung bana Josipa Jelačića, Samobor

€ 173.909
2
47 m²
0
Balkon

Notiz

Anzeige aktualisiert am: 16.03.2026
Beschreibung

Referenz: EUROVILLA-872431

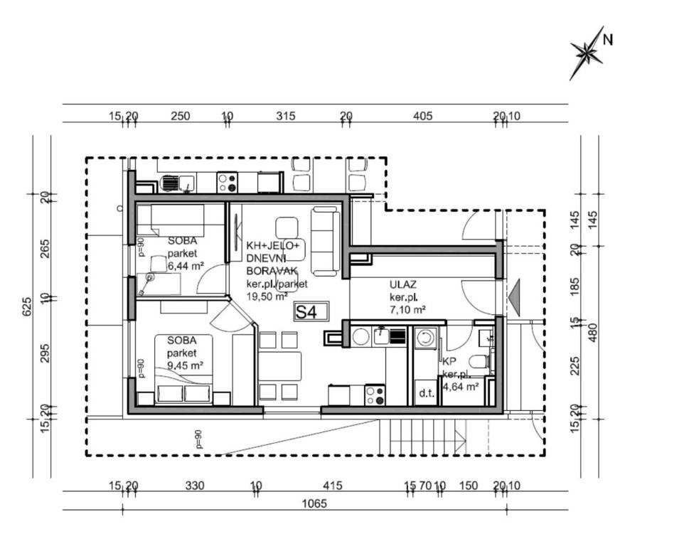
Ovaj projekt predstavlja spoj estetike i funkcionalnosti, pružajući Vam ne samo dom, već i način života koji je u potpunosti prilagođen suvremenim potrebama. Obuhvaća 9 stambenih jedinica čije površine variraju od 45 m2 do 100 m2, svaka s osiguranim garažnim i vanjskim parkirnim mjestima te spremištima. Objekt se prostire na 3 etaže uz podzemnu razinu gdje se nalaze garažna parkirna mjesta i spremišta.STAN S4 - 47,13m2 - sastoji se od ulaznog dijela, kupaonice s tuš kadom, dvije spavaće sobe, open space kuhinje s blagovaonom i dnevnim boravkom.Stanu dodatno pripada vanjsko i garažno parkirno mjesto i spremište te se dodatno naplaćuje.S obzirom na izraženu estetiku, elegantnu PVC stolariju renomiranog proizvođača Marlex d.o.o. te protuprovalna/protupožarna vrata razine EI30 od strane Kolnoa d.o.o., vaš dom će biti oaza sigurnosti i udobnosti. Podovi su obloženi parketom 1. klase i keramičkim pločicama vrhunskog proizvođača, dok su zidovi sanitarija obloženi keramikom od strane talijanskog proizvođača, stvarajući estetski dojam koji će Vas oduševiti.Ulaskom u ovaj kompleks, ulazite u suvremeni svijet tehnologije i praktičnosti. Svi stanovi su opremljeni dizalicama topline za dodatnu energetsku efikasnost. Optika u zgradi omogućava brzu i stabilnu internet vezu. Sve ovo čini savršeni dom za suvremenu obitelj.Smješten na samom ulazu u Samobor na mirnoj lokaciji u Ulici bana Josipa Jelačića, samo pet minuta od centra grada Samobora i pet minuta od izlaza Bobovica.Ostale informacije na upit.... Više na eurovilla.hr, ID: 872431
Wenn Sie mehr wissen möchten, können Sie mit Ante Gregović. sprechen
Merkmale
Art
Wohnung
Vertrag
Verkauf
Etage
Erdgeschoss
Fläche
47 m²
Zimmer
2
Schlafzimmer
2
Balkon
Ja
Oberflächendetail

Wohnung

Etage
Erdgeschoss
Fläche
47,1 m²
Koeffizient
100%
Flächenart
Hauptsächlich
Verkaufsfläche
47,1 m²
Preisinformationen
Preis
€ 173.909
Preis pro m²
3.700 €/m²
Energieeffizienz
  • Zustand

    Neu / Im Bau
  • Energieausweis

    Befreit
Grundriss
Entdecken Sie jeden Winkel des Anwesens
+2
Zusätzliche Optionen

Inserenten kontaktieren

Oder