Bauland zur Verkauf

€ 250.000
2.185 m²

Notiz

Anzeige aktualisiert am: 19.03.2026
Beschreibung

This description has been translated automatically and may not be accurate

Referenz: 7573

BARBAN, GELEGENHEIT, ZWEI BAUGRUNDSTÜCKE MIT BAUGENEHMIGUNG

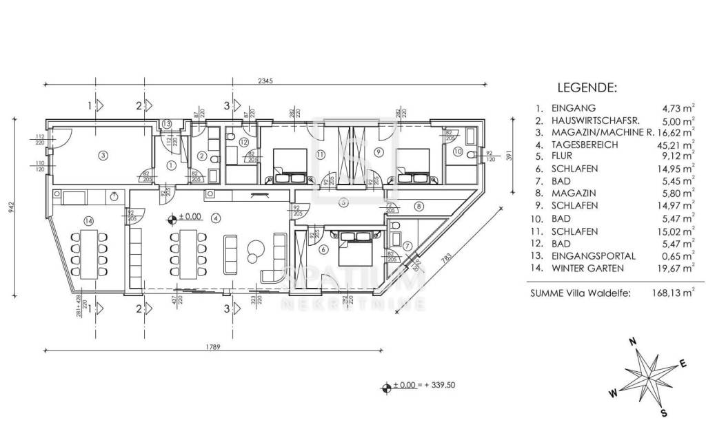
BARBAN, zum Verkauf stehen zwei Baugrundstücke mit einer Gesamtfläche von 2.185 m² (863 m² und 1.186 m²), jeweils mit einer rechtskräftigen Baugenehmigung für den Bau von eingeschossigen Häusern mit einer Nettowohnfläche von 168 m² und 234 m². Im Preis enthalten sind vollständige Projektunterlagen und alle erforderlichen Genehmigungen, sodass mit dem Bau unmittelbar begonnen werden kann.

Die Grundstücke liegen in einem ruhigen Teil des Ortes, umgeben von Natur, und bieten einen wunderschönen offenen Blick auf den Berg Učka. Alle Anschlüsse befinden sich in etwa 20 Metern Entfernung, was die Umsetzung des Projekts zusätzlich erleichtert.

Barban ist eine malerische mittelalterliche Akropolis-Siedlung im südöstlichen Teil Istriens, oberhalb des Raša-Tals. Das Dorf ist bekannt für sein reiches kulturelles und historisches Erbe sowie für traditionelle Veranstaltungen wie das Ritterspiel „Trka na prstenac“, das Weinfest und das Feigenfestival, die Besucher das ganze Jahr über anziehen.
Der Standort eignet sich ideal für privates Wohnen oder touristische Investitionen.

Für weitere Informationen stehen wir Ihnen gerne zur Verfügung.

Petra Juričić
lizenzierte Maklerin
+385 91 185 1211
petra@spatium.hr

Spatium Immobilien
+385 51 272 903
info@spatium.hr

ID CODE: 7573

Petra Juričić
Agent s licencom
Mob: +385 91 185 1211
Tel: +385 51 272 903
E-mail: petra@spatium.hr
www.spatium.hr
Merkmale
Vertrag
Verkauf
Art
Bauland
Fläche
2.185 m²
Preisinformationen
Preis
€ 250.000
Preis pro m²
114 €/m²
Grundriss
Entdecken Sie jeden Winkel des Anwesens
+21
Zusätzliche Optionen

Inserenten kontaktieren

Oder