1/4


Dreizimmerwohnung erste Etage, Veli Vrh - Industrijska zona, Pula
€ 254.100
Anzeige aktualisiert am: 19.03.2026
Beschreibung
Referenz: IS1520486
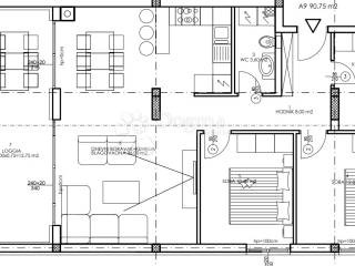
Wohnung Veli vrh, Pula, 86,50m2
ID CODE: IS1520486
Filip Crnjac
Agent s licencom
Mob: 091/600-1216
Tel: 052 645 444
E-mail: filip.crnjac@dogma-nekretnine.com
www.dogma-istra.com
Merkmale
- Art
- Wohnung
- Vertrag
- Verkauf
- Etage
- 1 etage
- Aufzug
- Ja
- Fläche
- 90 m²
- Zimmer
- 3
- Schlafzimmer
- 2
- Badezimmer
- 1
- Balkon
- Nein
- Terrasse
- Ja
- Garage, parkplätze (auto)
- 1 in lager/garage
- Klimaanlage
- Eigenständig, kalt / warm
Preisinformationen
- Preis
- € 254.100
- Preis pro m²
- 2.823 €/m²
Energieeffizienz
Baujahr
2027Klimatisierung
Eigenständig, kalt / warmEnergieausweis
Befreit
Entdecken Sie jeden Winkel des Anwesens
Zusätzliche Optionen