Zweizimmerwohnung Povljana, Povljana

€ 154.132
2
49 m²
1
0
Ja

Notiz

Anzeige aktualisiert am: 30.04.2026
Beschreibung

This description has been translated automatically and may not be accurate

Referenz: 7672

Wohnungen in einem Neubau in ruhiger Lage - Insel Pag

Insel Pag – moderne Apartments in einem Neubau in Povljana zu verkaufen, in ruhiger Lage, etwa 800 m vom Meer entfernt.

Das Gebäude ist hochwertig gebaut und ausgestattet und verfügt außerdem über einen Aufzug.

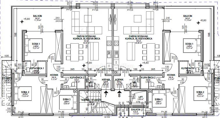
WOHNUNG S2 (Erdgeschoss) – Fläche 49,79 m²
Preis: 154.132 €

Besteht aus Flur, Badezimmer, Wohnzimmer mit Küche und Essbereich, einem Schlafzimmer, einer Loggia und einem Abstellraum.
Im Badezimmer ist Fußbodenheizung installiert, außerdem verfügt die Wohnung über WindFree-Klimaanlage.

Zur Wohnung gehört ein Außenstellplatz, mit der Möglichkeit, einen Garagenstellplatz zu erwerben.

WOHNUNG S6 (1. Stock) – Fläche 85,28 m²
Preis: 208.560 €

Besteht aus Flur, Wohnzimmer mit Küche und Essbereich, Badezimmer, zwei Schlafzimmern, separatem WC und zwei Balkonen.
Zur Wohnung gehört außerdem ein Abstellraum von 3,74 m².

Die Wohnung verfügt über zentrale Fußbodenheizung in der gesamten Wohnung sowie WindFree-Klimaanlage.

Zur Wohnung gehört ein Außenstellplatz, mit der Möglichkeit, einen Garagenstellplatz zu erwerben.

PENTHOUSE S8 (2. Stock) – Fläche 215,95 m²
Preis: 478.500 €

Besteht aus zwei Fluren, Wohnzimmer mit Küche und Essbereich, zwei Badezimmern, drei Schlafzimmern, WC, Treppe und zwei Balkonen.
Zur Wohnung gehört außerdem ein Abstellraum von 3,62 m².

Die Wohnung verfügt über zentrale Fußbodenheizung in der gesamten Wohnung sowie WindFree-Klimaanlage.

Zum Penthouse gehört außerdem eine Dachterrasse mit Pool.

Die Dachterrasse besteht aus einer offenen und überdachten Terrasse, einem Pool von 10,38 m², Technikraum, WC und Küchenbereich.

Zur Wohnung gehört ein Außenstellplatz, mit der Möglichkeit, einen Garagenstellplatz zu erwerben.

Provizija agencije za kupca iznosi 3% + PDV i plaća se u slučaju kupovine nekretnine kod zaključenja kupoprodajnog Ugovora.

ID CODE: 7672

Euro Immobilien d.o.o.
Mob: 0994440500
Tel: +385 51 220 024
E-mail: info@euro-immobilien.hr
www.euro-immobilien.hr
Merkmale
Art
Wohnung
Vertrag
Verkauf
Etage
Erdgeschoss
Stockwerke im Gebäude
2
Aufzug
Ja
Fläche
49 m²
Zimmer
2
Schlafzimmer
1
Badezimmer
1
Balkon
Nein
Terrasse
Nein
Garage, parkplätze (auto)
1 parkplatz(e)
Klimaanlage
Eigenständig, kalt / warm
Preisinformationen
Preis
€ 154.132
Preis pro m²
3.146 €/m²
Energieeffizienz
  • Klimatisierung

    Eigenständig, kalt / warm
  • Energieausweis

    Nicht klassifizierbar
Grundriss
Entdecken Sie jeden Winkel des Anwesens
+5
Zusätzliche Optionen

Inserenten kontaktieren

Oder