map icon

Dreizimmerwohnung erste Etage, Tuškanac, Zagreb

ZagrebTuškanac
€ 240.000
3
70 m²
1
1
Nein

Notiz

Anzeige aktualisiert am: 22.03.2026
Beschreibung

Referenz: 48559128-S2366

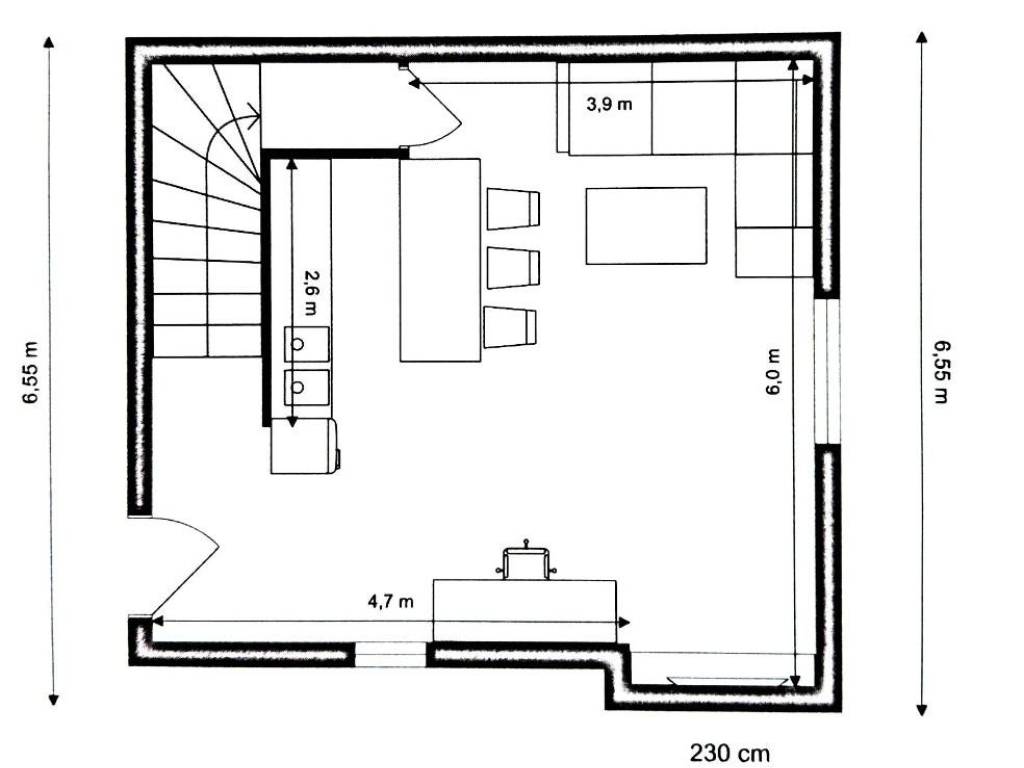
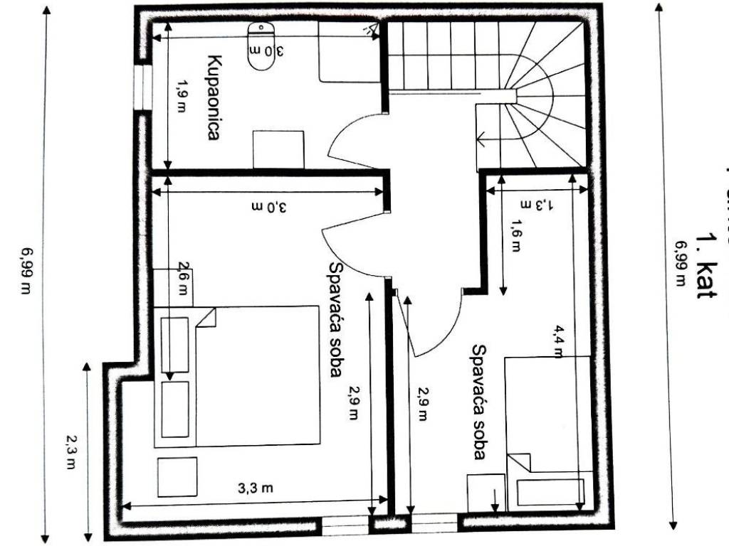
STAN, PRODAJA, ZAGREB, PANTOVČAK, 70 m2, 3-soban Prodaje se dvoetažan trosoban stan površine 70 m2 na prvom katu u dvorišnom dijelu zgrade bez lifta u blizini Britanskog trga. Stan se sastoji od dnevnog boravka s kuhinjom i blagovaonom (donja etaža) te dvije sobe i kupaonice(gornja etaža). Stan se prodaje suvlasnički dio te stan nije moguće kupiti stambenim kreditom, već isključivom gotovinski ili hipotekarnim kreditom na drugoj nekretnini. U neposrednoj blizini nalazi se Britanski trg, javni prijevoz, dućan, škola, vrtić i svi potrebni sadržaji za život. Orijentacija: Jug-Istok Grijanje: na struju Parking: javni (I. zona) Cijena: 240 000 EUR Za više informacija: Jakša Stecca Tel: +385 98 9075549 Email: jaksa@viranekretnine.hr Web: https://viranekretnine.hr ID NEKRETNINE: S2366
Merkmale
Art
Wohnung
Vertrag
Verkauf
Etage
1 etage
Stockwerke im Gebäude
1
Aufzug
Nein
Fläche
70 m²
Zimmer
3
Schlafzimmer
3
Badezimmer
1
Möbliert
Nein
Balkon
Nein
Terrasse
Nein
Preisinformationen
Preis
€ 240.000
Preis pro m²
3.429 €/m²
Energieeffizienz
  • Energieausweis

    Auf Zertifizierung wartend
Entdecken Sie jeden Winkel des Anwesens
+16
Zusätzliche Optionen

Inserenten kontaktieren

Oder