Bauland zur Verkauf

€ 1.100.000
1.188 m²

Notiz

Anzeige aktualisiert am: 12.05.2026
Beschreibung

This description has been translated automatically and may not be accurate

Referenz: 46376

MATULJI, JUŠIĆI Baugrundstück für 13 exklusive Apartments, Toplage!

MATULJI, JUŠIĆI Baugrundstück für 13 exklusive Wohnungen in Toplage!

In DUX bieten wir Ihnen eine erstklassige Gelegenheit: ein Baugrundstück, auf dem drei Wohngebäude (A, B und C) mit insgesamt 13 exklusiven Wohnungen errichtet werden können. Diese Immobilie ist somit eine außergewöhnliche Chance für Investoren.

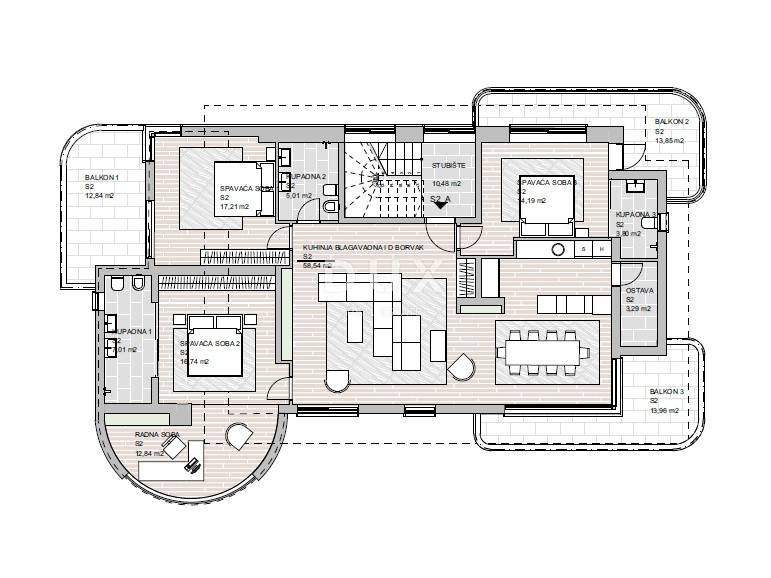
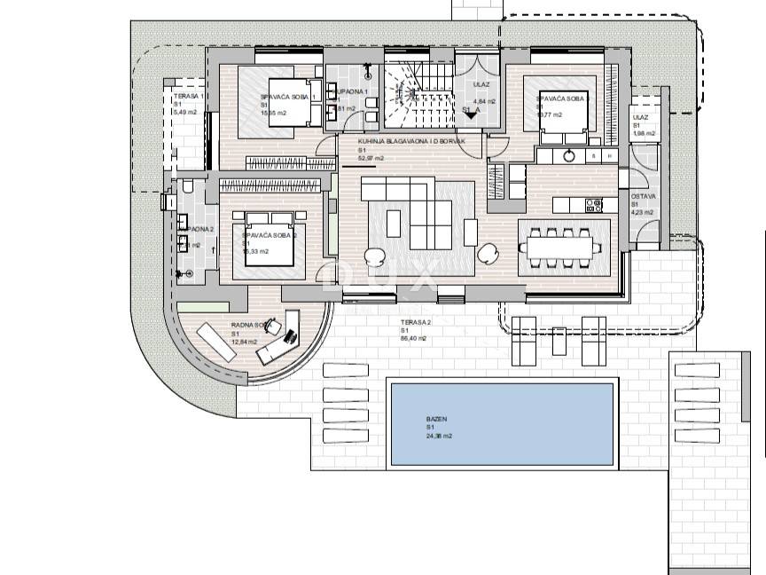
Gebäude A hat eine Fläche von 602,96 m und besteht aus drei Wohnungen: Wohnung S1 im Erdgeschoss mit einer Gesamtfläche von 243,16 m, Wohnung S2 im ersten Obergeschoss mit einer Gesamtfläche von 179,28 m und Wohnung S3 im zweiten Obergeschoss mit einer Gesamtfläche von 180,52 m.

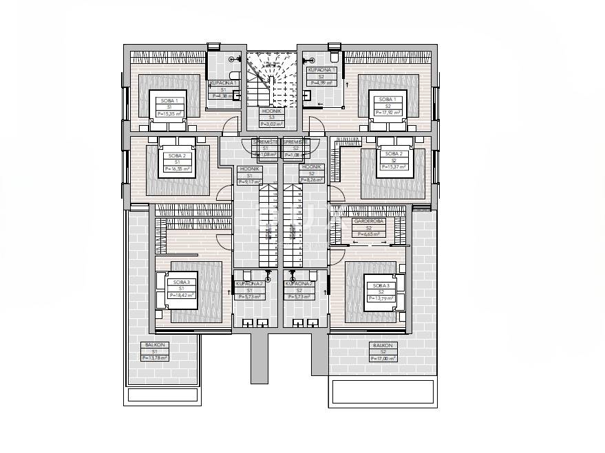
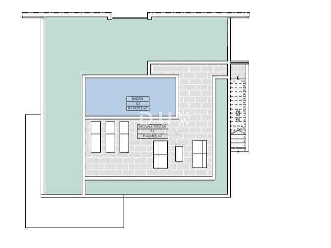
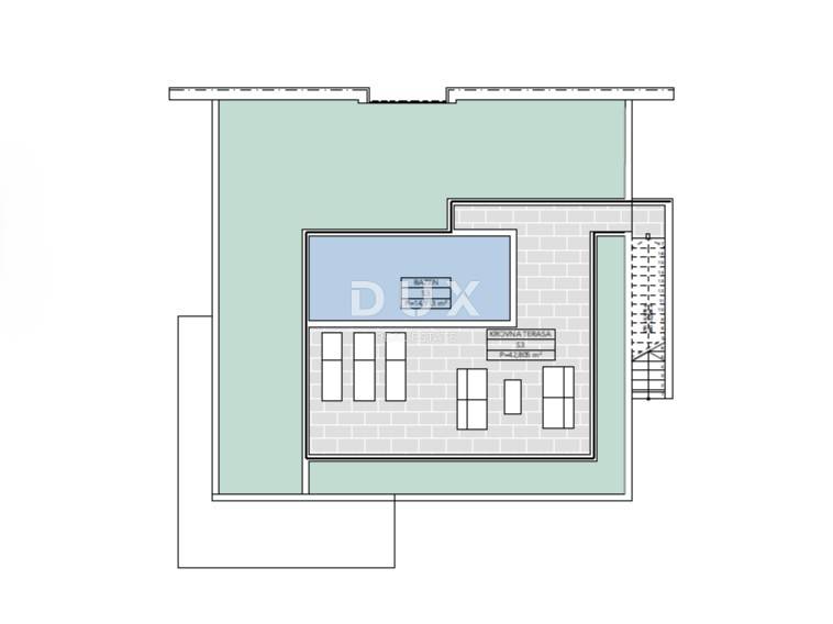
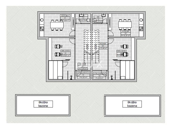
Gebäude B hat eine Fläche von 768,6 m und besteht aus fünf Wohnungen sowie einer Dachterrasse. Im Untergeschoss befinden sich die Wohnungen S1 und S2 mit Gesamtflächen von 54,85 m bzw. 54,82 m. Im Erdgeschoss des Gebäudes befinden sich zwei Wohnungen mit einer Gesamtfläche von 123,54 m bzw. 123,74 m. Ebenso befinden sich im ersten Obergeschoss zwei Wohnungen mit einer Gesamtfläche von 84,49 m bzw. 90,81 m. Im Dachgeschoss, genauer gesagt im zweiten Obergeschoss, befindet sich die Wohnung S3 mit einer Gesamtfläche von 178,63 m. Gebäude B verfügt außerdem über einen Dachpool und eine Terrasse mit einer Gesamtfläche von 57,72 m.

Gebäude C hat eine Fläche von 820,69 m und besteht aus fünf Wohnungen und einer Dachterrasse. Im Untergeschoss befinden sich die Wohnungen S1 und S2 mit einer Gesamtfläche von 54,85 m bzw. 54,82 m. Im Erdgeschoss befinden sich zwei Wohnungen mit einer Gesamtfläche von 123,97 m bzw. 121,93 m. Ebenso befinden sich im ersten Obergeschoss zwei Wohnungen mit einer Gesamtfläche von 84,46 m bzw. 90,81 m. Im obersten Stockwerk des Gebäudes, genauer gesagt im zweiten Obergeschoss, befindet sich die Wohnung S3 mit einer Gesamtfläche von 189,11 m. Gebäude C verfügt außerdem über einen Dachpool und eine Terrasse mit einer Gesamtfläche von 57,72 m.

Das Grundstück wird mit vorbereiteten Konzeptentwürfen verkauft. Der zukünftige Investor muss die Haupt- und Detailpläne erstellen und einen Bauantrag stellen.

Das Grundstück befindet sich in einer fantastischen, belebten Lage in der Nähe von Matulji und Opatija, in einer gepflegten und ruhigen Umgebung, umgeben von Grünflächen und hochwertiger, neuerer Bebauung. Dies verleiht ihm zusätzlichen Wert und langfristige Investitionssicherheit.

Die gesamte notwendige Infrastruktur befindet sich in unmittelbarer Nähe des Grundstücks, und die Lage ermöglicht eine schnelle und einfache Anbindung an Opatija, Rijeka und die Hauptverkehrsstraßen.

Das Projektkonzept sieht moderne Architektur, Privatsphäre, Außenbereiche und Swimmingpools vor und macht diese Investition daher äußerst attraktiv für den Wohn- oder Ferienvermietungsmarkt.

Um einen Besichtigungstermin zu vereinbaren, kontaktieren Sie einen unserer vertrauenswürdigen Makler eine Beratung auf Deutsch ist möglich.

Sehr geehrte Kunden, die Maklerprovision richtet sich nach unseren Allgemeinen Geschäftsbedingungen.

www.dux-nekretnine.hr/opci-uvjeti-poslovanja

ID CODE: 46376

Marko Šutanovac
Agent s licencom
Mob: +385 91 189 8332
Tel: +385 91 480 8808
E-mail: marko@dux-nekretnine.hr
www.dux-opatija.com
Wenn Sie mehr wissen möchten, können Sie mit Marko Šutanovac. sprechen
Merkmale
Vertrag
Verkauf
Art
Bauland
Fläche
1.188 m²
Preisinformationen
Preis
€ 1.100.000
Preis pro m²
926 €/m²
Entdecken Sie jeden Winkel des Anwesens
+23
Zusätzliche Optionen

Inserenten kontaktieren

Oder