Zweizimmerwohnung neu, erste Etage, Kaštela

€ 277.488
2
77 m²
1
1
Terrasse

Notiz

Anzeige aktualisiert am: 09.04.2026
Beschreibung

This description has been translated automatically and may not be accurate

Referenz: 3654-1

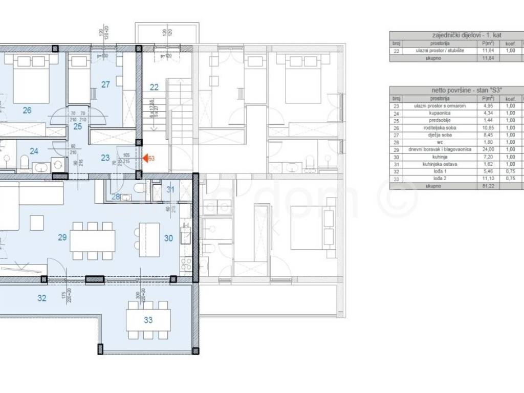
Zum Verkauf stehen Wohnungen in einem Neubauprojekt in Kastel Sucurac. Das Gebäude liegt in einer ruhigen Straße oberhalb der Schnellstraße. Alle Wohnungen sind nach Süden ausgerichtet und bieten einen herrlichen Blick auf die Bucht von Kaštela. Das Gebäude umfasst insgesamt drei komfortable Zwei-Zimmer-Wohnungen und eine luxuriöse, zweistöckige Drei-Zimmer-Wohnung mit Garage. Wohnung S3 befindet sich im ersten Obergeschoss und verfügt über 64,66 m Wohnfläche und eine 16,76 m große Loggia. Mit allen Ausstattungsmerkmalen beträgt die Nettofläche der Wohnung 77,08 m. Sie besteht aus Flur, Hauswirtschaftsraum, Bad, WC, zwei Schlafzimmern, einem weiteren Badezimmer sowie einer offenen Küche mit Ess- und Wohnbereich, die sich zu einer geräumigen Loggia und einem Garten öffnet. Bis zu zwei Parkplätze können zur Wohnung hinzugebucht werden. Jeder Parkplatz kostet zusätzlich 10.000 . In Absprache mit dem Investor besteht die Möglichkeit, die Materialien für die Wohnungen selbst auszuwählen. Der Investor bietet die Option einer Finanzierung über einen Wohnkredit an. Die Fertigstellung und der Bezug der Wohnungen sind für Ende 2027 geplant.

Die Standardgeschäftspolitik unserer Immobilienagentur besteht darin, eine Besichtigung der Immobilie zu organisieren, nachdem der Kunde unseren Standardagenturvertrag unterzeichnet hat. Die Unterzeichnung dieser Vereinbarung ist eine Grundvoraussetzung für weitere Aktivitäten im Zusammenhang mit dem Immobilienkauf, die auf dem Immobilienmaklergesetz und dem Datenschutzgesetz beruhen.
Wenn Sie mehr wissen möchten, können Sie mit Marija Paić. sprechen
Merkmale
Art
Wohnung
Vertrag
Verkauf
Etage
1 etage
Fläche
77 m²
Zimmer
2
Badezimmer
1
Terrasse
Ja
Klimaanlage
Zentral, kalt / warm
Preisinformationen
Preis
€ 277.488
Preis pro m²
3.604 €/m²
Energieeffizienz
  • Zustand

    Neu / Im Bau
  • Klimatisierung

    Zentral, kalt / warm
  • Energieausweis

    Nicht klassifizierbar
Entdecken Sie jeden Winkel des Anwesens
+4
Zusätzliche Optionen

Inserenten kontaktieren

Oder