Zweizimmerwohnung Lun, Novalja

€ 448.000
2
122 m²
0
Terrasse

Notiz

Anzeige aktualisiert am: 17.04.2026
Beschreibung

Referenz: EUROVILLA-694225

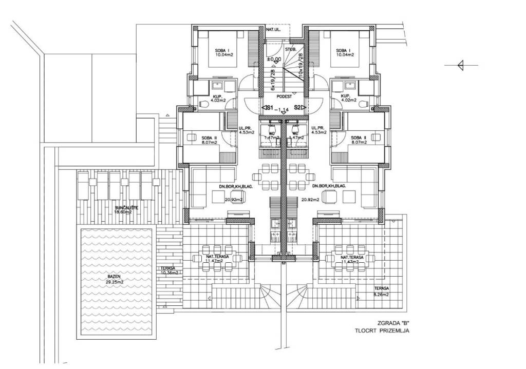
Pag, Jakišnica, novogradnja, prizemni stan s bazenom i vrtom, 122,74 m2Na prodaju je vrhunski opremljen stan u prizemlju manje stambene zgrade s ukupno 5 jedinica, smješten u mirnom dijelu Jakišnice, na samom rubu građevinskog pojasa.Stan S1, zatvorene površine 57,38 m2 sastoji se od dvije spavaće sobe, kuhinje s blagovaonicom i dnevnim boravkom, kupaonice, zasebnog wc-a te natkrivene terase. Nekretnini dodatno pripada konoba u podrumu s kuhinjom i kupaonicom površine 33,15 m2, kao i vrt 66,10 m2, bazen 29,25 m2, sunčalište 18,60 m2 te parkirno mjesto.Ukupna neto korisna površina iznosi 122,74 m2.Stan odlikuje vrlo kvalitetna oprema od čega izdvajamo:Mitra protuprovalna i protupožarna vrataMDF unutarnja vrata sa skrivenim pantimaTroslojna stolarija s komarnicima i električnim roletamaBjelini parket u sobama italijanska gres porculan keramika velikog formataPodno električno grijanje te Daikin klima uređajiGeberit sanitarije, Hansgrohe slavine i tuševi te tuš kabine s kaljenim staklom 8mmOdlična nekretnina za odmor, cjelogodišnje korištenje ili turistički najam na jednoj od mirnijih i uređenijih lokacija sjevernog dijela otoka Paga.Za više informacija stojim na raspolaganju.... Više na eurovilla.hr, ID: 694225
Wenn Sie mehr wissen möchten, können Sie mit Filip Luštica . sprechen
Merkmale
Art
Wohnung
Vertrag
Verkauf
Etage
Erdgeschoss
Fläche
122 m²
Zimmer
2
Schlafzimmer
2
Terrasse
Ja
Oberflächendetail

Wohnung

Etage
Erdgeschoss
Fläche
122,8 m²
Koeffizient
100%
Flächenart
Hauptsächlich
Verkaufsfläche
122,8 m²
Preisinformationen
Preis
€ 448.000
Preis pro m²
3.672 €/m²
Grundriss
Entdecken Sie jeden Winkel des Anwesens
+27
Zusätzliche Optionen

Inserenten kontaktieren

Oder