Dreizimmerwohnung 112 m², Staro Brestje, Zagreb

€ 277.000
3
112 m²
1
0
Terrasse
Möbliert

Notiz

Anzeige aktualisiert am: 04.02.2026
Beschreibung

Referenz: EK-666981

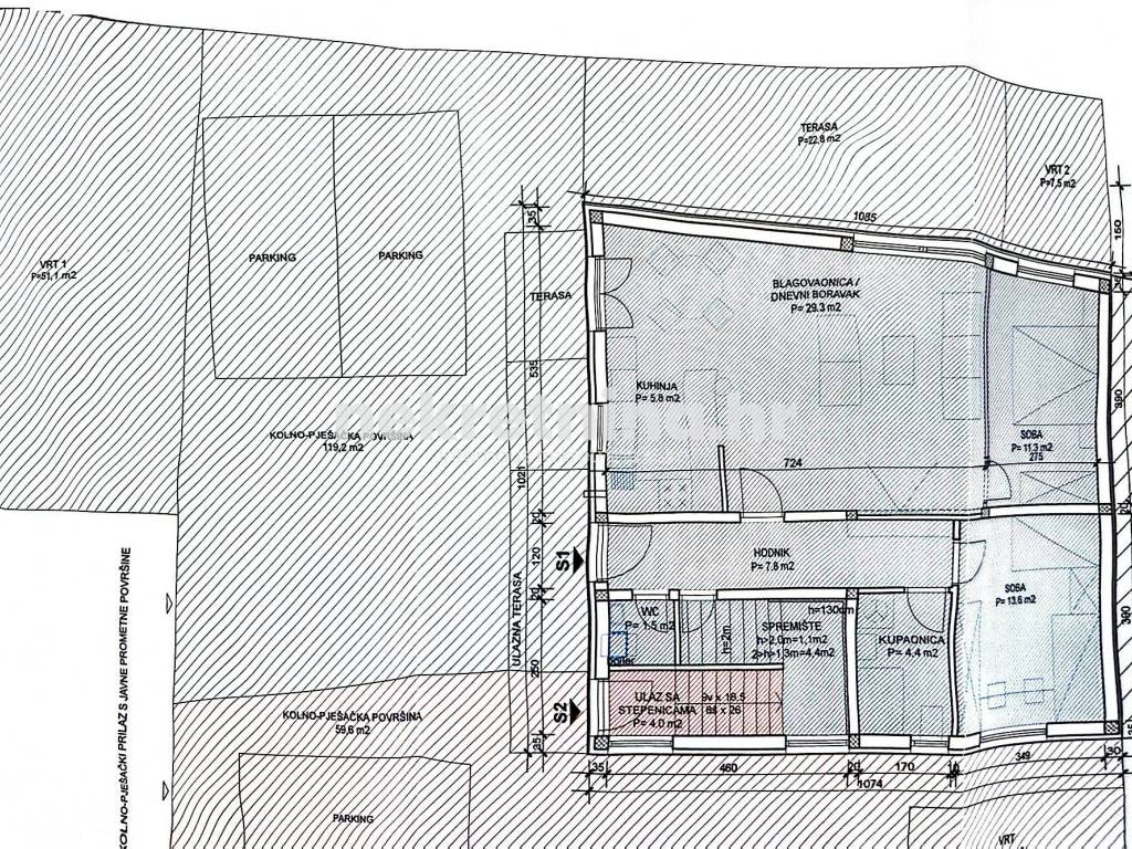
Prodaje se trosobni stan u prizemlju novogradnje ukupne neto površine 112,36m2, smješten u mirnom naselju - Sopnica, u Sopničkoj ulici.

Osnovne informacije:

-Površina stana: 112,36 m² (ukupna korisna površina)
-Broj soba: 3 (dnevni boravak + 2 spavaće sobe)
-Etaža: prizemlje
-Pripadajući prostori: terasa, dva vrta i parkirno mjesto

Raspored prostorija:

-hodnik
-blagovaonica i dnevni boravak (29,30 m²)
-kuhinja
-dvije spavaće sobe (13,60 m² i 11,30 m²)
-kupaonica i WC
-spremište

Pripadci stanu:

-terasa (22,80 m²)
-dva vrta (51,10 m² i 7,50 m²) – ukupno 58,60 m²
- kolno-pješačka površina (119,20 m²)

Prednosti nekretnine:

- Novogradnja, moderan raspored i funkcionalan prostor
- Prirodno svijetlo
- Terasa i vlastiti vrt idealni za odmor, druženje i obiteljski život
- Mirno i obiteljsko naselje s dobrom prometnom povezanošću
- U blizini svi potrebni sadržaji (škola, vrtić, trgovine, javni prijevoz)

Stan je idealan za obitelj koja traži komforan životni prostor u mirnom okruženju, a istovremeno nadomak centra grada.

Za više informacija:
01 7701077
091 122 2121
nekretnina.hr
Ulica kralja Zvonimira 52
Wenn Sie mehr wissen möchten, können Sie mit Ante Berišić. sprechen
Merkmale
Art
Wohnung | Gesamtes eigentum
Vertrag
Verkauf
Etage
Erdgeschoss
Fläche
112 m²
Zimmer
3
Schlafzimmer
2
Küche
Wohnküche
Badezimmer
1
Möbliert
Ja
Terrasse
Ja
Garage, parkplätze (auto)
1 parkplatz(e)
Oberflächendetail

Wohnung

Etage
Erdgeschoss
Fläche
112,0 m²
Koeffizient
100%
Flächenart
Hauptsächlich
Verkaufsfläche
112,0 m²
Preisinformationen
Preis
€ 277.000
Preis pro m²
2.473 €/m²
Energieeffizienz

Energieverbrauch

≥ 250 kWh/m² JahrB

Entdecken Sie jeden Winkel des Anwesens
+15
Zusätzliche Optionen

Inserenten kontaktieren

Oder