map icon

Wohnung neu, Erdgeschoss, Nin

Nin
€ 360.000
5
76 m²
1
0
Ja
Terrasse

Notiz

Anzeige aktualisiert am: 23.12.2025
Beschreibung

This description has been translated automatically and may not be accurate

Referenz: 3851-1

Luxury flat/apartment for sale only 20 m from the sea in Zaton. It is a new building with an elevator, in the 2.nd row to the sea in Zaton near Zadar, this apartment has a sea view.
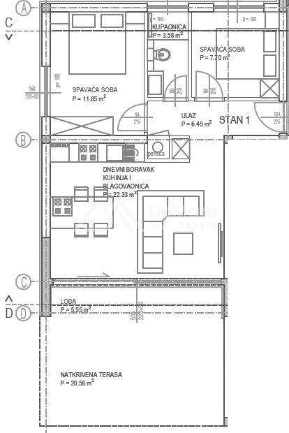
The apartment on the ground floor consists of a hallway, 2 bedrooms, a bathroom, a kitchen with a dining room and a living room, and a covered terrace. The net usable area of the described surfaces with a terrace is 66.36 m2. In addition, the apartment has two parking spaces and a garden of approx. 29 m2.
The total calculated usable surface of this apartment with all accessories is 76.41 m2.
The estimated deadline for moving in is the summer of 2024.
The investor is a company, so the buyer does not pay real estate sales tax.

Payment of the first part of the amount is 10% of the selling price of the property (down payment), and for the rest of the amount, possibility of financing with a housing loan.
This property is only 700 m from the center of Zaton, and the city of Zadar is about 12 km away.

Equipment:
Construction with brick thermal blocks. Facade thermal insulation is 10 cm styrofoam. The floor coverings are tiles and parquet. Aluminum windows with three-layer glass, mosquito nets and electric shutters and blinds. Air conditioners are in the living room and in each bedroom. In addition, underfloor heating with a heat pump and air conditioning (Mitshubishi). Furthermore, the entrance door is burglar-proof and fire-proof. There also is an outdoor shower in the garden.
Energy certificate A is expected for this property.

Location:
Zaton is a small tourist town located between two historical cities - Nin (2 km) and Zadar (12 km), it represents a unique combination of Dalmatian architecture, pleasant Mediterranean climate, preserved nature, rich cultural and historical heritage and lively tourist everyday life.
Sandy beaches in the shade of centuries-old pines are ideal for families with children.
Nin is a place known for its sandy beaches and healing mud, and is located in the immediate vicinity of Paklenica and Kornati National Parks.
Merkmale
Art
Wohnung
Vertrag
Verkauf
Etage
Erdgeschoss
Aufzug
Ja
Fläche
76 m²
Zimmer
5
Schlafzimmer
2
Badezimmer
1
Terrasse
Ja
Klimaanlage
Zentral, kalt / warm
Andere Merkmale
  • Gepanzerte Tür
Preisinformationen
Preis
€ 360.000
Preis pro m²
4.737 €/m²
Energieeffizienz
  • Baujahr

    2025
  • Zustand

    Neu / Im Bau
  • Klimatisierung

    Zentral, kalt / warm
  • Energieausweis

    Nicht klassifizierbar
Entdecken Sie jeden Winkel des Anwesens
+14
Zusätzliche Optionen

Inserenten kontaktieren

Oder