Dreizimmerwohnung neu, zweite Etage, Staro Brestje, Zagreb

€ 201.150
3
105 m²
2
2
Terrasse

Notiz

Anzeige aktualisiert am: 29.10.2025
Beschreibung

Referenz: 943

KRALJEVAČKI NOVAKI -NOVOGRADNJA U IZGRADNJI
MF3-stan 3 -uvučeni kat + VPM + VRT
Novogradnja s tri ulaza i ukupno devet stanova.
Svaki ulaz ima prizemlje, kat i uvučeni kat.
Na svakoj etaži je samo jedan stan
Stolarija: antracit - bijela s komarnicima- aluminijske rolete s el. podizaćima i komarnicima
Grijanje: dizalice topline-podno i grijanje vode. Svaka prostorija ima svoj tegulator topline.
Hlađenje: klima uređaj
A+ certifikat- kamena vuna 15 cm (ETICS 15 sm)
Konstrukcija: armirano-betonska i zidana
Stubište: Kamen
Vrhunski gotovi hrastov parket koji ima mogućnost prušenje i lakiranja u budućem razdoblju.
Kupaonica: vrhunska keramika (kupac može napraviti svoj odabir)
Video portafon
Krov: ravni, na kojem su smještene vanjske jedinice dizalica topline i klimatizacijskih uređaja
Vanjsko parkirno mjesto ima dovod el. energije koji je spojen s el. brojilom stana.
Garancije:
Za uređaje prema garantnim rokovima
Za obrtničke radove 2 godine
Za krov i konstrukcijske radove 10 godina.
Nalazi se u mirnom okruženju u sjevernom dijelu K. Novaka, u blizini škole, vrtića, od centra Sesveta udaljen cca 1500 m. Udaljenost do glavne prometnice Sesvete- Sesvetski Kraljevec cca 400 m.
Cijena je izražena s PDV-om
Predviđeni rok završetka objekta je jesen 2026. godine, dakle najkasnije 31.12.2026.


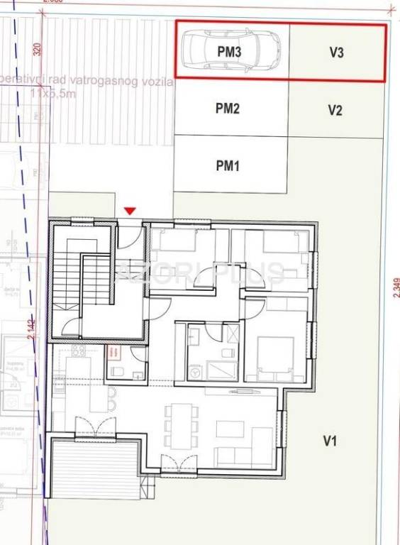
ZGRADA MF3 STAN 3 - uvučeni kat


predprostor 2,42
dnevni prostor 25,24 m2
kuhinja 6,00 m2
predsoblje 2,76 m2
kupaona 5,29 m2
spavaća soba 10,31 m2
dječja soba 8,91 m2


POSEBNI DIO 3 UKUPNO 60,93 m2 ( zatvoreni dio stambenog prostora)


SPOREDNI DIO 3
terasa a površine 6,20 m2 x 0,25 = 1,55 m2
terasa b površine 18,93 m2 x 0,25 = 4,73 m2


SPOREDNI DIO 3 UKUPNO realne površine 25,13m2, a prodajne površine 6,28 m2


PRIPADAK: 2
PM3 12,50 x 0,20 = 2,50 m2
vrt 10,57 m2 x 0,10 =1,06 m2


PRIPADAK 3 ukupno realne površine 23,07 m2, a prodajne 3,56 m2


UKUPNA PRODAJNA POVRŠINA IZRAŽENA PO KOEFICIJENTIMA 70,77 m2
Cijena je izražena s PDV-om.
 
 
 
 
 
 
 
Merkmale
Art
Wohnung
Vertrag
Verkauf
Etage
2
Stockwerke im Gebäude
2
Fläche
105 m² | gewerblich 161,5 m²
Zimmer
3
Schlafzimmer
2
Badezimmer
2
Terrasse
Ja
Garage, parkplätze (auto)
2 parkplatz(e)
Heizung
Zentralheizung, heizkörper, stromversorgung
Andere Merkmale
  • Fensterrahmen mit Einfachverglasung / PVC
  • Türöffner mit Videoüberwachung
  • Gepanzerte Tür
Oberflächendetail

Wohnung

Etage
2
Fläche
105,0 m²
Koeffizient
100%
Flächenart
Hauptsächlich
Verkaufsfläche
105,0 m²

Terrasse

Etage
2
Fläche
38,0 m²
Koeffizient
36.2%
Flächenart
zusätzlich
Verkaufsfläche
13,8 m²

Garten

Etage
Erdgeschoss
Fläche
67,0 m²
Koeffizient
63.8%
Flächenart
zusätzlich
Verkaufsfläche
42,7 m²
Preisinformationen
Preis
€ 201.150
Preis pro m²
1.246 €/m²
Kostendetails
Eigentumswohnungskosten
Keine Umlagen
Energieeffizienz

Energieverbrauch

A+

Grundriss
Stan u novogradnji, Prodaja, Zagreb, Sesvete
Stan u novogradnji, Prodaja, Zagreb, Sesvete
Stan u novogradnji, Prodaja, Zagreb, Sesvete
Stan u novogradnji, Prodaja, Zagreb, Sesvete
Entdecken Sie jeden Winkel des Anwesens
+2
Zusätzliche Optionen

Inserenten kontaktieren

Oder