Reihenvilla 4 Zimmern, Brezovica sjever, Zagreb

€ 265.000
4
105 m²
2

Notiz

Anzeige aktualisiert am: 28.04.2026
Beschreibung

Referenz: 186

PRODAJA, PROJEKT BREZOVICA III - CENTAR, 8 KUĆA U NIZU, USELJENJE 2027.
Prodaje se 8 kuća u nizu, koje se sastoje od prizemlja i kata te svakoj pripadaju dva parkirna mjesta i vrt.
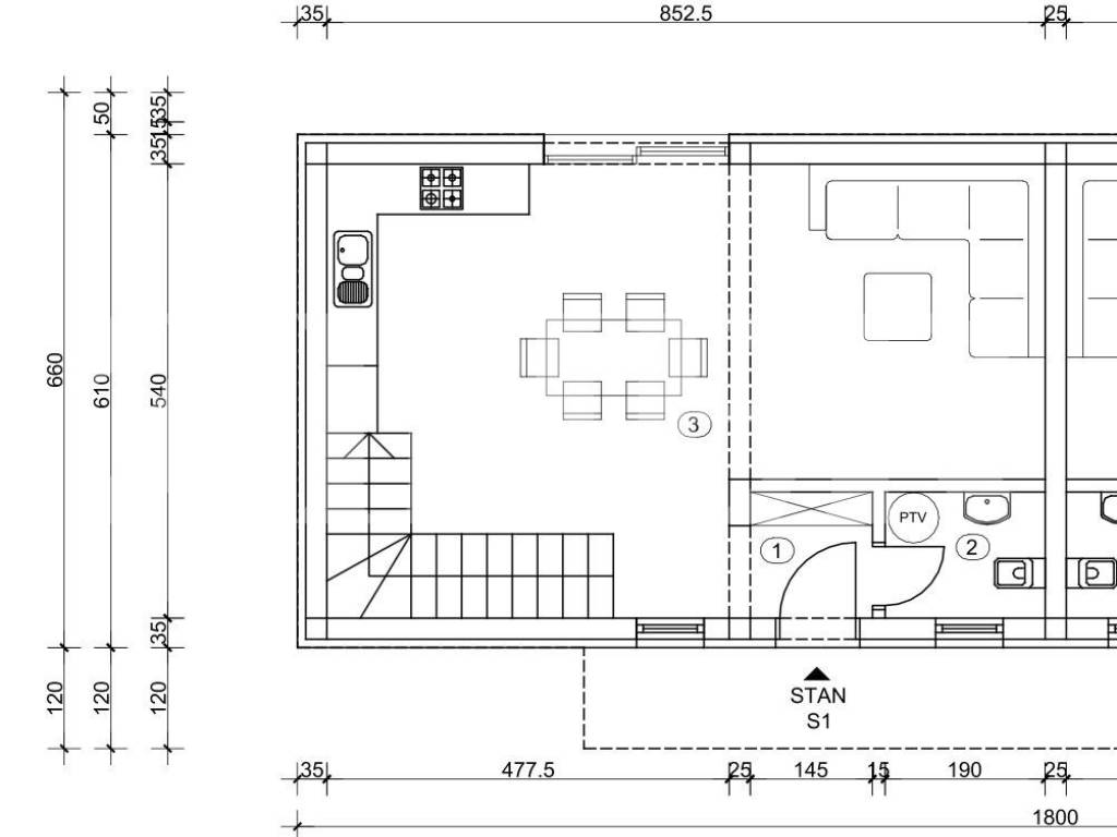
Prizemlje: ulazni prostor (2,17m2), wc (2,85m2) i dnevni boravak sa kuhinjom i blagovaonicom (40,12m2), ukupne prodajne površine 45,14 m2.
Kat: hodnik (5,31m2), spremište (2,20m2), spavaća soba (8,84m2), spavaće sobe (8,84m2), kupaonica (4,98m2), spavaća soba (14,98 m2), ukupne prodajne površine 45,15m2.
Svakoj kući pripada vrt i dva vanjska parkirna mjesta.
S1 - PRODANO
S2 - KUĆA 90 m2 + VRT 36 M2 + 2 PM = 264.150 eur
S3 - KUĆA 90 m2 + VRT 37 M2 + 2 PM = 263.475 eur
S4 - KUĆA 90 m2 + VRT 36 M2 + 2 PM = 265.000 eur
S5 - PRODANO
S6 - PRODANO
S7 - PRODANO
S8 - KUĆA 90 m2 + VRT 302 M2 + 2 PM +  poljoprivredno zemljište 1.400 m2 = 290.000 eur
LOKACIJA :
Arena centar 6 km, škola 250 m, vrtić 250 m, dom zdravlja 250 m.
OPREMA:
- Konstrukcija cigla, pregradbeni zidovi knauf- Izolacija – termo fasada stiropor- PVC stolarija rehau, troslojno staklo + rolete na struju- dizalice topline, podno grijanje- klima u dnevnom boravku- pločice prve klase u kupaonicama, parket u ostatku kuće
Za sve informacije nazovite 098/359876
ZIHER
Agencija za posredovanje u prometu nekretninama
Merkmale
Art
Reihenvilla
Vertrag
Verkauf
Etage
Auf mehreren etagen
Fläche
105 m²
Zimmer
4
Schlafzimmer
3
Badezimmer
2
Heizung
Zentralheizung, heizkörper, gasbetrieben
Andere Merkmale
  • Fensterrahmen mit Einfachverglasung / PVC
Preisinformationen
Preis
€ 265.000
Preis pro m²
2.524 €/m²
Kostendetails
Eigentumswohnungskosten
Keine Umlagen
Energieeffizienz
  • Baujahr

    2025
  • Heizung

    Zentralheizung, heizkörper, gasbetrieben
  • Energieausweis

    Nicht klassifizierbar
Entdecken Sie jeden Winkel des Anwesens
+8
Zusätzliche Optionen

Inserenten kontaktieren

Oder