Zweizimmerwohnung Erdgeschoss, Kolan

€ 246.384
2
42 m²
1
0

Notiz

Anzeige aktualisiert am: 04.05.2026
Beschreibung

This description has been translated automatically and may not be accurate

Referenz: 15179-1

www.biliskov.com ID: 15179 Pag, Mandre
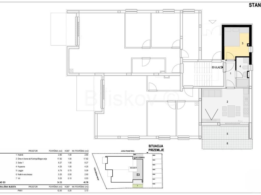
Zum Verkauf steht eine Dreizimmerwohnung mit einer Fläche von 41,76 m im Erdgeschoss eines luxuriösen Neubaus mit 8 Wohnungen, dessen Fertigstellung Endeim Laufe desMArch 2026. Die Wohnung S3 besteht aus einem Eingangsbereich, offener Küche, Esszimmer und Wohnzimmer, Schlafzimmer, Badezimmer, Loggia und Balkon. Zur Wohnung gehört ein nicht überdachter Außenparkplatz. Ausgezeichnete Lage auf der Insel Pag Immobilie direkt am Meer, mit Panoramablick und direktem Zugang zum Strand. Eine Seltenheit auf dem Markt, ideal für exklusives touristisches Angebot oder private Ruheoase. Der Hafen von Mandre und alle wichtigen Einrichtungen sind nur 700 Meter entfernt. Hochwertige Ausführung und Baumaterialien gewährleisten Sicherheit und Komfort. Energieausweis: in Vorbereitung Außenfenster: Aluminium mit Doppelverglasung und elektrischen Rollläden (Schuco) Heizung: Wärmepumpe (Fußbodenheizung) Preis:246.384 Maklerprovision für den Käufer: 2 % + MwSt. auf den erzielten Kaufpreis.
Wenn Sie mehr wissen möchten, können Sie mit Martin Zefkić. sprechen
Merkmale
Art
Wohnung
Vertrag
Verkauf
Etage
Erdgeschoss
Fläche
42 m²
Zimmer
2
Badezimmer
1
Preisinformationen
Preis
€ 246.384
Preis pro m²
5.866 €/m²
Energieeffizienz
  • Baujahr

    2026
  • Energieausweis

    Nicht klassifizierbar
Entdecken Sie jeden Winkel des Anwesens
+23
Zusätzliche Optionen

Inserenten kontaktieren

Oder