map icon

Vierzimmerwohnung neu, Erdgeschoss, Kolan

Kolan
€ 523.500
4
86 m²
1
0

Notiz

Anzeige aktualisiert am: 04.05.2026
Beschreibung

This description has been translated automatically and may not be accurate

Referenz: 15177-1

www.biliskov.com ID: 15177
Pag, Mandre
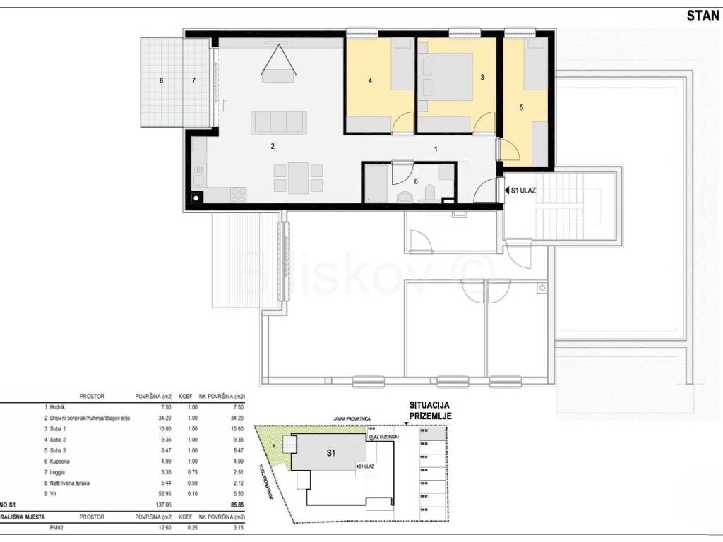
Zum Verkauf steht eine Vierzimmerwohnung mit einer Fläche von 85,85 m im Erdgeschoss eines luxuriösen Neubaus mit 8 Wohnungen, dessen Fertigstellungim Laufe des March 2026. Die Wohnung (S1) besteht aus einem Eingangsbereich, offener Küche, Esszimmer und Wohnzimmer, zwei Schlafzimmern, Badezimmer und Terrasse (privater Garten). Zur Wohnung gehört ein nicht überdachter Außenparkplatz. Ausgezeichnete Lage auf der Insel Pag Immobilie direkt am Meer, mit Panoramablick und direktem Zugang zum Strand. Eine Seltenheit auf dem Markt, ideal für exklusives touristisches Angebot oder private Ruheoase. Der Hafen von Mandre und alle wichtigen Einrichtungen sind nur 700 Meter entfernt. Hochwertige Ausführung und Baumaterialien gewährleisten Sicherheit und Komfort. Energieausweis: in Vorbereitung Außenfenster: Aluminium mit Doppelverglasung und elektrischen Rollläden (Schuco) Heizung: Wärmepumpe (Fußbodenheizung) Preis:523.500
Maklerprovision für den Käufer: 2 % + MwSt. auf den erzielten Kaufpreis.
Wenn Sie mehr wissen möchten, können Sie mit Martin Zefkić. sprechen
Merkmale
Art
Wohnung
Vertrag
Verkauf
Etage
Erdgeschoss
Fläche
86 m²
Zimmer
4
Badezimmer
1
Möbliert
Nein
Klimaanlage
Zentral, kalt / warm
Andere Merkmale
  • Gepanzerte Tür
Preisinformationen
Preis
€ 523.500
Preis pro m²
6.087 €/m²
Energieeffizienz
  • Baujahr

    2026
  • Zustand

    Neu / Im Bau
  • Klimatisierung

    Zentral, kalt / warm
  • Energieausweis

    Nicht klassifizierbar
Entdecken Sie jeden Winkel des Anwesens
+24
Zusätzliche Optionen

Inserenten kontaktieren

Oder