map icon

Einfamilienvilla 145 m², neu, Tar-Vabriga

Tar-Vabriga
€ 1.150.000
4
145 m²
3

Notiz

Anzeige aktualisiert am: 05.12.2025
Beschreibung

This description has been translated automatically and may not be accurate

Referenz: 13803-1

www.biliskov.com ID: 13803
Istrien, Poreč, Projekt von Luxusvillen.
Luxusvilla mit einer Fläche von 144,90 m2 auf einem Grundstück von 1.036 m2, Neubau (2023).
Es besteht aus Erdgeschoss und Obergeschoss.
Im Erdgeschoss befinden sich ein großzügiger Eingangsbereich und Treppenhaus (16,13 m2), Küche (8,85 m2), Ess- und Wohnzimmer (38,99 m2), Schlafzimmer (16,60 m2), Badezimmer (4,97 m2), Toilette (2,18 m2). , Waschküche (4,97 m2), Heizraum (6,74 m2).
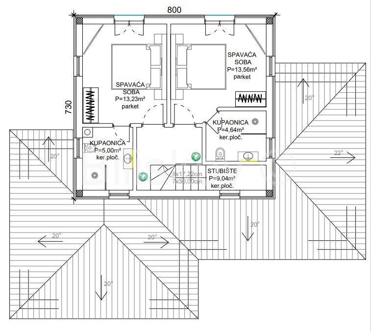
Im ersten Stock gibt es eine Treppe mit einer Fläche von 9,04 m2, zwei Badezimmer (5 und 4,64 m2) und zwei Schlafzimmer (13,23 und 13,56 m2).
Jedes Schlafzimmer verfügt über ein eigenes Badezimmer, während die Toilette im Erdgeschoss gemeinsam genutzt wird.
Die Villa verfügt über eine Terrasse und Liegewiese (72,88 m2), eine kleine Terrasse (8,7 m2), einen großen Garten mit Bewässerungssystem und einen beheizten Pool (36,8 m2). Außerdem wurde eine Außenbeleuchtung installiert.
Der Bereich rund um den Pool besteht aus WPC
Die Villa verfügt über zwei überdachte Parkplätze (insgesamt 31 m2).
Auf dem Dach befinden sich Sonnenkollektoren.
Die Villa verfügt über ein Blockalarm-Alarmsystem.
Die Villa besticht durch individuelles Design und hochwertige Bauweise. Große Fenster lassen viel natürliches Licht in den Raum und bieten gleichzeitig einen schönen Blick in die Natur.
Die Villa zeichnet sich durch herausragende Qualität und Design aus. Bei der Auswahl der Materialien wurde darauf geachtet, nur Produkte einer höheren Kategorie zu verwenden.
Die Mikrolage dieser Luxusvilla ist ideal für diejenigen, die einen Urlaub abseits großer städtischer Gebiete und dennoch nicht weit von allen notwendigen Annehmlichkeiten suchen.
Diese Luxusvilla vereint modernes Design und traditionelle Architektur mitten im wunderschönen Istrien und bietet eine außergewöhnliche Lebensqualität.

EC: Erwartetes A+
Heizung: Wärmepumpe/zentrale Klimaanlage/Fußbodenheizung
Ausrichtung: Nord-Süd-Ost-West
Preis:1.150.000
Vermittlungsgebühr: 2 % + MwSt
Wenn Sie mehr wissen möchten, können Sie mit Jasna Biliškov Barun. sprechen
Merkmale
Art
Einfamilienvilla
Vertrag
Verkauf
Etage
Erdgeschoss
Fläche
145 m² | gewerblich 1.181 m²
Zimmer
4
Badezimmer
3
Klimaanlage
Zentral, kalt / warm
Andere Merkmale
  • Alarmanlage
  • Pool
  • Gepanzerte Tür
Oberflächendetail

Wohnung

Etage
Erdgeschoss
Fläche
145,0 m²
Koeffizient
100%
Flächenart
Hauptsächlich
Verkaufsfläche
145,0 m²

Grundstück

Etage
Erdgeschoss
Fläche
1.036,0 m²
Koeffizient
100%
Flächenart
zusätzlich
Verkaufsfläche
1.036,0 m²
Preisinformationen
Preis
€ 1.150.000
Preis pro m²
974 €/m²
Energieeffizienz
  • Baujahr

    2023
  • Zustand

    Neu / Im Bau
  • Klimatisierung

    Zentral, kalt / warm
  • Energieausweis

    Nicht klassifizierbar
Entdecken Sie jeden Winkel des Anwesens
+12
Zusätzliche Optionen

Inserenten kontaktieren

Oder