map icon

Dreizimmerwohnung 172 m², Sukošan

Sukošan
€ 559.000
3
172 m²
2
Ja
Terrasse

Notiz

Anzeige aktualisiert am: 17.11.2025
Beschreibung

This description has been translated automatically and may not be accurate

Referenz: 7161

Zwei-Zimmer-Wohnung mit Loggia und Dachterrasse

Exklusives Wohnprojekt in Sukosan Erste Reihe zum Meer

Ein luxuriöses Wohnprojekt wird derzeit an einer spektakulären Lage in erster Reihe in Sukosan errichtet, nur wenige Schritte vom Meer und einem wunderschönen Strand entfernt. Die Gebäude verfügen jeweils über 3 und 6 Wohneinheiten. Wohnungen im Erdgeschoss haben private Pools, während Penthouse-Wohnungen private Dachterrassen mit Meerblick bieten.

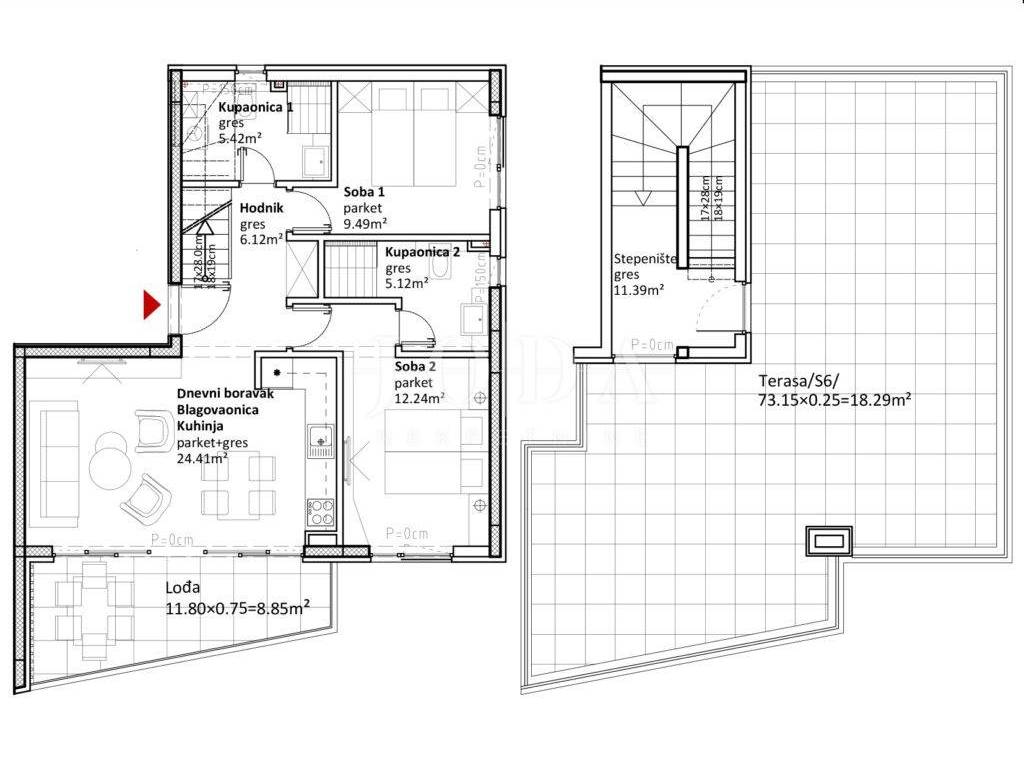
Die Wohnung im zweiten Stock hat eine Nettowohnfläche von 104,04 m und eine Bruttofläche von 172,67 m. Sie besteht aus Flur, zwei Badezimmern, zwei Schlafzimmern, einem Wohnbereich mit Küche und Essbereich sowie einer Dachterrasse mit einer Bruttofläche von 73,15 m bzw. Nettofläche von 18,29 m.

Das Gebäude wird über einen Aufzug und einen privaten Pool im Innenhof verfügen. In den Wohnungen ist ein Smart-Inverter-Klimasystem für Heizung und Kühlung, Fußbodenheizung in den Bädern, hochwertige Innen- und Außenausstattung sowie elektrisch bedienbare Rollläden vorgesehen. Besonderes Augenmerk liegt auf dem Umweltschutz und der Schaffung eines hochwertigen Wohnumfeldes.

Der geplante Abschluss des Projekts ist im Mai 2026.

Die prestigeträchtige Lage, spektakuläre Aussicht, Nähe zum Meer sowie die Kombination aus Luxus und Komfort zeichnen dieses Projekt aus und erfüllen die Ansprüche selbst der

ID CODE: 7161

Ana Šutalo, bcc.oec
Agent s licencom
Mob: 0976252606
Tel: 051403771
E-mail: ana@joda-nekretnine.hr
www.joda-nekretnine.hr

Marina Mudrovčić
Agent s licencom
Mob: 0915787803
Tel: 051403771
E-mail: marina@joda-nekretnine.hr
www.joda-nekretnine.hr
Wenn Sie mehr wissen möchten, können Sie mit Ana Šutalo, bcc.oec. sprechen
Merkmale
Art
Wohnung
Vertrag
Verkauf
Aufzug
Ja
Fläche
172 m²
Zimmer
3
Schlafzimmer
2
Badezimmer
2
Balkon
Nein
Terrasse
Ja
Klimaanlage
Eigenständig, kalt / warm
Andere Merkmale
  • Gepanzerte Tür
Preisinformationen
Preis
€ 559.000
Preis pro m²
3.250 €/m²
Energieeffizienz
  • Baujahr

    2025
  • Klimatisierung

    Eigenständig, kalt / warm
  • Energieausweis

    Befreit
Entdecken Sie jeden Winkel des Anwesens
+10
Zusätzliche Optionen

Inserenten kontaktieren

Oder