Dreizimmerwohnung neu, erste Etage, Dobrinj

€ 265.000
3
80 m²
1
1

Notiz

Anzeige aktualisiert am: 29.03.2026
Beschreibung

This description has been translated automatically and may not be accurate

Referenz: 6485

Čižići, Insel Krk, Neubauwohnung 2SZ+WR, 1. Etage

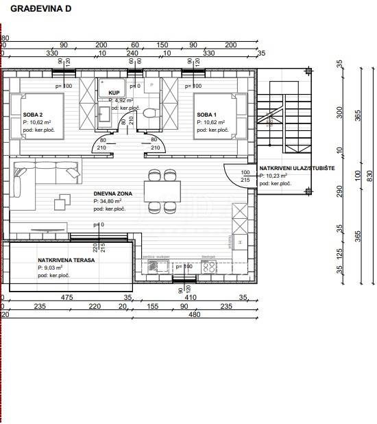
Luxuswohnung zu verkaufen, die sich im ersten Stock eines exklusiven Doppelwohnhauses (Gebäude D) befindet, das im Herzen eines der attraktivsten Teile der Insel Krk, im Ort Čižići, direkt am Meer liegt.
Das Gebäude befindet sich im Bau, die Fertigstellung ist für den Beginn des Sommers 2025 geplant. Es handelt sich um ein Gebäude mit drei Wohnungen, wobei jede Wohnung über einen separaten Eingang über eine Außentreppe verfügt, was ein Gefühl von Privatsphäre und Komfort vermittelt.

Die Wohnung erstreckt sich über 80,84 m. Das Interieur umfasst zwei Schlafzimmer von je 10,62 m, ein Wohnzimmer mit 34,80 m, ein Badezimmer (4,92 m), eine Terrasse und einen überdachten Eingang.
Die Wohnung wird mit einem Parkplatz geliefert, und das gesamte Gebäude befindet sich in einem ruhigen, aber sehr attraktiven Teil von Čižići, der besonders in den Sommermonaten aufgrund der Nähe zum Meer und der natürlichen Schönheit beliebt ist.
Dies ist eine seltene Gelegenheit, eine solche Immobilie in erster Reihe zum Meer auf der Insel Krk zu finden, die nicht nur komfortables Wohnen, sondern auch Potenzial für eine großartige Geschäftsmöglichkeit in einem der begehrtesten Ziele an der Adriaküste bietet.

ID CODE: 6485

Josip Šikić, mag.oec
Agent s licencom
Mob: +385 91 890 4694
Tel: +385 51 403 771
E-mail: info@joda-nekretnine.hr
www.joda-nekretnine.hr
Merkmale
Art
Wohnung
Vertrag
Verkauf
Etage
1 etage
Fläche
80 m²
Zimmer
3
Schlafzimmer
2
Badezimmer
1
Balkon
Nein
Terrasse
Nein
Klimaanlage
Eigenständig, kalt / warm
Preisinformationen
Preis
€ 265.000
Preis pro m²
3.313 €/m²
Energieeffizienz

Energieverbrauch

A+

Entdecken Sie jeden Winkel des Anwesens
+9
Zusätzliche Optionen

Inserenten kontaktieren

Oder